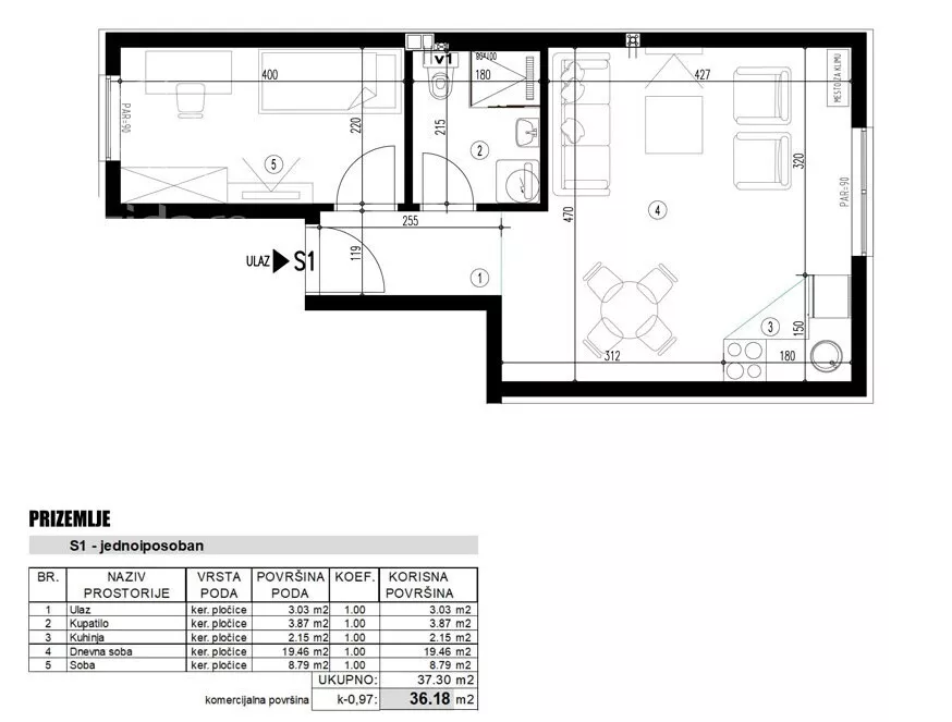
Jednoiposoban stan na prodaju, Adice, 81.990€, 36m²


81.990 €
2.278 € / m2
- Stan u zgradi
- Podno grejanje
- U izgradnji
- Prostorije: kupatilo
- Pogled na: ulicu, dvorište
- Nije uknjiženo
- Oglas oglašava agencija pod reg. brojem 711
Opis oglasa
U ponudi je jednoiposoban stan površine 36m² u izgradnji, smešten na prizemlju moderne stambene zgrade. Na svega nekoliko minuta hoda nalazi se prva autobuska stanica, što ovu lokaciju čini veoma praktičnom za svakodnevni život. Stan je funkcionalnog rasporeda i predstavlja odličan izbor kako za život tako i za investiciju, uz mogućnost povrata PDV-a za kupce prvog stana. Grejanje je podno na gas i plaća se isključivo po potrošnji tokom grejne sezone, što omogućava dodatnu uštedu i komfor. Gradnju realizuje pouzdan i proveren investitor, a planirani rok završetka radova je septembar 2026. godine. Moguća kupovina i na kredit, knjiži se kao stan!
Kontakt: 0212215100 i 0648033305
552997
*Sačuvaj oglas uz belešku i primaj obaveštenja o njihovom pojeftinjenju ili pojavljivanju sličnih
Prikaz stana na mapi
Parkovi u blizini
- Park Bistrica48 min

Obeležja kulture u blizini
- Dvorac Eđšeg14 min
- Jodna Banja15 min
- Kuća Jovana Jovanovića Zmaja18 min

Škole/Fakulteti/Vrtići u blizini
- Osnovna škola (Privatna osnovna škola Sveti Kirilo i Metodije)7 min
- Srednja škola (Gimnazija Laza Kostić)7 min
- Vrtić (Dečiji vrtić Anđeo čuvar)7 min
- Fakultet (Protestantski teološki fakultet)8 min

- Bolnica (Opšta bolnica sa porodilištem Gea)6 min
- Klinika (Poliklinika Consilium)8 min
- Teretana (Fintess centar Basic Control Academy)7 min
- Prodavnica (Gomex market)7 min
- Restoran (Restoran Petlov salaš)20 min
- Kafana (Kafanica Kod Dače)32 min
- Taksi stajalište (Taxi prevoz Novi Sad)18 min
- Autobuska stanica (Branka Ćopića - Sime Šolaje)7 min
- Banka (Erste Bank Ekspres ekspozitura)7 min
- Pošta (Pošta Novi Sad 21142)4 min
Kontakt oglašivača
Krediti OTP banke
Saznaj više
Prikazana rata odnosi se na maksimalni period otplate. Kalkulator je informativnog karaktera.
* Nakon isteka 5 godina, prelazi se na varijabilnu kamatnu stopu


