Jednoiposoban stan na prodaju, Adice, 70.953€, 38m²












70.953 €
1.867 € / m2
- Stan u zgradi
- U izgradnji
- Prostorije: terasa
- Oglas oglašava agencija pod reg. brojem 1020
- Godina izgradnje: 2025.
Opis oglasa
Agencijska šifra: 1007134.
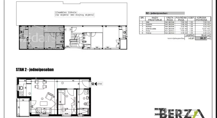
Prodaje se fantastičan jednoiposoban stan (38.27m2) na prvom spratu stambene zgrade u izgradnji. Stan se sastoji od hodnika koji vodi ravno u dnevnu sobu koja je povezana sa trpezarijom i kuhinjom, iz dnevne sobe se izlazi na terasu, a prilikom ulaska u stan sa Vaše leve strane nalaze se spavaća soba i kupatilo. Podno grejanje, terase sa delom od kaljenog stakla, svaki stan ima svoj elektro kotao,...Keramika i PVC stolarija premium kvaliteta,.. Keramičke pločice su predviđene za ceo stan, ali imate mogućnost odabira u izgradnji za spavaće sobe (keramika ili tarket). Mogućnost povrata PDV-a prilikom kupovine prve nekretnine. Rok završetka radova je jun 2026. godine.
Lokacija objekta omogućava da se za 5 do 10 minuta laganog hoda stigne do obale reke Dunav, gde možete uživati u miru i lepoti prirode, sa pogledom na Frušku Goru. Objekat se takođe nalazi u mirnom delu, daleko od saobraćajne gužve i buke, a opet blizu glavnih ulica koje vode u sve delove grada.
*Sačuvaj oglas uz belešku i primaj obaveštenja o njihovom pojeftinjenju ili pojavljivanju sličnih
Prikaz stana na mapi
Parkovi u blizini
- Park Bistrica49 min

Obeležja kulture u blizini
- Dvorac Hadik-Kotek17 min
- Dvorac Eđšeg18 min
- Jodna Banja19 min

Škole/Fakulteti/Vrtići u blizini
- Osnovna škola (Osnovna škola Marija Trandafil)manje od 1 min
- Srednja škola (Privatna medicinska škola Dositej Obradović)7 min
- Vrtić (Dečiji vrtić Anđeo čuvar)7 min
- Fakultet (Protestantski teološki fakultet)12 min

- Bolnica (Ginekološka bolnica Ferona)10 min
- Klinika (Poliklinika Consilium)12 min
- Teretana (Fintess centar Basic Control Academy)10 min
- Prodavnica (Mikromarket)1 min
- Restoran (Restoran Exit West)28 min
- Kafana (Kafanica Kod Dače)45 min
- Taksi stajalište (Taxi prevoz Novi Sad)34 min
- Autobuska stanica (Veternička - Fešter osnovna škola)1 min
- Banka (Erste Bank Ekspres ekspozitura)10 min
- Pošta (Pošta Veternik 21203)8 min
Kontakt oglašivača
Stambeni krediti

- Period otplate od
96 -360 meseca
- NKS 4.75%
EKS 5.74%
Fiksna kamatna stopa
- Bez troškova obrade kredita
stranici kreditnih kalkulatora
Keš krediti
Period otplate
13 meseci