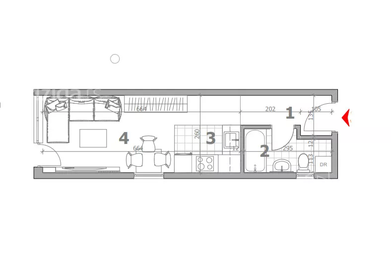
Garsonjera na prodaju, Adice, 36.770€, 21m²


36.770 €
1.751 € / m2
- Stan u zgradi
- Podno grejanje
- U izgradnji
- Prostorije: kupatilo
- Opremljenost: Prazno - internet
- Orijentacija ka: sever, jug
- Pogled na: ulicu, dvorište
- U procesu uknjižavanja
- Oglas oglašava agencija pod reg. brojem 2043
- Tip interneta: kablovska
- Kablovska
- 1 telefonska linija
Opis oglasa
Garsonjera u izgradnji u kvalitetnoj novogradnji proverenog investitora! Na oko 200 metara od gradskog prevoza 6 i velikog marketa.
U ponudi imamo i sa pogledom na ulicu i sa pogledom na dvorište.
Knjiži se kao garaža.
Agencijska provizija je uračunata.
Aničić nekretnine, broj u registru posrednika 2043
*Sačuvaj oglas uz belešku i primaj obaveštenja o njihovom pojeftinjenju ili pojavljivanju sličnih
Prikaz stana na mapi
Parkovi u blizini
- Park Bistrica46 min

Obeležja kulture u blizini
- Dvorac Eđšeg14 min
- Jodna Banja14 min
- Kuća iz 1797. godine18 min

Škole/Fakulteti/Vrtići u blizini
- Osnovna škola (Privatna osnovna škola Sveti Kirilo i Metodije)16 min
- Srednja škola (Privatna medicinska škola Dositej Obradović)6 min
- Vrtić (Dečiji vrtić Anđeo čuvar)16 min
- Fakultet (Protestantski teološki fakultet)7 min

- Bolnica (Ginekološka bolnica Ferona)6 min
- Klinika (Poliklinika Consilium)7 min
- Teretana (Fintess centar Basic Control Academy)6 min
- Prodavnica (Mikromarket)6 min
- Restoran (Restoran Exit West)22 min
- Kafana (Kafanica Kod Dače)38 min
- Taksi stajalište (Taxi prevoz Novi Sad)25 min
- Autobuska stanica (Veternička - Marije Bursać)1 min
- Banka (Erste Bank Ekspres ekspozitura)17 min
- Pošta (Pošta Novi Sad 21142)13 min
Kontakt oglašivača
Stambeni krediti

- Period otplate od
96 -360 meseca
- NKS 4.75%
EKS 5.74%
Fiksna kamatna stopa
- Bez troškova obrade kredita
stranici kreditnih kalkulatora
Keš krediti
Period otplate
13 meseci