Dvoiposoban stan na prodaju, Alaska, 132.500€, 51m²


































132.500 €
2.598 € / m2
- Stan u zgradi
- Podno grejanje
- Novo
- Prostorije: kupatilo, terasa
- Opremljenost: Polunamešteno - internet, klima, veš mašina, kuhinjski elementi, sudo mašina, frižider, šporet, rerna, plakar, ugradni plakar
- Pogled na: dvorište
- Uknjiženo
- Kupovina direktno od vlasnika
- 1 parking mesto
- Godina izgradnje: 2022.
- Zgrada poseduje: video nadzor
- Tip interneta: optički
- Kablovska
- 1 telefonska linija
- Autobuske linije: Linija 6, 6a
Opis oglasa
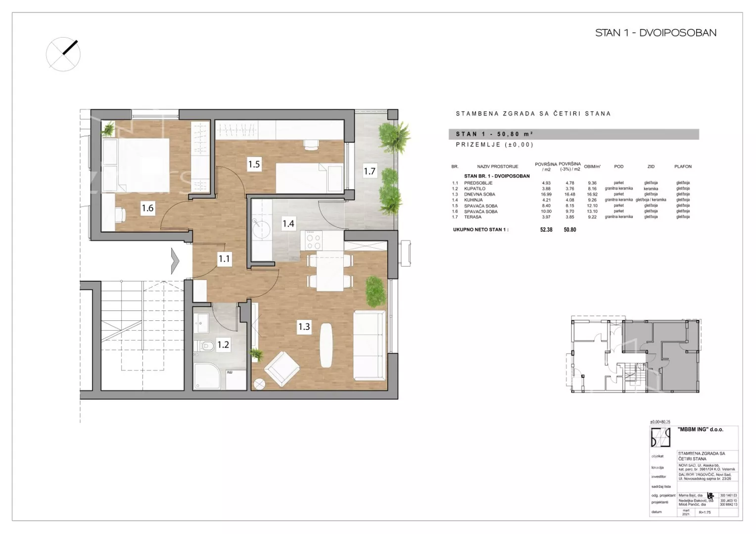
Objekat: urbana vila sa 2 ulaza po 4 stana, interfon i video-nadzor. Stan je u prizemlju, 51,07 m² + ograđeno privatno dvorište 45m² sa pešačkom kapijom koja izlazi direktno na pripadajuće parking mesto.
Dvorište: WPC ograda sa pešačkom kapijom (Savadeck), deo behaton, deo zelena površina.
Raspored: hodnik, dnevna soba sa trpezarijom, odvojena kuhinja, dve zasebne sobe, kupatilo, terasa (izlaz u dvorište iz stana i sa parkinga).
Grejanje: podno, na toplotne pumpe. Plaća se samo u sezoni po potrošnji (oko 5000).
Moguća kupovina na stambeni kredit.
U cenu je uračunato:
- parking mesto
- kuhinja koja je izrađena po meri sa pripadajućim uređajima (ugradni frižider, ugradna rerna, indukciona ploča, ugradni aspirator, sudomašina, granitna sudopera),
- plakar/cipelarnik/čiviluk u hodniku koji je rađen po meri,
- ugradni plakar u spavaćoj sobi,
- konzolna radna ploča sa zidnim policama koja se nalazi u radnoj sobi,
- konzolne police za knjige sa skrivenim nosačima u dnevnoj sobi,
- veš mašina,
- zidni ormarići u kupatilu,
- inverter klima
- komarnici (na svim prozorima) i komarna vrata, antracit boja
Napomena: moguće kupovina nameštaja sa fotografija, kao i garniture, suncobrana i sanduka za odlaganje iz dvorišta.
Useljenje: 2-5 dana od kupovine
*Sačuvaj oglas uz belešku i primaj obaveštenja o njihovom pojeftinjenju ili pojavljivanju sličnih
Prikaz stana na mapi
Obeležja kulture u blizini
- Dvorac Eđšeg13 min
- Jodna Banja15 min
- Kuća iz 1797. godine18 min

Škole/Fakulteti/Vrtići u blizini
- Osnovna škola (Privatna osnovna škola Sveti Kirilo i Metodije)8 min
- Srednja škola (Gimnazija Laza Kostić)7 min
- Vrtić (Dečiji vrtić Anđeo čuvar)8 min
- Fakultet (Protestantski teološki fakultet)7 min

- Bolnica (Opšta bolnica sa porodilištem Gea)5 min
- Klinika (Poliklinika Consilium)7 min
- Teretana (Fintess centar Basic Control Academy)6 min
- Prodavnica (Gomex market)13 min
- Restoran (Restoran Petlov salaš)27 min
- Kafana (Kafanica Kod Dače)38 min
- Taksi stajalište (Taxi prevoz Novi Sad)24 min
- Autobuska stanica (Veternička - Kragujevačka)8 min
- Banka (Erste Bank Ekspres ekspozitura)6 min
- Pošta (Pošta Novi Sad 21142)17 min
Kontakt oglašivača
Krediti OTP banke
Saznaj više
Prikazana rata odnosi se na maksimalni period otplate. Kalkulator je informativnog karaktera.
* Nakon isteka 5 godina, prelazi se na varijabilnu kamatnu stopu

