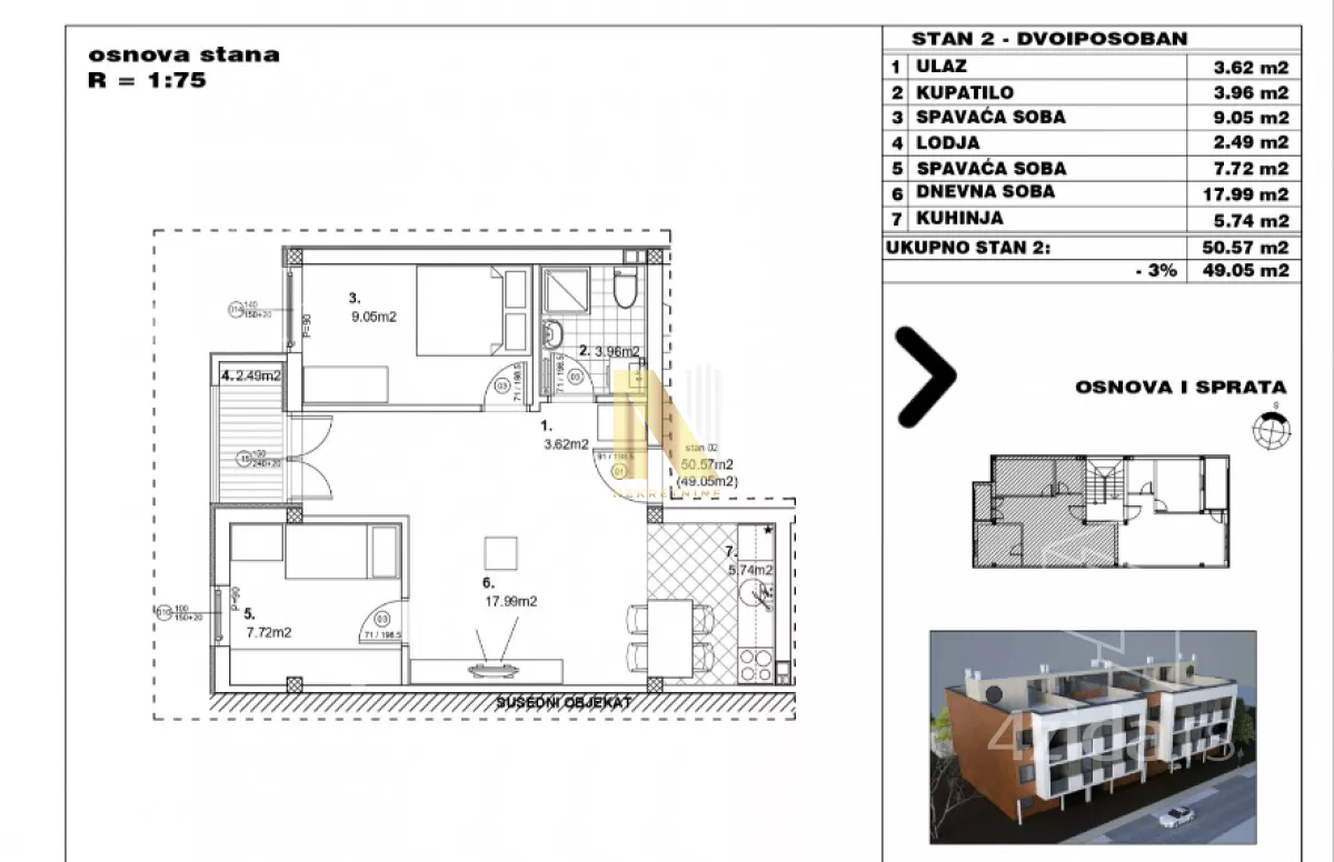
Dvoiposoban stan na prodaju, Adice, 90.650€, 49m²






90.650 €
1.850 € / m2
- Stan u zgradi
- U izgradnji
- Prostorije: terasa
- Oglas oglašava agencija pod reg. brojem 1405
- 1 parking mesto
- Godina izgradnje: 2025.
Opis oglasa
Predstavljamo Vam prodaju dvoiposobnih stanova u izgradnji, direktno od investitora.
Objekat spratnosti P+1+PK se nalazi u već infrastrukturno razvijenoj ulici i kraju, što podrazumeva asfalt, kanalizaciju, ivičnjake, atmosferske vode, itd,
Visok kvalitet gradnje, energetska efikasnost, podno grejanje + FanCoil hlađenje, granitna keramika, aluminijumska ulazna vrata, šestokomorna bela/antracit stolarija, troslojna stakla, fasada kombinacija fundermax/ciglice, itd.
Parking mesto je obezbeđeno u okviru parcele.
PDV u iznosu od 10% nije uračunat u navedenu cenu i može biti odbitna stavka za kupce prve nekretnine.
Navedena cena je rezervisana za gotovinske kupce
Za sve dodatne informacije, prezentaciju projekta i obilazak gradilišta obratiti se na broj telefona
066... (prikaži broj telefona)
ili
065... (prikaži broj telefona)
, Alekse Šantića 64, N-NEKRETNINE, upisan u registar posrednika 1405.
*Sačuvaj oglas uz belešku i primaj obaveštenja o njihovom pojeftinjenju ili pojavljivanju sličnih
Prikaz stana na mapi
Parkovi u blizini
- Park Bistrica49 min

Obeležja kulture u blizini
- Dvorac Hadik-Kotek17 min
- Dvorac Eđšeg17 min
- Jodna Banja18 min

Škole/Fakulteti/Vrtići u blizini
- Osnovna škola (Osnovna škola Marija Trandafil)manje od 1 min
- Srednja škola (Privatna medicinska škola Dositej Obradović)8 min
- Vrtić (Dečiji vrtić Anđeo čuvar)6 min
- Fakultet (Protestantski teološki fakultet)10 min

- Bolnica (Ginekološka bolnica Ferona)9 min
- Klinika (Poliklinika Consilium)10 min
- Teretana (Fintess centar Basic Control Academy)9 min
- Prodavnica (Mikromarket)1 min
- Restoran (Restoran Exit West)28 min
- Kafana (Kafanica Kod Dače)45 min
- Taksi stajalište (Taxi prevoz Novi Sad)34 min
- Autobuska stanica (Veternička - Fešter osnovna škola)1 min
- Banka (Erste Bank Ekspres ekspozitura)10 min
- Pošta (Pošta Novi Sad 21142)6 min
Kontakt oglašivača
Krediti OTP banke
Saznaj više
Prikazana rata odnosi se na maksimalni period otplate. Kalkulator je informativnog karaktera.
* Nakon isteka 5 godina, prelazi se na varijabilnu kamatnu stopu






















