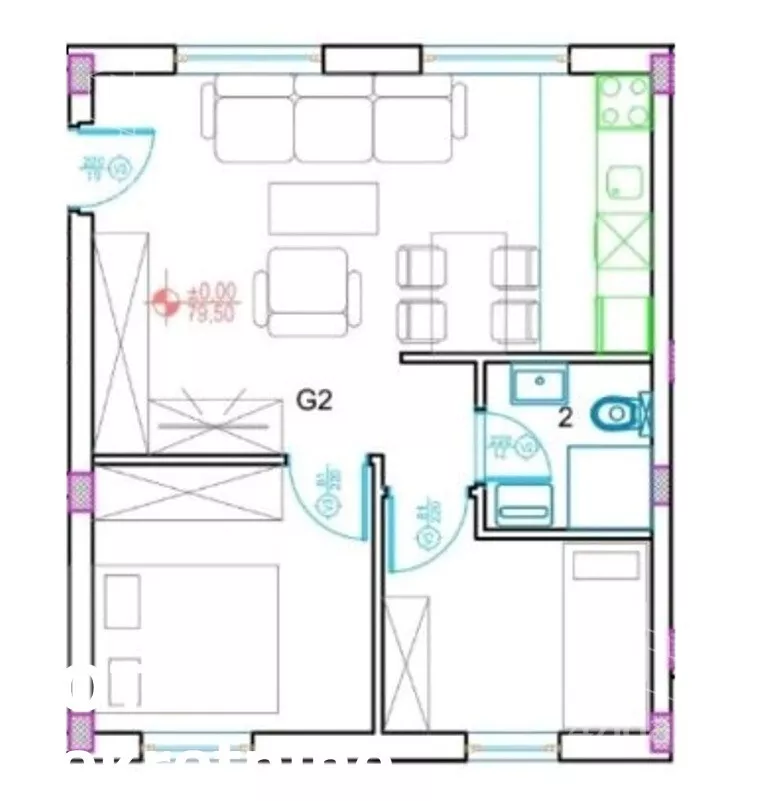
Dvoiposoban stan na prodaju, Adice, 70.000€, 42m²














70.000 €
1.667 € / m2
- Stan u zgradi
- Prostorije: terasa
- Oglas oglašava agencija pod reg. brojem 46
Opis oglasa
Agencijska oznaka 1100607
CENA 70.000e + 3% agencijska provizija. Na prodaju nov dvoiposoban stan od 42m2, + 27m2 dvorište u novoj zgradi, vrhunske izgradnje. USELJIV OD 15 januara 2026.godine. Na samoj granici sa Telepom, u blizini sve potrebno za život u urbanoj sredini, autobusko stajalište, market, menjačnica, pošta, vrtić. Premium tarket, podno grejanje na toplotne pumpe što znači, grejanje se plaća samo tokom sezone, niski troškovi. Stan je uknjižen kao garaža, ne može se prometovati putem kredita, veoma povoljno, pozvati! Kontakt
063... (prikaži broj telefona)
Nataša
*Sačuvaj oglas uz belešku i primaj obaveštenja o njihovom pojeftinjenju ili pojavljivanju sličnih
Prikaz stana na mapi
Parkovi u blizini
- Park Bistrica49 min

Obeležja kulture u blizini
- Dvorac Hadik-Kotek17 min
- Dvorac Eđšeg17 min
- Jodna Banja18 min

Škole/Fakulteti/Vrtići u blizini
- Osnovna škola (Osnovna škola Marija Trandafil)manje od 1 min
- Srednja škola (Privatna medicinska škola Dositej Obradović)8 min
- Vrtić (Dečiji vrtić Anđeo čuvar)6 min
- Fakultet (Protestantski teološki fakultet)10 min

- Bolnica (Ginekološka bolnica Ferona)9 min
- Klinika (Poliklinika Consilium)10 min
- Teretana (Fintess centar Basic Control Academy)9 min
- Prodavnica (Mikromarket)1 min
- Restoran (Restoran Exit West)28 min
- Kafana (Kafanica Kod Dače)45 min
- Taksi stajalište (Taxi prevoz Novi Sad)34 min
- Autobuska stanica (Veternička - Fešter osnovna škola)1 min
- Banka (Erste Bank Ekspres ekspozitura)10 min
- Pošta (Pošta Novi Sad 21142)6 min
Kontakt oglašivača
Stambeni krediti
- Period otplate od
96 -360 meseca
- NKS 4.34%
Kombinovana kamatna stopa
- Bez troškova obrade kredita
- Odobrenje kredita do 48h
- Period otplate od
96 -360 meseca
- NKS 4.50%
EKS 5.74%
Fiksna kamatna stopa
- Bez troškova obrade kredita
stranici kreditnih kalkulatora
Keš krediti
Period otplate
13 meseci- Period otplate od 13 -71 mesec
- NKS 10.55%
- EKS od 10.87%
- Za klijente banke
mesečno

