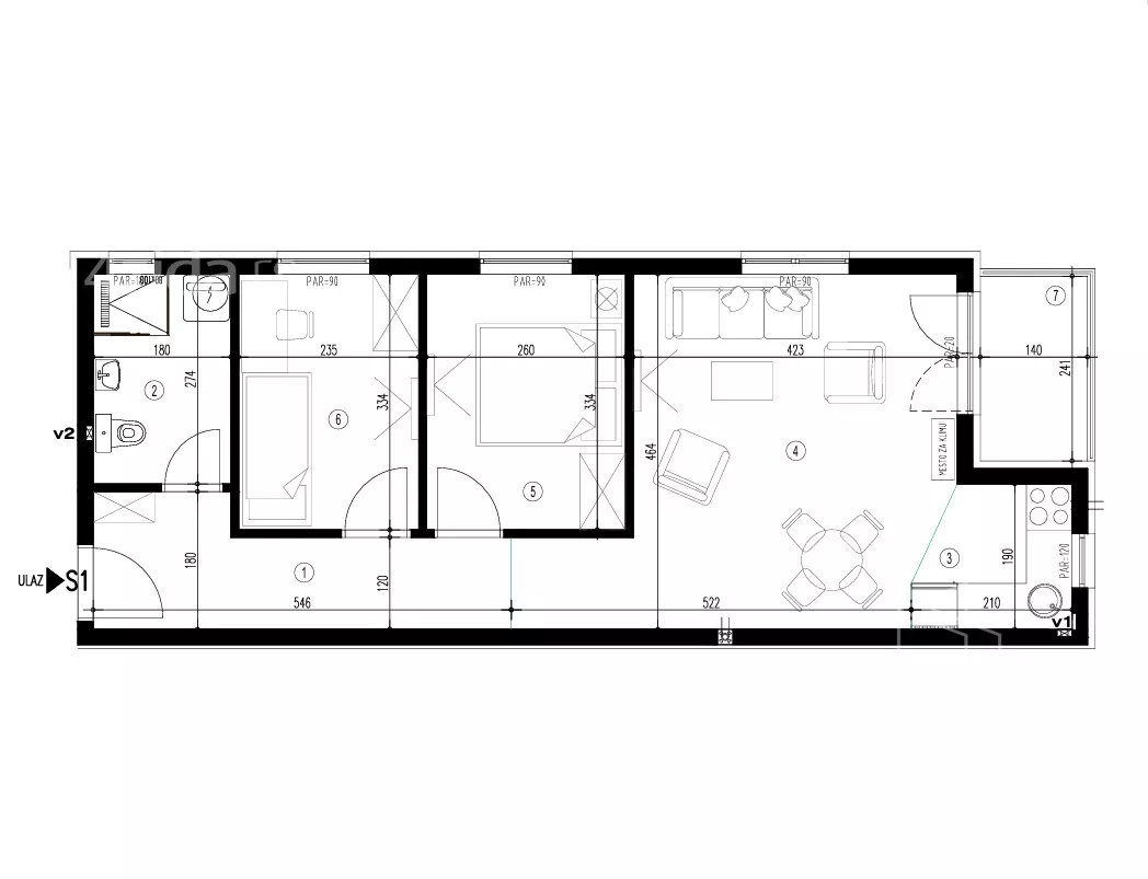
Dvoiposoban stan na prodaju, Adice, 114.330€, 56m²




114.330 €
2.042 € / m2
- Stan u zgradi
- Podno grejanje
- U izgradnji
- Prostorije: kupatilo, terasa
- Opremljenost: Prazno - internet
- Pogled na: ulicu
- U procesu uknjižavanja
- Oglas oglašava agencija pod reg. brojem 2043
- Tip interneta: optički
- Kablovska
- 1 telefonska linija
Opis oglasa
Dvoiposoban stan u izgradnji proverenog investitora čije su zgrade među najkvalitetnijim i najlepšim u ovom delu grada a i šire! U blizini ulice Branka Ćopića i gradskog previza 6, velikog marketa i ostalog potrebnog za svakodnevni život.
Stan je odličnog rasporeda, ne gubi se ni milimetar prostora, sve prostorije su pravilnog oblika. Nalazi se na prvom spratu od dva modernog manjeg kompleksa.
Povrat PDV-a za kupce prve nekretnine.
Moguća kupovina putem stambenog kredita.
Agencijska provizija je uračunata.
Aničić nekretnine, broj u registru posrednika 2043
*Sačuvaj oglas uz belešku i primaj obaveštenja o njihovom pojeftinjenju ili pojavljivanju sličnih
Prikaz stana na mapi
Parkovi u blizini
- Park Bistrica41 min
- Futoški park48 min

Obeležja kulture u blizini
- Jodna Banja13 min
- Dvorac Eđšeg14 min
- Galerija Matice srpske18 min

Škole/Fakulteti/Vrtići u blizini
- Osnovna škola (Privatna osnovna škola Sveti Kirilo i Metodije)15 min
- Srednja škola (Gimnazija Laza Kostić)5 min
- Vrtić (Dečiji vrtić Dunavski cvet)21 min
- Fakultet (Protestantski teološki fakultet)5 min

- Bolnica (Ginekološka bolnica Ferona)23 min
- Klinika (Poliklinika Consilium)5 min
- Teretana (Fintess centar Basic Control Academy)4 min
- Prodavnica (Mikromarket)1 min
- Restoran (Restoran Žal za mladost)17 min
- Kafana (Kafanica Kod Dače)20 min
- Taksi stajalište (Taxi prevoz Novi Sad)7 min
- Autobuska stanica (Branka Ćopića - Jesenjinova)1 min
- Banka (Erste Bank Ekspres ekspozitura)17 min
- Pošta (Pošta Novi Sad 21142)9 min
Kontakt oglašivača
Krediti OTP banke
Saznaj više
Prikazana rata odnosi se na maksimalni period otplate. Kalkulator je informativnog karaktera.
* Nakon isteka 5 godina, prelazi se na varijabilnu kamatnu stopu






















