Četvorosoban stan na prodaju, Adice, 144.130€, 75m²


144.130 €
1.922 € / m2
- Stan u zgradi
- Podno grejanje
- U izgradnji
- Prostorije: kupatilo, toalet, terasa
- Opremljenost: Prazno - internet
- Orijentacija ka: sever, jug, zapad
- Pogled na: ulicu, dvorište
- U procesu uknjižavanja
- Oglas oglašava agencija pod reg. brojem 2043
- Parking u dvorištu zgrade
- Zgrada poseduje: lođa
- Tip interneta: optički
- Kablovska
- 1 telefonska linija
- Autobuske linije: 6
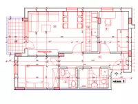
Opis oglasa
Odličan četvorosoban stan u izgradnji proverenog investitora čije su zgrade među najkvalitetnijim i najlepšim u ovom delu grada a i šire! U blizini ulice Branka Ćopića i gradskog previza 6, velikog marketa i ostalog potrebnog za svakodnevni život.
Stan zauzima ceo prvi sprat!
- iz hodnika se ulazi u sve prostorije
- u ulaznom hodniku prostor za ugradni orman za jakne i obuću
- hladna ostava na terasi
- lepa i velika terasa
- sve prostorije pravilnog oblika
- poseban toalet i posebno kupatilo
Povrat PDV-a za kupce prve nekretnine.
Moguća kupovina putem stambenog kredita.
Agencijska provizija je uračunata.
Aničić nekretnine, broj u registru posrednika 2043
*Sačuvaj oglas uz belešku i primaj obaveštenja o njihovom pojeftinjenju ili pojavljivanju sličnih
Prikaz stana na mapi
Parkovi u blizini
- Park Bistrica41 min
- Futoški park48 min

Obeležja kulture u blizini
- Jodna Banja13 min
- Dvorac Eđšeg14 min
- Galerija Matice srpske18 min

Škole/Fakulteti/Vrtići u blizini
- Osnovna škola (Privatna osnovna škola Sveti Kirilo i Metodije)15 min
- Srednja škola (Gimnazija Laza Kostić)5 min
- Vrtić (Dečiji vrtić Dunavski cvet)21 min
- Fakultet (Protestantski teološki fakultet)5 min

- Bolnica (Ginekološka bolnica Ferona)23 min
- Klinika (Poliklinika Consilium)5 min
- Teretana (Fintess centar Basic Control Academy)4 min
- Prodavnica (Mikromarket)1 min
- Restoran (Restoran Žal za mladost)17 min
- Kafana (Kafanica Kod Dače)20 min
- Taksi stajalište (Taxi prevoz Novi Sad)7 min
- Autobuska stanica (Branka Ćopića - Jesenjinova)1 min
- Banka (Erste Bank Ekspres ekspozitura)17 min
- Pošta (Pošta Novi Sad 21142)9 min
Kontakt oglašivača
Stambeni krediti
- Period otplate od
96 -360 meseca
- NKS 4.50%
EKS 5.74%
Fiksna kamatna stopa
- Bez troškova obrade kredita
- Period otplate od
96 -360 meseca
- NKS 4.34%
Kombinovana kamatna stopa
- Bez troškova obrade kredita
- Odobrenje kredita do 48h
stranici kreditnih kalkulatora
Keš krediti
Period otplate
13 meseci




















