Lokal na prodaju, Zelena Pijaca, 112.000€, 142m²















112.000 €
789 € / m2
- Etažno grejanje
- Prostorije: ostava
- Opremljenost: Prazno - kanalizacija
- Oglas oglašava agencija pod reg. brojem 22
- Kanalizacija
- Godina izgradnje: 1997.
Opis oglasa
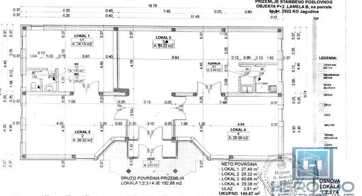
Lokal se nalazi u neposrednoj blizini pijace u Jagodini, u okviru stambene zgrade završene krajem 90-tih godina.
Prilaz lokalu je pešačkom stazom. Nalazi se u prizemlju stambene zgrade, u nivou sa zemljom i sa lakim pristupom za starije osobe, roditelje sa decom i osobe koje su teže pokretne, što ga čini pogodnim za različite uslužne delatnosti, lekarske ordinacije, školice...
*Grejanje je kotao na struju.
*Postoji mogućnost kupovine lokala iz pozajmljenih sredstava - kredita.
*Sačuvaj oglas uz belešku i primaj obaveštenja o njihovom pojeftinjenju ili pojavljivanju sličnih
Prikaz poslovnog prostora na mapi
Parkovi u blizini
- Park Đurđevo brdo31 min

Obeležja kulture u blizini
- Spomenik Jovanči Miciću5 min
- Crkva Svete Bogorodice35 min
- Spomenik Despotu Stefanu36 min

Škole/Fakulteti/Vrtići u blizini
- Osnovna škola (Osnovna škola Rada Miljković)3 min
- Srednja škola (Gimnazija Svetozar Marković)3 min
- Vrtić (Dečiji vrtić Pionir)3 min
- Fakultet (Univerzitet u Kragujevcu Fakultet pedagoških nauka u Jagodini)4 min

- Bolnica (Opšta bolnica Jagodina)4 min
- Klinika (Poliklinika CT05)3 min
- Teretana (Cafe bar & gym Mr. Hill)26 min
- Prodavnica (Maxi Supermarket)manje od 1 min
- Restoran (Restoran Princip)5 min
- Kafana (Pivnica Beer House)7 min
- Taksi stajalište (Maxi Taxi)35 min
- Banka (Poštanska štedionica)2 min
- Pošta (Pošta Jagodina 1)3 min
Kontakt oglašivača

Stambeni krediti
- Period otplate od
96 -360 meseca
- NKS 4.50%
EKS 5.74%
Fiksna kamatna stopa
- Bez troškova obrade kredita
- Period otplate od
96 -360 meseca
- NKS 4.34%
Kombinovana kamatna stopa
- Bez troškova obrade kredita
- Odobrenje kredita do 48h
stranici kreditnih kalkulatora
Keš krediti
Period otplate
13 meseci
















