Poslovni prostor na prodaju, Dragačevska, 315.000€, 150m²


















315.000 €
2.100 € / m2
- Etažno grejanje
- Uobičajeno stanje
- Prostorije: kupatilo
- Opremljenost: Namešteno - interfon, klima
- Oglas oglašava agencija pod reg. brojem 298
- 1 parking mesto
- 2 telefonske linije
Opis oglasa
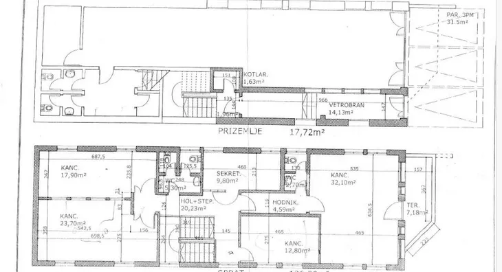
Poslovni kancelarijski prostor od 150 m2, u kući na prvom spratu, u mirnom delu grada na Lekinom brdu. Dobra povezanost sa glavnim pravcima ka gradu i autoputu. Prostor čine 4 kancelarije, 1 kuhinja, 3 toaleta, 1 trokadero (mokri čvor), terasa. Ima svoj sopstveni ulaz u prizemlju objekta. Ispred objekta u okviru parcele je prostor za parkiranje. Masivna konstrukcija, kvalitetna izgradnja, podovi kombinacija granita (hodnici, kuhinja, toaleti) i parketa (kancelarije), nova PVC stolarija, potpuno okrečen enterijer i fasada 2023. godine. Objekat je 100% u vlasništvu firme, uknjižen, bez finansijskog opterećenja banaka ili poverioca. Prostor se prodaje potpuno opremljen nameštajem. Mogućnost kupovine i prizemnog dela objekta koji se takođe prodaje. Etažno grejanje, dve telefonske linije, 3 klime, interfon, centralni alarmni sistem, računarska mreža između kancelarija, optički internet mts i kablovski SBB. Agencijska provizija za kupca 2%. Broj agencije u Registru posrednika 298. Mapa je informativnog karaktera, ne prikazuje tačnu lokaciju nekretnine.
*Sačuvaj oglas uz belešku i primaj obaveštenja o njihovom pojeftinjenju ili pojavljivanju sličnih
Prikaz poslovnog prostora na mapi
Parkovi u blizini
- Park Urbani džep12 min
- Park Šumice12 min
- Park Slavujev potok21 min

Obeležja kulture u blizini
- Osnovna škola Kralj Petar II Karađorđević6 min
- Vozarev krst8 min
- Spomenik Petru Kočiću9 min

Škole/Fakulteti/Vrtići u blizini
- Osnovna škola (Specijalna osnovna škola Dušan Dugalić)10 min
- Srednja škola (Osma beogradska gimnazija)7 min
- Vrtić (Dečiji vrtić Azbukica)3 min
- Fakultet (Univerzitet u Beogradu Fakultet bezbednosti)6 min

- Bolnica (Specijalna bolnica za hemodijalizu Dragačevska Fresenus Medical Care)manje od 1 min
- Klinika (Poliklinika Sim Medical Team)5 min
- Teretana (Body building i fitness klub Ahilej)8 min
- Prodavnica (Market Ana)4 min
- Restoran (Roštilj i kafanica BBQ Ćevap)5 min
- Kafana (Slatka mala kafanica)9 min
- Taksi stajalište (Taxi stanica)9 min
- Autobuska stanica (Škola Vojislav Ilić)8 min
- Tramvajska stanica (Pijaca Zvezdara)18 min
- Trolejbuska stanica (Bačvanska)6 min
- Banka (OTP banka)4 min
- Pošta (Pošta Beograd 107)4 min
Kontakt oglašivača
Stambeni krediti
- Period otplate od
96 -360 meseca
- NKS 4.34%
Kombinovana kamatna stopa
- Bez troškova obrade kredita
- Odobrenje kredita do 48h
- Period otplate od
96 -360 meseca
- NKS 4.50%
EKS 5.74%
Fiksna kamatna stopa
- Bez troškova obrade kredita
stranici kreditnih kalkulatora
Keš krediti
Period otplate
13 meseci