Kancelarija na prodaju, Dragačevska, 598.000€, 299m²
Beograd, Voždovac opština, Lekino Brdo
Prikaži mapuŠifra oglasa: 4zida-276Oglas ažuriran: pre 9 dana






























598.000 €
2.000 € / m2
Kancelarija
299 m²
- Oglas oglašava agencija pod reg. brojem 1015
Opis oglasa
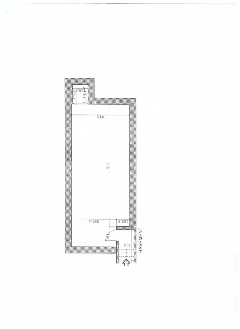
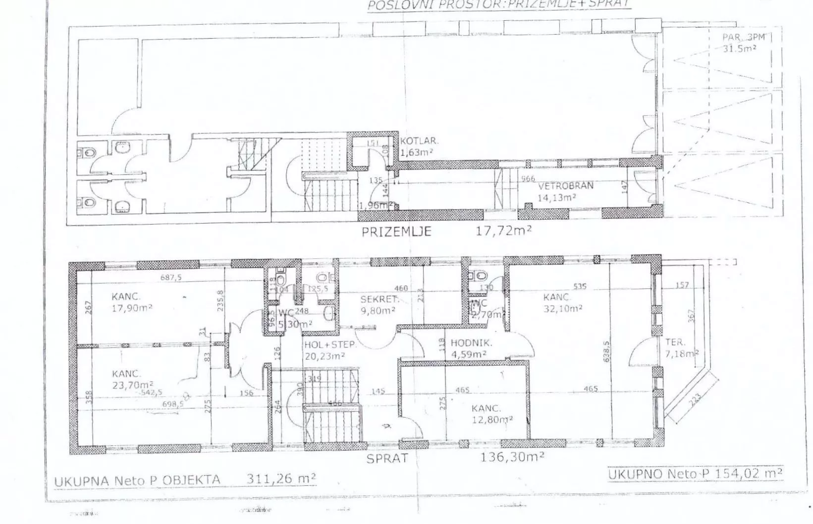
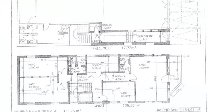
Ovaj poslovi prostor se nalazi u spratnoj kući na Lekinom brdu, na veoma dobroj lokaciji. Sastoji se iz dva nivoa - prizemlje od 150m2 i prvi sprat od 149m2.
Prostor ima 7 kancelarija, izložbeni prostor, tri mokra čvora, tri parking mesta.
Idealan je za različite vrste delatnosti.
Agencijska provizija 2%
*Sačuvaj oglas uz belešku i primaj obaveštenja o njihovom pojeftinjenju ili pojavljivanju sličnih
Prikaz poslovnog prostora na mapi
Parkovi u blizini
- Park Urbani džep12 min
- Park Šumice12 min
- Park Slavujev potok21 min

Obeležja kulture u blizini
- Osnovna škola Kralj Petar II Karađorđević6 min
- Vozarev krst8 min
- Spomenik Petru Kočiću9 min

Škole/Fakulteti/Vrtići u blizini
- Osnovna škola (Specijalna osnovna škola Dušan Dugalić)4 min
- Srednja škola (Osma beogradska gimnazija)4 min
- Vrtić (Dečiji vrtić Azbukica)3 min
- Fakultet (Univerzitet u Beogradu Fakultet bezbednosti)6 min

Zdravlje
- Bolnica (Specijalna bolnica za hemodijalizu Dragačevska Fresenus Medical Care)manje od 1 min
- Klinika (Poliklinika Sim Medical Team)5 min
- Teretana (Body building i fitness klub Ahilej)4 min
Hrana i piće
- Prodavnica (Market Ana)4 min
- Restoran (Roštilj i kafanica BBQ Ćevap)5 min
- Kafana (Slatka mala kafanica)9 min
Prevoz
- Taksi stajalište (Taxi stanica)9 min
- Autobuska stanica (Škola Vojislav Ilić)8 min
- Tramvajska stanica (Pijaca Zvezdara)18 min
- Trolejbuska stanica (Bačvanska)6 min
Ostale ustanove
- Banka (OTP banka)4 min
- Pošta (Pošta Beograd 107)4 min
Kontakt oglašivača
▾Reklama▾
Stambeni krediti

- Period otplate od
96 -360 meseca
- NKS 4.75%
EKS 5.74%
Fiksna kamatna stopa
- Bez troškova obrade kredita
401 € / mesečno
Saznaj višePogledaj detaljnije i menjaj uslove kreditiranja na
stranici kreditnih kalkulatora
stranici kreditnih kalkulatora
Keš krediti
RSDIznos kredita
Period otplate
13 meseci