Lokal na prodaju, Gornji Grad, 480.000€, 352m²






















480.000 €
1.364 € / m2
- Etažno grejanje
- Opremljenost: klima
- Oglas oglašava agencija pod reg. brojem 331
Opis oglasa
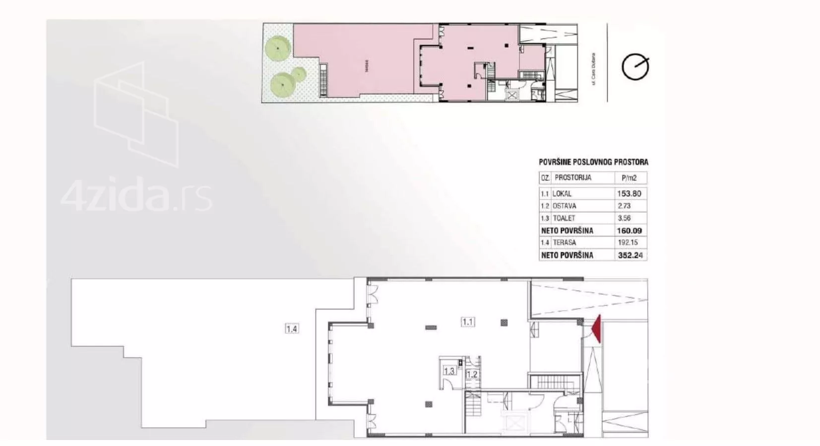
Izuzetna prilika za investiciju – prostran lokal u novogradnji na prizemlju, sa pripadajućom dvorištem i mogućnosti kupovine više garažnih mesta.
Prostor nudi brojne mogućnosti za različite vrste poslovanja, bilo da su to trgovine, marketi, igraonice, banke, edukativni centri...
Lokal se nalazi na idealnoj lokaciji, blizu kompleksa ,,Zemunske kapije’’, u blizini škola, vrtića kao i blizu mosta Mihajla Pupina i odlično povezan sa glavnim gradskim i međugradskih saobraćajnicama i aerodromu, što ga čini savršenim za privlačenje širokog spektra klijenata.
Pored toga, za prostor postoji i mogućnost pretvaranja u luksuzni stan sa dvorištem i zelenom oazom, pružajući vam fleksibilnost i dodatne opcije za investiciju.
Ključne karakteristike:
Površina: 352 m² sa pripadajućim dvorištem
Prazan i prilagodljiv prostor: Spreman za adaptaciju po Vašim potrebama
Garaža: mogućnost kupovine više garažnih mesta za Vas i Vaše klijente
Agent:
Marija Đurić (broj licence 3737)
Kontakt:
062... (prikaži broj telefona)
*Sačuvaj oglas uz belešku i primaj obaveštenja o njihovom pojeftinjenju ili pojavljivanju sličnih
Prikaz poslovnog prostora na mapi
Parkovi u blizini
- Park Sava Kovačević19 min
- Dečje igralište26 min
- Park Jelovac27 min

Obeležja kulture u blizini
- Livnica Pantelić8 min
- Kula Sibinjanin Janka Gardoš9 min
- Kuća porodice Karamata9 min

Škole/Fakulteti/Vrtići u blizini
- Osnovna škola (Osnovna škola Sonja Marinković)4 min
- Srednja škola (Specijalna srednja škola Veljko Ramadanović)10 min
- Vrtić (Dečiji vrtić Pepeljuga)4 min
- Fakultet (Kriminalističko policijski univerzitet)9 min

- Bolnica (Gradski zavod za plućne bolesti i tuberkulozu)5 min
- Klinika (Poliklinika O2)4 min
- Teretana (Art Sport Gym)5 min
- Prodavnica (Shop&Go)4 min
- Restoran (Restoran Time Story)9 min
- Kafana (Kafana Biblioteka kod Majora)14 min
- Taksi stajalište (Taxi stanica)17 min
- Autobuska stanica (Tršćanska)3 min
- Banka (Banca Intesa)6 min
- Pošta (Pošta Beograd 82)14 min
Kontakt oglašivača

Stambeni krediti

- Period otplate od
96 -360 meseca
- NKS 4.75%
EKS 5.74%
Fiksna kamatna stopa
- Bez troškova obrade kredita
stranici kreditnih kalkulatora
Keš krediti
Period otplate
13 meseci