Lokal na prodaju, Bioskop Voždovac, 146.000€, 52m²


146.000 €
2.808 € / m2
- Etažno grejanje
- Uobičajeno stanje
- Prostorije: toalet
- Oglas oglašava agencija
Opis oglasa
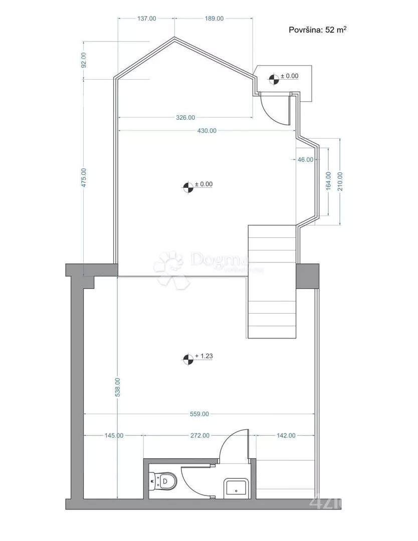
Voždovac, 3.0 lokal od 52 m2, PR, eg, klima, odmah useljiv, uknjižen, novija gradnja.
Lokal se nalazi na Voždovcu, jednoj od najtraženijih opština u Beogradu, poznatoj po dobroj infrastrukturi, velikom broju stambenih zgrada, škola, prodavnica i javnog prevoza. U blizini su glavne saobraćajnice koje omogućavaju brzu povezanost sa ostalim delovima grada, što ovu lokaciju čini pogodnom kako za poslovanje, tako i za različite uslužne delatnosti.
Zahvaljujući rasporedu na dva nivoa i funkcionalnoj organizaciji prostora, lokal pruža mogućnost prilagođavanja različitim poslovnim potrebama. Pogodan za tihe delatnosti, kancelarije, ordinacije, laboratorije, kao skladišni prostor itd.
Sastoji se od dve celine, donji nivo je u visini ulaza i gornji je podignut 8 stepenika. Na gornjem nivou je toalet sa kotlom za etažno grejanje na struju, tako da nema fiksnog troška za centralno grejanje. Pored toga, ugrađen je i klima uređaj 18000 BTU.
Spoljna stolarija je aluminijumska sa dosta staklenih površina.
Cena 146 000 evra.
Agencijska provizija koju plaća kupac iznosi 2 % od dogovorene kupoprodajne cene.
*Sačuvaj oglas uz belešku i primaj obaveštenja o njihovom pojeftinjenju ili pojavljivanju sličnih
Prikaz poslovnog prostora na mapi
Parkovi u blizini
- Bajronov park8 min
- Park Jove Ilića17 min
- Park Šumice19 min

Obeležja kulture u blizini
- Spomenik Franše Depereu6 min
- Kuća Flašar8 min
- Spomenik oslobodilaca Beograda 1806. godine9 min

Škole/Fakulteti/Vrtići u blizini
- Osnovna škola (Osnovna škola Veselin Masleša)6 min
- Srednja škola (Geološka i hidrometeorološka škola Milutin Milanković)2 min
- Vrtić (Dečiji vrtić Mala fabrika mašte)3 min
- Fakultet (Fakultet za projektni i inovacioni menadžment)4 min

- Bolnica (Klinika za fizikalnu medicinu Saint James)8 min
- Klinika (Poliklinika Antamedica)7 min
- Teretana (Fitness centar Atom Ant)3 min
- Prodavnica (S.B. Babić - zlatiborsko užički specijaliteti)5 min
- Restoran (Restoran Kuhinja)5 min
- Kafana (Robin Hood Pub)5 min
- Taksi stajalište (Taxi stanica)12 min
- Autobuska stanica (Ljubićka (Univerzitet Singidunum))4 min
- Tramvajska stanica (Kralja Vladimira)5 min
- Trolejbuska stanica (Kruševačka)20 min
- Banka (Poštanska štedionica)4 min
- Pošta (Pošta Beograd 9)5 min
Kontakt oglašivača
Krediti OTP banke
Saznaj više
Prikazana rata odnosi se na maksimalni period otplate. Kalkulator je informativnog karaktera.
* Nakon isteka 5 godina, prelazi se na varijabilnu kamatnu stopu

