Plac na prodaju, Zvečka, 20.000€, 4.5a
Beograd, Obrenovac opština, Zvečka
Prikaži mapuŠifra oglasa: 4zida-2279Oglas ažuriran: pre 6 sati




























20.000 €
Plac
4.5 a
Opis oglasa
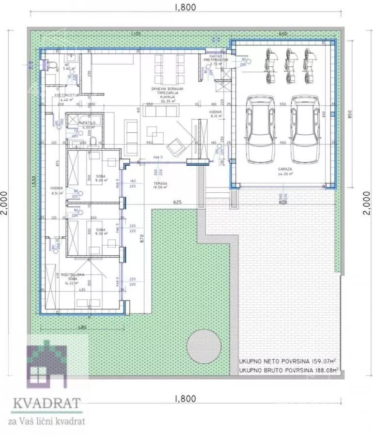
Prodaje se građevinski plac površine 4,5 ara, ravan i pravilnog oblika, idealan za porodično stanovanje ili investiciju.
Dimenzije prilaznog puta 30 x 3, dela za izgradnju 20 x 18.
✔️ Urađen projekat za modernu, prizemnu kuću (uključen u cenu)
✔️ Plac se nalazi na samo 200 m od glavnog puta Obrenovac – Šabac
- 3km od centra Obrenovca.
✔️ Blizina marketa i autobuske stanice
✔️ Mirno i zeleno okruženje, a odlična povezanost sa gradom
Mogućnost priključka na struju, vodu i gas.
Plac je idealne veličine za funkcionalno dvorište, parking i moderan objekat, uz minimalno održavanje. Projekat je pažljivo osmišljen tako da maksimalno iskoristi prostor i obezbedi komforan porodični život.
Površina placa: 4,5 ara
Dokumentacija: uredna
Projekat za kuću: gotov i spreman za realizaciju
Za više informacija i zakazivanje razgledanja – pozvati 060... (prikaži broj telefona)
Agencijska provizija 2% (min. 600 €)
Ozbiljnost, predanost poslu, kao i visok stepen profesionalizma ističu agenciju Kvadrat na tržištu nekretnina kao veoma sigurnog i pouzdanog partnera svakoj porodici, pojedincu ili preduzeću koje se opredeli da prodaje, kupuje ili iznajmi nekretninu.
Prepustite brigu pronalaženja željene nekretnine našem iskusnom timu licenciranih agenata, uz obezbeđenu pravnu sigurnost.
*Sačuvaj oglas uz belešku i primaj obaveštenja o njihovom pojeftinjenju ili pojavljivanju sličnih
Prikaz zemljišta na mapi
Obeležja kulture u blizini
- Rodna kuća Vlade Aksentijevića18 min
- Spomen česma Karađorđu i učesnicima Prvog srpskog ustanka19 min
- Spomenik Vojvodi Mišiću19 min

Škole/Fakulteti/Vrtići u blizini
- Osnovna škola (Osnovna škola Jovan Jovanović Zmaj)19 min
- Srednja škola (Gimnazija Obrenovac)19 min
- Vrtić (Dečiji vrtić Veseljko)19 min
- Fakultet (SMATSA školski centar)45 min

Zdravlje
- Bolnica (Zavod za psihofiziološke poremećaje i govornu patologiju Dr Cvetko Brajović)47 min
- Klinika (Poliklinika In Medic)20 min
- Teretana (Body building i fitness klub Ahilej)43 min
Ostale ustanove
- Banka (NLB Komercijalna banka)18 min
- Pošta (Pošta Zvečka)16 min
Kontakt oglašivača
▾Reklama▾
Krediti OTP banke
RSDIznos kredita
Period otplate
13 meseciod 12.261 RSD
mesečno
Za klijente banke
NKS 10.55%-EKS 12.53%
Period otplate 13 - 71 mesec
Saznaj više
