Građevinsko zemljište na prodaju, Ritska, 15.000€, 20.8a




15.000 €
Opis oglasa
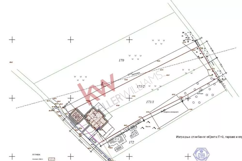
Gradsko građevinski plac, površine 2077m2, smešten u mirnom delu Pavliša, u ulici Ritska, 200m od glavnog puta Vršac-Pavliš.
Plac se nalazi u građevinskoj zoni. Poseduje važeći katastarsko-topografski plan sa jasno definisanim međnim linijama, a vlasništvo je čisto 1/1, bez ikakvog tereta.
Za ovaj plac izdati su lokacijski uslovi i saglasnost za priključke na elektro-mrežu (Elektroprivreda Srbije), Vodovod i fekalnu kanalizaciju (JKP Drugi oktobar), kao i gasnu mrežu (JKP Drugi oktobar- Gasovod)
Pored navedenog, dostupan je projekat za izgradnju stambene kuće površine 148m2 sa tri garaže, uz izdato Rešenje o građevinskoj dozvoli, koji se proteže i na plac pored.
Lokacija je pogodna za idealan porodični život zahvaljujući blizini osnovne škole i dečjeg vrtića. Pavliš je poznat po mirnom i prijatnom okruženju, a brz pristup obližnjim gradovima omogućava lak dolazak do svih neophodnih sadržaja.
U blizini su prodavnice, kafići i druge svakodnevne usluge, što doprinosi kvalitetu i praktičnosti života.
Ne propustite jedinstvenu priliku da postanete vlasnik jednog ili oba placa po neverovatno sniženoj ceni!
*Sačuvaj oglas uz belešku i primaj obaveštenja o njihovom pojeftinjenju ili pojavljivanju sličnih
Prikaz zemljišta na mapi
Parkovi u blizini
- Čukuranski park10 min
- Park Paje Jovanovića13 min
- Gradski park Vršac18 min

Obeležja kulture u blizini
- Gradska kuća Magistrat6 min
- Vladičanski dvor6 min
- Sterijina kuća - druga7 min

Škole/Fakulteti/Vrtići u blizini
- Osnovna škola (Osnovna škola Olga Petrov Radišić)5 min
- Srednja škola (Školski centar Nikola Tesla)7 min
- Vrtić (Dečiji vrtić Kolibri)14 min
- Fakultet (SMATSA vazduhoplovna akademija)6 min

- Bolnica (Psihijatrijska bolnica Dr Slavoljub Bakalović)4 min
- Klinika (Poliklinika Cukanić)9 min
- Prodavnica (Maxi Supermarket)12 min
- Restoran (Restoran Stanišić)13 min
- Kafana (Pab Čađava furuna)21 min
- Taksi stajalište (Taxi Maxi)29 min
- Autobuska stanica (Vršac - Beograd)19 min
- Banka (Eurobank Direktna)5 min
- Pošta (Pošta Vršac 1)6 min
Kontakt oglašivača
Keš krediti
Period otplate
13 meseci
