Građevinsko zemljište na prodaju, Selo, 15.000€, 20.8a




15.000 €
Opis oglasa
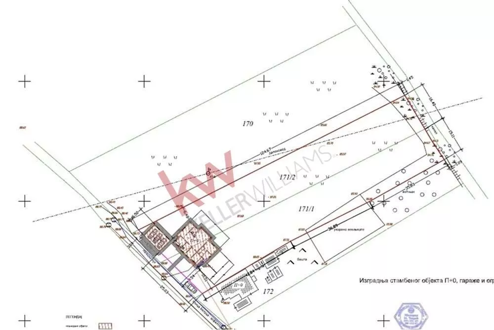
Gradsko građevinski plac, površine 2080m2, smešten u mirnom delu Pavliša, u ulici Ritska, 200m od glavnog puta Vršac-Pavliš.
Plac se nalazi u građevinskoj zoni. Poseduje važeći katastarsko-topografski plan sa jasno definisanim međnim linijama, a vlasništvo je čisto 1/1, bez ikakvog tereta.
Za ovaj plac izdati su lokacijski uslovi i saglasnost za priključke na elektro-mrežu (Elektroprivreda Srbije), Vodovod i fekalnu kanalizaciju (JKP Drugi oktobar), kao i gasnu mrežu (JKP Drugi oktobar- Gasovod)
Pored navedenog, dostupan je projekat za izgradnju stambene kuće površine 148m2 sa tri garaže, uz izdato Rešenje o građevinskoj dozvoli, koji se proteže i na plac pored.
Lokacija je pogodna za idealan porodični život zahvaljujući blizini osnovne škole i dečjeg vrtića. Pavliš je poznat po mirnom i prijatnom okruženju, a brz pristup obližnjim gradovima omogućava lak dolazak do svih neophodnih sadržaja.
U blizini su prodavnice, kafići i druge svakodnevne usluge, što doprinosi kvalitetu i praktičnosti života.
Ne propustite jedinstvenu priliku da postanete vlasnik jednog ili oba placa po neverovatno sniženoj ceni!
*Sačuvaj oglas uz belešku i primaj obaveštenja o njihovom pojeftinjenju ili pojavljivanju sličnih
Prikaz zemljišta na mapi
Obeležja kulture u blizini
- Vladičanski dvor8 min
- Gradska kuća Magistrat9 min
- Rodna kuća Jovana Sterije Popovića9 min

Škole/Fakulteti/Vrtići u blizini
- Osnovna škola (Osnovna škola Đura Jakšić)manje od 1 min
- Srednja škola (Poljoprivredna škola Vršac)8 min
- Vrtić (Dečiji vrtić Leptirić)8 min
- Fakultet (Visoka škola strukovnih studija za obrazovanje vaspitača Mihailo Pavlov)13 min

- Bolnica (Psihijatrijska bolnica Dr Slavoljub Bakalović)11 min
- Klinika (Poliklinika Cukanić)15 min
- Prodavnica (Gomex market)manje od 1 min
- Banka (OTP banka)9 min
- Pošta (Pošta Pavliš)manje od 1 min
Kontakt oglašivača
Keš krediti
Period otplate
13 meseci
