Građevinsko zemljište na prodaju, Obršinska, 60€, 6.1a




















60 €
- Infrastruktura: struja, asfaltni prilaz, voda
Opis oglasa
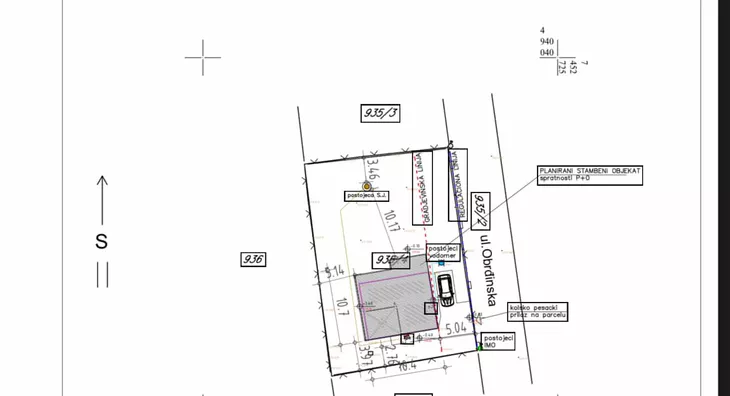
Na prodaju građevinski plac – KO Guncati, GO Barajevo (k.p. 935/4)
Prodaje se građevinska parcela površine 610 m² u naselju Guncati (GO Barajevo), katastarska parcela br. 935/4 KO Guncati.
📍 Lokacija i namena
Plac se nalazi u zoni koja je prema Prostornom planu GO Barajevo definisana kao izgrađeno zemljište u granicama građevinskog područja, što omogućava izgradnju stambenog objekta.
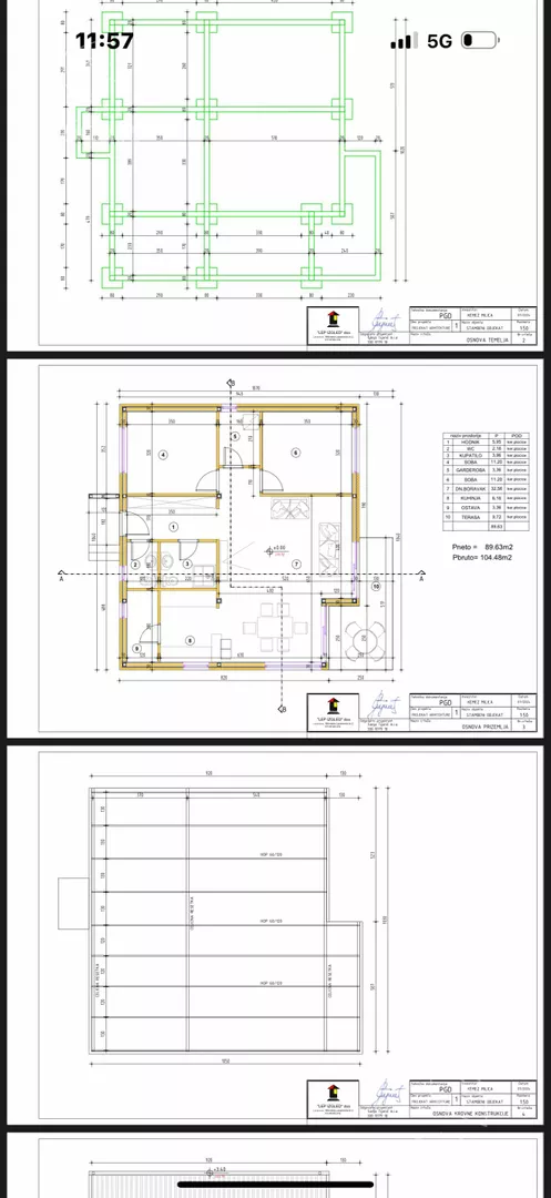
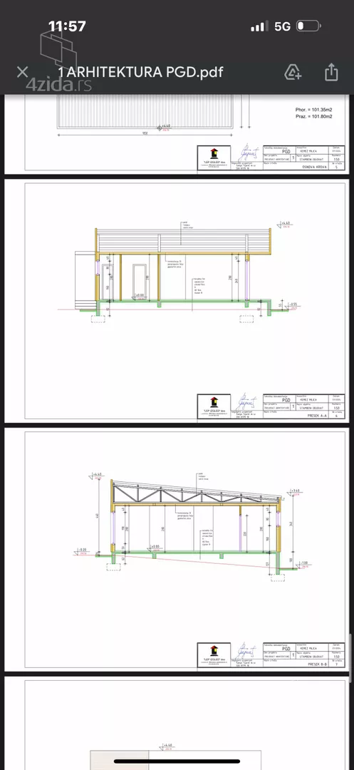
Na parceli se trenutno nalazi temelj za prizemni objekat površine 79 m² (neto 73,11 m²).
🏡 Mogućnost gradnje
Za parcelu su pribavljeni lokacijski uslovi (CEOP: ROP-BAR-23374-LOCH-3/2024, 04.11.2024.), a planirana je izgradnja stambenog objekta spratnosti P+0.
Objekat je klasifikacije 111011 – stambena zgrada sa jednim stanom.
Planirana bruto površina objekta je 104,48 m², ukupna neto površina 89,63 m².
🚗 Pristup i infrastruktura
- Prilaz parceli sa istočne strane, iz ulice Obršinska (preko k.p. 935/2 KO Guncati)
- Obezbeđen kolski ulaz
- Predviđeno jedno parking mesto na parceli
🌄 Karakteristike placa
- Pravilan oblik
- Srednja apsolutna kota terena u zoni gradnje: 242,20 mnv
Plac je idealan za izgradnju porodične kuće ili vikend kuće, u mirnom delu Barajeva, sa dobrom saobraćajnom povezanošću i uređenim pravno-planskim statusom.
Cena: 60.000 (dogovor može)
Za više informacija i dogovor oko obilaska – kontaktirajte broj telefona 069... (prikaži broj telefona) .
*Sačuvaj oglas uz belešku i primaj obaveštenja o njihovom pojeftinjenju ili pojavljivanju sličnih
Prikaz zemljišta na mapi
Obeležja kulture u blizini
- Crkva brvnara15 min
- Spomenik oslobodiocima Rušnja20 min
- Zgrada Stare vage u Železniku28 min

Škole/Fakulteti/Vrtići u blizini
- Osnovna škola (Osnovna škola Vuk Karadžić)6 min
- Srednja škola (Srednja škola Barajevo)16 min
- Vrtić (Predškolska ustanova Poletarac Barajevo)15 min
- Fakultet (Visoka sportska i zdravstvena škola)37 min

- Bolnica (Zavod za psihofiziološke poremećaje i govornu patologiju Dr Cvetko Brajović)14 min
- Klinika (Poliklinika Vaša kuća zdravlja)29 min
- Teretana (Fitness centar Elite Athlete)21 min
- Prodavnica (Prodavnica Mega Sunce)42 min
- Restoran (Restoran Naša Familija)43 min
- Autobuska stanica (Stanica "ACINA KAFANA")35 min
- Banka (Poštanska štedionica)16 min
- Pošta (Pošta Meljak)11 min
Kontakt oglašivača
Krediti OTP banke
Period otplate
13 mesecimesečno
Period otplate 13 - 71 mesec
Saznaj više