Građevinsko zemljište na prodaju, Jove Maksina 61, 320.000€, 10.0a




















- Infrastruktura: struja, kanalizacija, asfaltni prilaz, voda
Opis oglasa
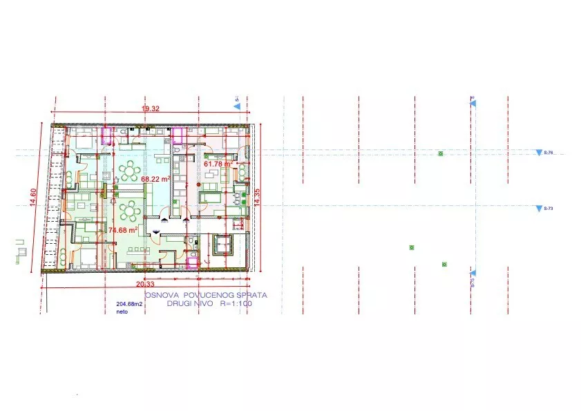
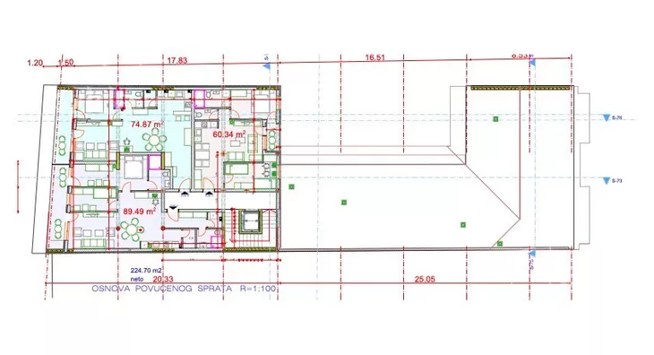
Plac od 10 ari u Gornjem gradu (Margita) sa projektom od 20 stanova i 20 garaznih mesta i 18 ostava, 2000m2 bruto odnosno 1428m2 neto. Plac je 14,5m sirine (front) i 67m duzine.
Na placu se nalaze sve potrebne instalacije: struja, voda, kanalizacija, gas.
Plac je na odlicnoj lokaciji, na granici naselja Margita i Kotez 2, u mirnoj ulici Jove Maksina. U urbanom delu grada, na samo nekoliko minuta hoda od nove autobuske stanice, SUP-a, buvljaka, osnovnih skola, vrtica, marketa i svega 1km od centra grada.
Stanovi su razlicitih velicina i u ovom delu Panceva se kvadrat krece oko 2200 eura dok je u predgradnji 1800-2000 eura sto ovu investiciju cini veoma, veoma isplativom. Takodje Pancevo ima nedostatak stabenog prostora usled velike potraznje i stanovi se prodaju brzo i predvidjen je nastavak rasta cena kvadrata i sledece godine.
Moguca zamena za kvadrate, stanove ili lokal(e).
Ova ponuda je jedinstvena na trzistu i ovaj plac na ovoj lokaciji i ovih karakteristika je najpovonljniji na trzistu, ne cekajte dugo nego pozovite 069... (prikaži broj telefona)
*Sačuvaj oglas uz belešku i primaj obaveštenja o njihovom pojeftinjenju ili pojavljivanju sličnih
Prikaz zemljišta na mapi
Parkovi u blizini
- Park na Trgu kralja Petra26 min
- Narodna bašta Pančevo37 min
- Park Barutana40 min

Obeležja kulture u blizini
- Spomen kompleks Stratište11 min
- Spomenik vojvodi Stevanu Šupljikcu11 min
- Zgrada Stare bolnice12 min

Škole/Fakulteti/Vrtići u blizini
- Osnovna škola (Osnovna škola Vasa Živković)6 min
- Srednja škola (Ekonomsko-trgovinska škola Paja Marganović)9 min
- Vrtić (Dečiji vrtić Bubamara)5 min
- Fakultet (Stomatološki fakultet Pančevo)15 min

- Bolnica (Bolnica za očne bolesti Pančevo)11 min
- Klinika (Poliklinika MD)5 min
- Teretana (Be Fit Fitness Club)9 min
- Prodavnica (Soulfood market)5 min
- Restoran (Restoran Citadela)16 min
- Kafana (Kafana Crni leptir)28 min
- Taksi stajalište (Taxi stanica)24 min
- Autobuska stanica (Knićaninova 2)5 min
- Banka (Poštanska štedionica)4 min
- Pošta (Pošta Pančevo 10)6 min
Kontakt oglašivača
Keš krediti
Period otplate
13 meseci- Period otplate od 13 -71 mesec
- NKS 10.55%
- EKS od 10.87%
- Za klijente banke
mesečno