Građevinsko zemljište na prodaju, Vojvode Skopljanca, 1.200.000€, 5.5a








1.200.000 €
Opis oglasa
U ponudi izuzetan građevinski plac na jednoj od najatraktivnijih lokacija na Voždovcu – u ulici Vojvode Skopljanca, idealan za investitore koji žele sigurnu i brzu realizaciju projekta.
Plac površine 5.5 ari dolazi sa važećom građevinskom dozvolom, što omogućava momentalan početak gradnje bez dodatnih administrativnih procedura – ogromna ušteda vremena i novca.
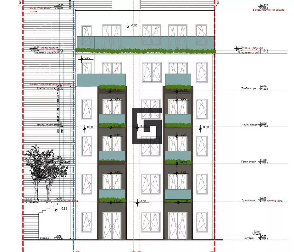
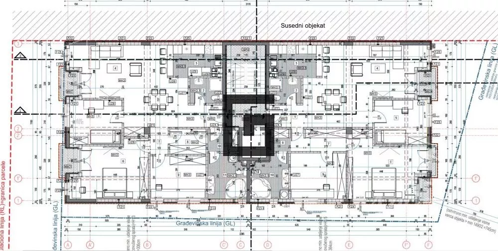
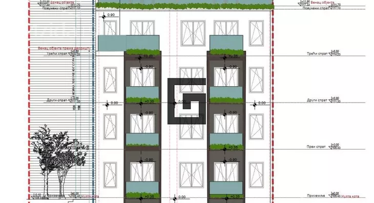
Stambeno-poslovni objekat spratnosti Po+Su+P+3+Ps, ukupne bruto razvijene građevinske površine (BRGP) od 1.963,40 m², od čega nadzemni deo iznosi 1.317,65 m².
sastoji se od:
14 stambenih jedinica
2 poslovna prostora (ateljea)
18 parking mesta u podzemnim etažama
Odlično projektovan i funkcionalno organizovan objekat, pogodan kako za stanovanje tako i za poslovne aktivnosti, sa jasno definisanim i optimalno iskorišćenim prostorima.
Ovakvi urbanistički parametri pružaju odličan potencijal za izgradnju moderne stambene ili stambeno-poslovne zgrade, sa visokim povraćajem investicije.
Lokacija je jedna od ključnih prednosti ovog placa. Voždovac je poznat po savršenom balansu urbanog života i mira – dovoljno blizu centru grada, a opet izdvojen od gradske gužve. U neposrednoj blizini nalaze se škole, vrtići, prodavnice, restorani i svi neophodni sadržaji za kvalitetan svakodnevni život.
Saobraćajna povezanost je odlična, što ovu lokaciju čini izuzetno traženom kako za porodično stanovanje, tako i za investicione projekte.
Ovo je retka prilika da obezbedite plac sa kompletnom dokumentacijom na jednoj od najperspektivnijih lokacija u Beogradu.
Za više informacija, stojimo Vam na raspolaganju!
Pronalaženje adekvatne nekretnine za vas, pomoć u pregovorima, provera dokumentacije,izrada ugovora/predugovora o kupoprodaji, bezbedno vođenje celokupnog kupoprodajnog procesa i papirologije
Agencijska provizija 2%
*Sačuvaj oglas uz belešku i primaj obaveštenja o njihovom pojeftinjenju ili pojavljivanju sličnih
Prikaz zemljišta na mapi
Parkovi u blizini
- Bajronov park13 min
- Park Šumice14 min
- Park Jove Ilića19 min

Obeležja kulture u blizini
- Spomenik Franše Depereu7 min
- Kuća Flašar8 min
- Spomenik oslobodilaca Beograda 1806. godine9 min

Škole/Fakulteti/Vrtići u blizini
- Osnovna škola (Osnovna škola Veselin Masleša)5 min
- Srednja škola (Geološka i hidrometeorološka škola Milutin Milanković)4 min
- Vrtić (Dečiji vrtić Mila Jevtović)4 min
- Fakultet (Univerzitet Singidunum)2 min

- Bolnica (Opšta bolnica Una)2 min
- Klinika (Poliklinika Equilibrium)8 min
- Teretana (Klub za dizanje tegova i aerobik Pit Gym)3 min
- Prodavnica (Minimarket Kole)4 min
- Restoran (Restoran Revanš)6 min
- Kafana (Kafanica Kod Slobe)6 min
- Taksi stajalište (Taxi stanica)8 min
- Autobuska stanica (Husova)4 min
- Tramvajska stanica (Vitanovačka)10 min
- Trolejbuska stanica (Kruševačka)16 min
- Banka (Poštanska štedionica)5 min
- Pošta (Pošta Beograd 11)4 min
Kontakt oglašivača

Krediti OTP banke
Period otplate
13 mesecimesečno
Period otplate 13 - 71 mesec
Saznaj više