Kuća na prodaju, Vranić, 110.000€, 225m²














110.000 €
489 € / m2
- Površina: 225 m²
- Površina placa: 8a
- Grejanje na struju
- Prostorije: terasa
- Uknjiženo
- Oglas oglašava agencija pod reg. brojem 295
- 1 garažno mesto
Opis oglasa
Kuca u samom centru Vranica, u blizini skole, doma zdravlja, prevoza.
U prizemlju je garaza koja moze da se pretvori u lokal (sa velikim izlogom do ulice).
Iza kuce je veliki plac pravougaonog oblika.
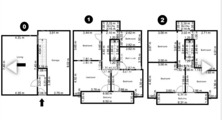
Kuca poseduje: prizemlje + prvi sprat + ptk.
Kuca je renovirana. Uradjena je pvc stolarija, podovi i kupatilo.
Instalacije za vodu i struju su zamenjene. Stavljene su plocice. U kupatilima podno grejanje i stavljeni su pvc prozori.
Potrebna su mala ulaganja na zadnjem spratu.
Moguce je napraviti dve stambene jedinice sa lokalom u prizemlju.
Grejanje je na struju. Radijatori su postavljeni i moze se instalirati eg na struju, toplotne pumpe...
Kuca poseduje dve velike terase sa prednje strane kuce i dve male terase sa zadnje strane kuce.
Prizemlje - garaza (moze se pretvoriti u lokal), dnevna soba, kuhinja.
I sprat - tri sobe, dva kupatila, dve terase.
II sprat - dve velike sobe, dve male sobe, dve terase i kupatilo.
Tavan.
Kuca poseduje i veliki podrum.
Moguc je dogovor oko cene.
Zivite na pravom mestu.
Zakazite svoj termin za gledanje kuce na vreme.
Uknjizena.
Prikaz na mapi je informativnog karaktera, ne prikazuje tacnu lokaciju.
Ag provizija 2%
uknjizena PR/2
*Sačuvaj oglas uz belešku i primaj obaveštenja o njihovom pojeftinjenju ili pojavljivanju sličnih
Prikaz kuće na mapi
Obeležja kulture u blizini
- Spomenik oslobodiocima Rušnja19 min
- Spomen česma Karađorđu i učesnicima Prvog srpskog ustanka22 min
- Crkva brvnara12 min

Škole/Fakulteti/Vrtići u blizini
- Osnovna škola (Osnovna škola Pavle Popović)9 min
- Srednja škola (Srednja škola Barajevo)15 min
- Vrtić (Predškolska ustanova Poletarac Barajevo)14 min
- Fakultet (Visoka sportska i zdravstvena škola)34 min

- Bolnica (Zavod za psihofiziološke poremećaje i govornu patologiju Dr Cvetko Brajović)12 min
- Klinika (Poliklinika In Medic)24 min
- Teretana (Fitness centar Elite Athlete)19 min
- Prodavnica (Shop&Go)9 min
- Restoran (Restoran Zavičaj Šiljakovac)49 min
- Autobuska stanica (Đoinčevića kuće)manje od 1 min
- Banka (Poštanska štedionica)13 min
- Pošta (Pošta Vranić)10 min
Kontakt oglašivača
Stambeni krediti
- Period otplate od
96 -360 meseca
- NKS 4.34%
Kombinovana kamatna stopa
- Bez troškova obrade kredita
- Odobrenje kredita do 48h
- Period otplate od
96 -360 meseca
- NKS 4.75%
EKS 5.74%
Fiksna kamatna stopa
- Bez troškova obrade kredita
stranici kreditnih kalkulatora
Keš krediti
Period otplate
13 meseci
