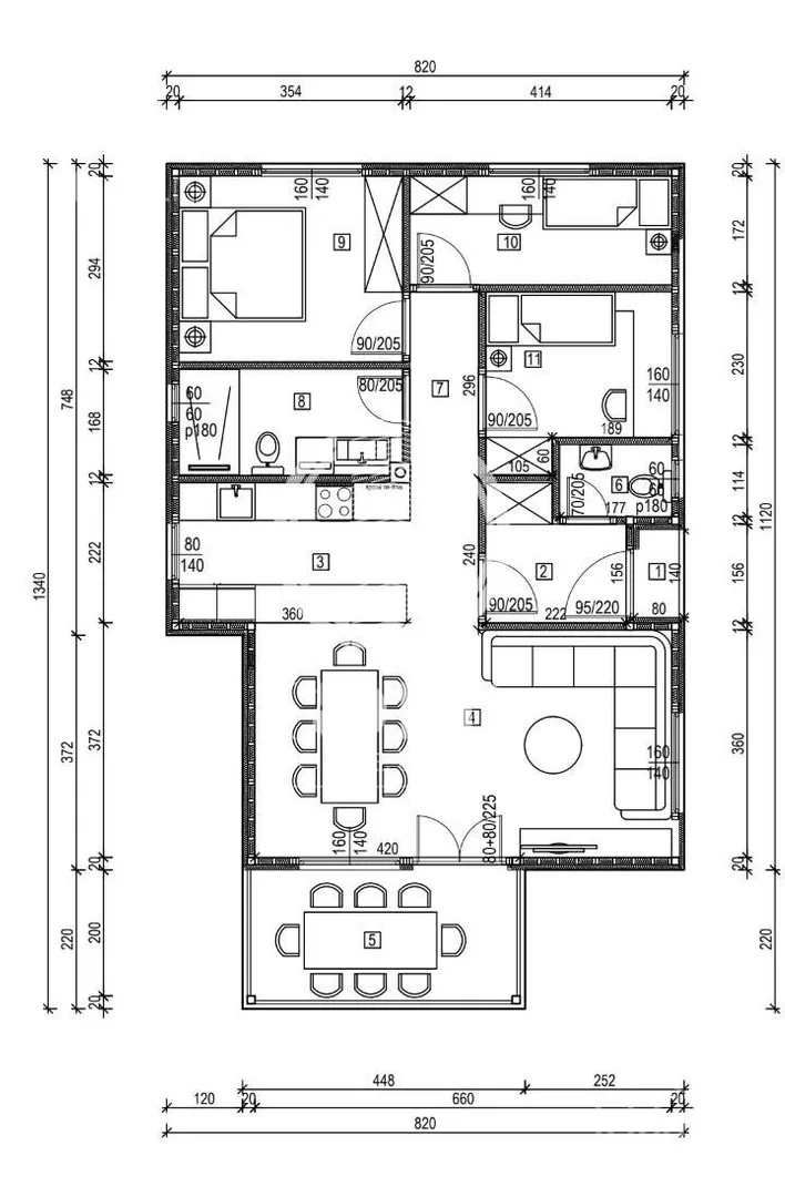
Kuća na prodaju, Bukovački put, 193.000€, 97m²


















193.000 €
1.990 € / m2
- Površina: 97 m²
- Prostorije: kupatilo, terasa
- Opremljenost: Prazno - internet, interfon, klima
- Uknjiženo
- Oglas oglašava agencija pod reg. brojem 1039
- 1 parking mesto
- Objekat poseduje: podrum
- Kablovska
- 1 telefonska linija
Opis oglasa
Kuća na prodaju-Petrovaradin, Novi Sad Agencija Gold nekretnine, predstavlja troiposobnu kućuna prodaju na Petrovaradinu, Novi Sad, udaljen svega 15minuta do centa grada. Na prodaju je prelepa, potpuno nova kuća u srcu Petrovaradina, skrivena u oazi zelenila i mira kakav se danas retko nalazi. Tek izgrađena i još uvek pod garancijom, ova kuća pruža savršen spoj modernog komfora i topline pravog porodičnog doma. Unutrašnjost odiše svetlošću i prostranošću — veliki dnevni boravak u otvorenom konceptu sa kuhinjom i trpezarijom čini da svaki trenutak bude prijatan, bilo da se okupljate sa porodicom ili uživate uz prvu jutarnju kafu. Tri udobne spavaće sobe pružaju dovoljno prostora za privatnost i mir, dok moderno uređeno kupatilo i veliki balkon donose dodatnu dozu luksuza i svakodnevnog uživanja. Okruženje je ono što ovu kuću čini posebnom. Utišan, zelen i prijatan kraj stvara osećaj kao da ste daleko od gradske gužve, a zapravo vam je sve na dohvat ruke — prodavnice, škole, prevoz, rekreativne staze i svi sadržaji potrebni za lagodan život. Ova kuća je idealan izbor za sve koji žele novi početak u predivnom okruženju, dom koji odiše kvalitetom i mesto na kojem se zaista može živeti punim plućima. Za više informacija i zakazivanje razgledanja nepokretnosti kontaktirajte: +38... (prikaži broj telefona) Cena nepokretnosti je oglašena bez posredničke naknade. Posrednička naknada agencije Gold nekretnine iznosi 3% koja se računa na ukupnu konačnu ugovorenu kupoprodajnu cenu nepokretnosti. Za sve dodatne informacije kontaktirajte nasu kancelariju-Gold nekretnine Novi Sad. Vaš siguran partner u svetu nekretnina Reg.posrednika br.1039
*Sačuvaj oglas uz belešku i primaj obaveštenja o njihovom pojeftinjenju ili pojavljivanju sličnih
Prikaz kuće na mapi
Parkovi u blizini
- Molinarijev park45 min

Obeležja kulture u blizini
- Kuća Jovana Jovanovića Zmaja7 min
- Spomenik Vezirac8 min
- Komunikaciona kapija11 min

Škole/Fakulteti/Vrtići u blizini
- Osnovna škola (Osnovna škola 22. avgust)4 min
- Srednja škola (Francusko-srpska gimnazija Petar I od Srbije)6 min
- Vrtić (Dečiji vrtić Cvetić)5 min
- Fakultet (Educons Univerzitet)6 min

- Bolnica (Kovid bolnica Novi Sad)5 min
- Klinika (Poliklinika NS Lab)7 min
- Teretana (Joga Yogaja Studio)8 min
- Prodavnica (Mikromarket)3 min
- Restoran (Restoran Beskraj)22 min
- Taksi stajalište (Delta Taxi)23 min
- Autobuska stanica (Bukovački do I)1 min
- Banka (Poštanska štedionica)7 min
- Pošta (Pošta Bukovac)4 min
Kontakt oglašivača

Stambeni krediti
- Period otplate od
96 -360 meseca
- NKS 4.34%
Kombinovana kamatna stopa
- Bez troškova obrade kredita
- Odobrenje kredita do 48h
- Period otplate od
96 -360 meseca
- NKS 4.50%
EKS 5.74%
Fiksna kamatna stopa
- Bez troškova obrade kredita
stranici kreditnih kalkulatora
Keš krediti
Period otplate
13 meseci