1-etažna kuća na prodaju, Telep, 309.000€, 145m²
Novi Sad, Gradske lokacije, Telep
Prikaži mapuOglas ažuriran: pre 1 dan


































































309.000 €
2.131 € / m2
145 m²
4 sobe
- Samostalna kuća
- Etaž: 1
- Površina: 145 m²
- Površina placa: 5a
- Grejanje na gas
- Uobičajeno stanje
- Prostorije: kupatilo, toalet
- Opremljenost: internet
- Materijal gradnje: cigla
- Uknjiženo
- Oglas oglašava agencija pod reg. brojem 761
- Parking u dvorištu zgrade
- Materijal gradnje: cigla
- Vodovod: gradska voda
- Godina izgradnje: 2010.
- Objekat poseduje: dvorište
- Kablovska
- 1 telefonska linija
Opis oglasa
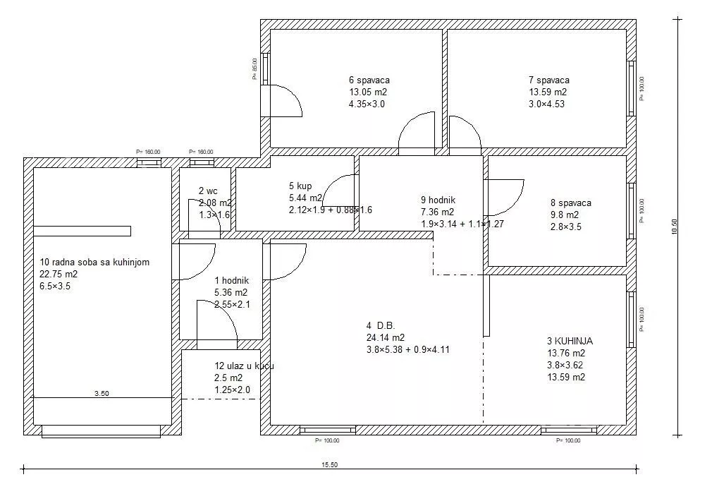
Prodaja uknjizene kuce na samoj granici Telepa i Adica-Novi Sad.Kuca se sastoji od prostranog dnevnog boravka sa kuhinjom i trpezarijom,tri spavace sobe,kupatila i toaleta.U sklopu kuce je i zasebna prostorija sa kuhinjom koja moze biti u funkciji radne sobe ili letne kuhinje.U dvoristu kuce natkriveno parking mesto i pomocna prostorija.Grejanje na gas,struja,voda,kanalizacija.Kuca je novijeg datuma,nisu potrebna ulaganja.Lepo uredjeno i ogradjeno dvoriste povrsine 500m2.
*Sačuvaj oglas uz belešku i primaj obaveštenja o njihovom pojeftinjenju ili pojavljivanju sličnih
Prikaz kuće na mapi
Parkovi u blizini
- Park Bistrica36 min
- Futoški park40 min
- Limanski park42 min

Obeležja kulture u blizini
- Jodna Banja13 min
- Dvorac Eđšeg13 min
- Kuća Jovana Jovanovića Zmaja17 min

Škole/Fakulteti/Vrtići u blizini
- Osnovna škola (Osnovna škola Jožef Atila)7 min
- Srednja škola (Gimnazija Laza Kostić)6 min
- Vrtić (Dečiji vrtić Bambino)8 min
- Fakultet (Protestantski teološki fakultet)5 min

Zdravlje
- Bolnica (Ginekološka bolnica Ferona)4 min
- Klinika (Poliklinika Consilium)5 min
- Teretana (Teretana Čeličana 021)6 min
Hrana i piće
- Prodavnica (Market City Shop)5 min
- Restoran (Restoran Picante)11 min
- Kafana (Kafanica Kod Dače)10 min
Prevoz
- Taksi stajalište (Taxi prevoz Novi Sad)11 min
- Autobuska stanica (Senteleki Kornela - OŠ Jožef Atila)5 min
Ostale ustanove
- Banka (Erste Bank Ekspres ekspozitura)6 min
- Pošta (Pošta Novi Sad 21124)8 min
Kontakt oglašivača
▾Reklama▾
Stambeni krediti
- Period otplate od
96 -360 meseca
- NKS 4.50%
EKS 5.74%
Fiksna kamatna stopa
- Bez troškova obrade kredita
- Period otplate od
96 -360 meseca
- NKS 4.34%
Kombinovana kamatna stopa
- Bez troškova obrade kredita
- Odobrenje kredita do 48h
310 € / mesečno
Saznaj višePogledaj detaljnije i menjaj uslove kreditiranja na
stranici kreditnih kalkulatora
stranici kreditnih kalkulatora
Keš krediti
RSDIznos kredita
Period otplate
13 meseci- Period otplate od 13 -71 mesec
- NKS 10.55%
- EKS od 10.87%
- Za klijente banke
od 12.261 RSD
mesečno
Saznaj višemesečno
Osiguranje domaćinstva online
Osiguraj svoje domaćinstvo u slučaju požara...

