Kuća na prodaju, Izvorska, 415.000€, 256m²








































415.000 €
1.621 € / m2
- Površina: 256 m²
- Površina placa: 6a
- Podno grejanje
- Prostorije: terasa
- Oglas oglašava agencija pod reg. brojem 145
- 1 garažno mesto
- Godina izgradnje: 2016.
- Objekat poseduje: podrum
Opis oglasa
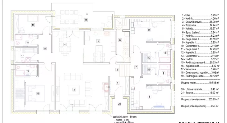
Prizemna kuća ,gradnja iz 2016.god. na placu od 6 ari.Korisne površine 185kvm, građevinske 256kvm, petosobna .
Od prostorija: Ulazni hodnik, Veliki dnevni boravak, kuhinja, trpezarija. četiri spavaće sobe sa garderoberima, četiri kupatila, (svaka soba sa kupatilom), vešernica, terasa od 16kvm, podrum 57kvm, garaža .
Etažno grejanje na toplotne pumpe, podno ispod keramike, Bojler od 200litara greje se solarnim kolektorom na krovu.
Debljina spoljnih zidova 50(termo blok+15cm stiropor+fasadna cigla),PVC stolarija sa roletnama i komarnicima.
Za svaku preporuku.
agencijska provizija 2% PR/0 Izvorska -imamo slicne NEKRETNINE BEOGRAD http://www.teofilnekretnine.com/stan-beograd/kartica.php?id=4323
*Sačuvaj oglas uz belešku i primaj obaveštenja o njihovom pojeftinjenju ili pojavljivanju sličnih
Prikaz kuće na mapi
Obeležja kulture u blizini
- Spomenik Nikoli Tesli9 min
- Stara osnovna škola14 min
- Hangar Starog aerodroma na Novom Beogradu21 min

Škole/Fakulteti/Vrtići u blizini
- Osnovna škola (Osnovna škola Vuk Karadžić)10 min
- Srednja škola (Srednja politehnička škola Politehnika)19 min
- Vrtić (Dečiji vrtić Duga)9 min
- Fakultet (SMATSA školski centar)9 min

- Bolnica (Opšta bolnica Avala)21 min
- Klinika (Poliklinika As Medicus Biorezonanca)17 min
- Teretana (Košava Gym)5 min
- Prodavnica (Aman market)13 min
- Restoran (Restoran Stara trpeza)19 min
- Taksi stajalište (Taxi stanica)43 min
- Autobuska stanica (Sterijina)11 min
- Banka (Poštanska štedionica)10 min
- Pošta (Pošta Beograd 95)8 min
Kontakt oglašivača
Stambeni krediti

- Period otplate od
96 -360 meseca
- NKS 4.75%
EKS 5.74%
Fiksna kamatna stopa
- Bez troškova obrade kredita
stranici kreditnih kalkulatora
Keš krediti
Period otplate
13 meseci