Kuća na prodaju, Dorćol, 3.200.000€, 561m²
Beograd, Stari Grad opština, Dorćol
Prikaži mapuŠifra oglasa: 4zida-728Oglas ažuriran: pre 6 meseci
OBIĐI 3D TURU































3D TURA































3.200.000 €
5.704 € / m2
561 m²
9 soba
- Površina: 561 m²
- Grejanje na toplotnu pumpu
- Renovirano
- Opremljenost: interfon
- Oglas oglašava agencija pod reg. brojem 331
- Objekat poseduje: video nadzor
Opis oglasa
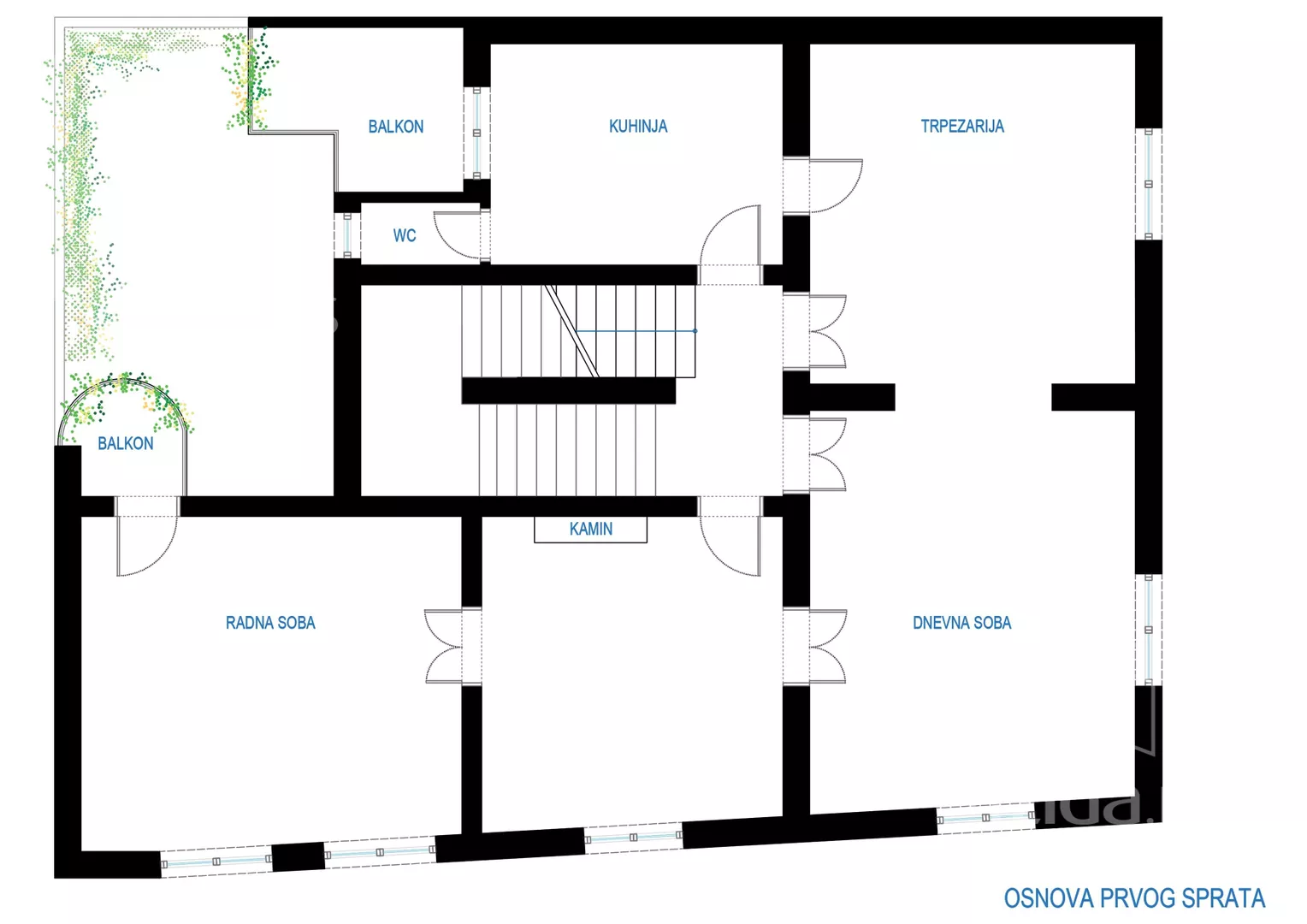
Unikatan objekat na atraktivnoj lokaciji. Salonska, gradska kuća kompletno renovirana, kvalitetno sa vrhunskim , prirodnim i ekološkim materijalima. Vodilo se računa o svakom detalju. Ima tri nivoa i sastoji se od niskog prizemlja, prizemlja i prvog sprata, ukupne kvadrature od 561 m2. Poseduje svoje dvorište popločano kamenom Traventin, ogradom od kovanog gvožđa i oplemenjeno zelenilom. Objekat je podjednako atraktivan za život kao i za poslovni prostor.
*Sačuvaj oglas uz belešku i primaj obaveštenja o njihovom pojeftinjenju ili pojavljivanju sličnih
Prikaz kuće na mapi
Parkovi u blizini
- Pančićev park5 min
- Univerzitetski park8 min
- Dečiji zabavni park11 min

Obeležja kulture u blizini
- Dom porodice Pavlović3 min
- Kuća Stevana Mokranjca3 min
- Spomenik Čukur česma3 min

Škole/Fakulteti/Vrtići u blizini
- Osnovna škola (Osnovna škola Skadarlija)3 min
- Srednja škola (Tehnička škola Drvo art)2 min
- Vrtić (Dečiji vrtić M&M Elefantino)2 min
- Fakultet (Univerzitet Nikola Tesla)2 min

Zdravlje
- Bolnica (Specijalna bolnica za ginekologiju Jevremova sa porodilištem)3 min
- Klinika (Poliklinika Aarona Medical B)2 min
- Teretana (Magic Wand Fitness)1 min
Hrana i piće
- Prodavnica (Super Diskont)2 min
- Restoran (Restoran Car)1 min
- Kafana (Krafter Bar)3 min
Prevoz
- Taksi stajalište (Taxi stanica)6 min
- Autobuska stanica (Dušanova)7 min
- Tramvajska stanica (Dorćol /Kneginje Ljubice/)3 min
- Trolejbuska stanica (Studentski trg)8 min
Ostale ustanove
- Banka (Eurobank Direktna)manje od 1 min
- Pošta (Pošta Beograd 10)2 min
Kontakt oglašivača
Svi oglasi - Gama PropertyCall Centar

▾Reklama▾
Stambeni krediti

- Period otplate od
96 -360 meseca
- NKS 4.75%
EKS 5.74%
Fiksna kamatna stopa
- Bez troškova obrade kredita
438 € / mesečno
Saznaj višePogledaj detaljnije i menjaj uslove kreditiranja na
stranici kreditnih kalkulatora
stranici kreditnih kalkulatora
Keš krediti
RSDIznos kredita
Period otplate
13 meseciOsiguranje domaćinstva online
Osiguraj svoje domaćinstvo u slučaju požara...