1-etažna kuća na prodaju, Jna, 70.000€, 104m²




























































70.000 €
673 € / m2
- Kuća u nizu
- Etaž: 1
- Površina: 104 m²
- Površina placa: 11.9a
- Etažno grejanje
- Renovirano
- Prostorije: kupatilo, terasa
- Opremljenost: Namešteno - internet
- Pogled na: ulicu, dvorište
- Materijal gradnje: građevinski blok
- Uknjiženo
- Oglas oglašava agencija pod reg. brojem 1299
- Materijal gradnje: građevinski blok
- Vodovod: gradska voda
- Kablovska
- 1 telefonska linija
Opis oglasa
Na prodaju uknjižena kuća sa velikim placem – Deliblato, opština Kovin
U mirnom i uređenom delu Deliblata prodaje se uknjižena porodična kuća, idealna za one koji traže više prostora, privatnost i zdravije okruženje, na oko 40 km od Beograda.
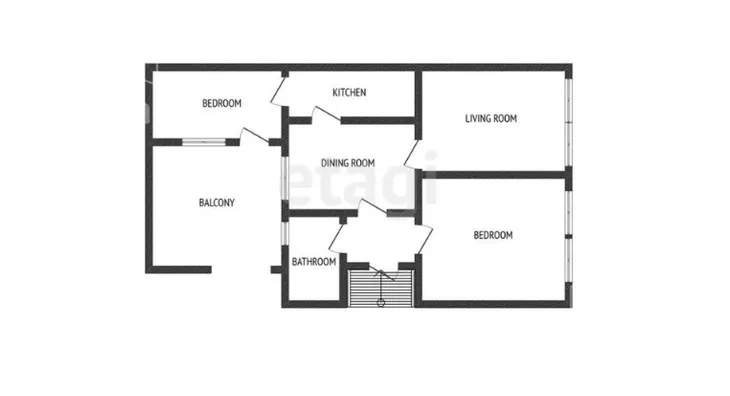
Kuća ima 104 m² i funkcionalan trosoban raspored: dve spavaće sobe, dnevni boravak, odvojenu kuhinju sa trpezarijom i kupatilo. Prostori su pravilni i lako prilagodljivi za stalno stanovanje, vikend ili rad od kuće.
Plac površine 11,9 ari dodatno doprinosi vrednosti nekretnine. Na imanju se nalazi i uknjižen pomoćni objekat od 65 m², sa potencijalom za različite namene.
Lokacija nudi mir, prirodu i čist vazduh, uz dobru povezanost sa Beogradom i okolnim mestima. Ulica ima kompletnu infrastrukturu, a nekretnina je pravno čista, bez zabeležbi.
Odlična prilika za kupce koji traže više od samih kvadrata — prostor i dugoročnu vrednost.
Posrednička naknada je u skladu sa Opštim uslovima poslovanja posrednika kompanije "Etagi com" d.o.o.
Продается оформленный дом с большим участком – Делиблато, община Ковин
В тихой и ухоженной части Делиблато продается полностью оформленный семейный дом, идеально подходящий для тех, кто ищет больше пространства, уединение и здоровую среду проживания, примерно в 40 км от Белграда.
Дом площадью 104 м² имеет функциональную трехкомнатную планировку: две спальни, гостиную, отдельную кухню с столовой и ванную комнату. Планировка удобна и легко адаптируется для постоянного проживания, дачи или работы из дома.
Участок площадью 11,9 соток значительно повышает ценность недвижимости. На территории расположен также оформленный вспомогательный объект площадью 65 м² с потенциалом для различных целей.
Локация сочетает тишину, природу и чистый воздух с хорошей транспортной доступностью к Белграду и окрестным населенным пунктам. Улица с развитой инфраструктурой, недвижимость юридически чиста, без обременений.
For Sale: Registered House with a Large Plot – Deliblato, Kovin Municipality
A fully registered family house is for sale in a quiet and well-kept part of Deliblato, ideal for buyers seeking more space, privacy, and a healthier environment, approximately 40 km from Belgrade.
The house offers 104 m² of living space with a functional three-room layout: two bedrooms, a living room, a separate kitchen with a dining area, and a bathroom. The layout is practical and easily adaptable for permanent living, a weekend home, or working from home.
The 11.9-are plot adds significant value to the property. The estate also includes a registered auxiliary building of 65 m², offering potential for various uses.
The location provides peace, nature, and clean air, while remaining well connected to Belgrade and nearby towns. The street is fully serviced, and the property is legally clear, without encumbrances.
*Sačuvaj oglas uz belešku i primaj obaveštenja o njihovom pojeftinjenju ili pojavljivanju sličnih
Prikaz kuće na mapi
Obeležja kulture u blizini
- Spomenik Bavanište24 min
- Most Marije Terezije na suvom37 min
- Spomenik prirode Karađorđev dud37 min

Škole/Fakulteti/Vrtići u blizini
- Osnovna škola (Osnovna škola Paja Marganović)6 min
- Srednja škola (Srednja škola Vasa Pelagić)15 min
- Vrtić (Dečiji vrtić Diznilend)37 min
- Fakultet (Stomatološki fakultet Pančevo)48 min

- Bolnica (Specijalna bolnica za psihijatrijske bolesti Kovin)16 min
- Klinika (Poliklinika Sveti Gral)37 min
- Teretana (Fitness centar Mega Gym Smederevo)36 min
- Prodavnica (DTL Podunavlje)11 min
- Banka (NLB Komercijalna banka)22 min
- Pošta (Pošta Deliblato)7 min
Kontakt oglašivača
Stambeni krediti
- Period otplate od
96 -360 meseca
- NKS 4.34%
Kombinovana kamatna stopa
- Bez troškova obrade kredita
- Odobrenje kredita do 48h
- Period otplate od
96 -360 meseca
- NKS 4.50%
EKS 5.74%
Fiksna kamatna stopa
- Bez troškova obrade kredita
stranici kreditnih kalkulatora
Keš krediti
Period otplate
13 meseci- Period otplate od 13 -71 mesec
- NKS 10.55%
- EKS od 10.87%
- Za klijente banke
mesečno
