4-etažna kuća na prodaju, Dositejeva 11, 370.000€, 530m²






























































































370.000 €
698 € / m2
- Samostalna kuća
- Etaž: 4
- Površina: 530 m²
- Površina placa: 8.43a
- Uobičajeno stanje
- Prostorije: kupatilo, toaleti (3+), kuhinja, ostava, terasa
- Opremljenost: Prazno - internet, kanalizacija
- Orijentacija ka: zapad
- Pogled na: ulicu, dvorište
- Materijal gradnje: cigla
- Uknjiženo
- Kupovina direktno od vlasnika
- 2 parking mesta, parking u dvorištu zgrade, javni parking u zoni
- Materijal gradnje: cigla
- Vodovod: gradska voda
- Kanalizacija
- Godina izgradnje: 1938.
- Objekat poseduje: dvorište, tavan, podrum
- Tip interneta: optički
- Kablovska
Opis oglasa
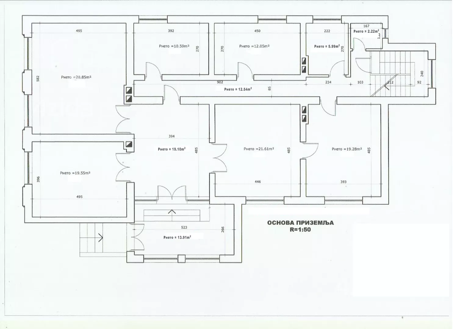
Salonska kuća, upisana u Katastar nepokretnosti, izgrađena 1938. godine. Kuća se nalazi na KP br 9409/1 površine 8,43 ara, u ulici Dositejeva 11, u ekstra zoni, na jednoj od najatraktivnijih lokacija u Zaječaru.
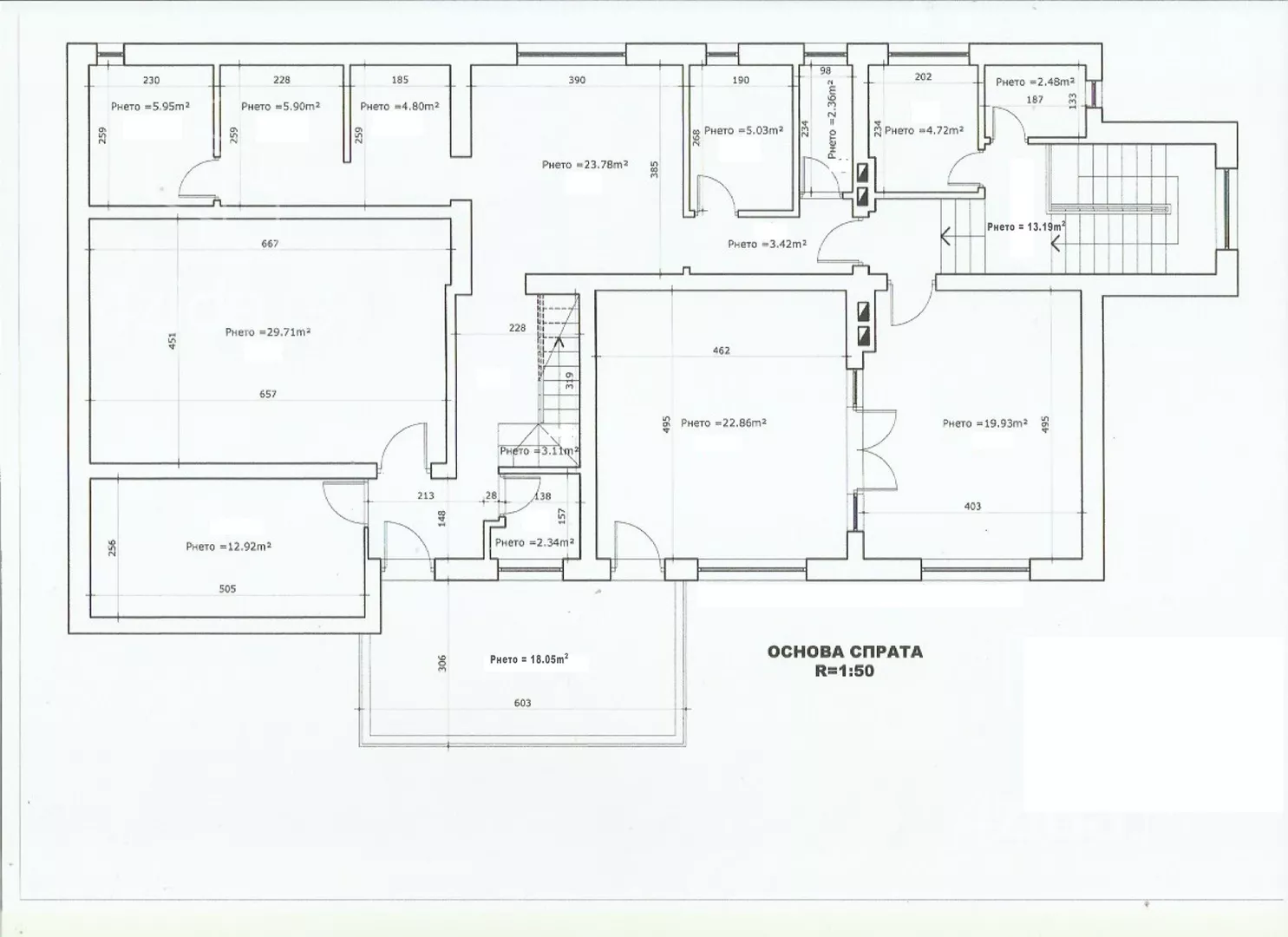
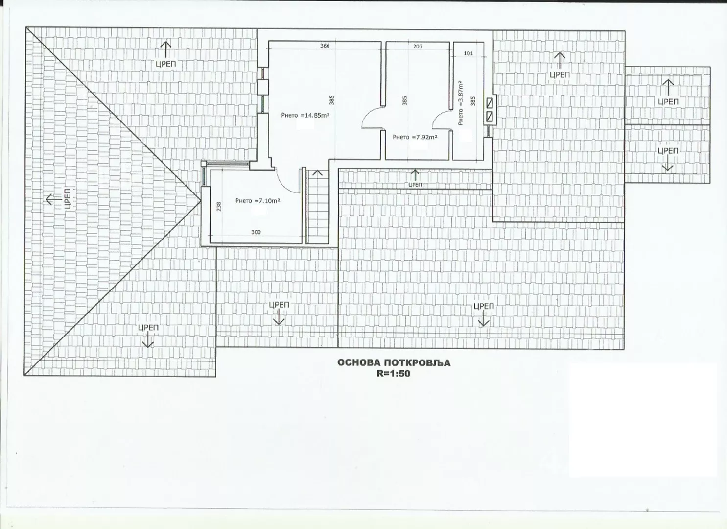
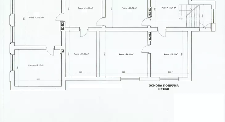
U osnovi je bruto površine 224 kvadrata, a ukupna površina svih etaža je 530 kvadrata (podrum, prizemlje, sprat i potkrovlje). Na placu se nalaze i dve uknjižene garaže površine 46 kvadrata.
Ispod čitave kuće je podrum/suteren u kome se nalazi i bunar. Prizemlje je salonskog tipa, a na spratu i potkrovlju se nalaze prostorije koje su nedavno rekonstruisane kao poslovni prostor (u njima se nalazila lokalna televizija).
Objekat je korišćen kao poslovni, a postoji i mogućnosti nadgradnje (P + 3).
*Sačuvaj oglas uz belešku i primaj obaveštenja o njihovom pojeftinjenju ili pojavljivanju sličnih
Prikaz kuće na mapi
Parkovi u blizini
- Park šuma Kraljevica22 min

Obeležja kulture u blizini
- Spomenik Vešala6 min
- Spomenik Zoranu Radmilovićumanje od 1 min
- Spomenik Nikoli Pašiću4 min

Škole/Fakulteti/Vrtići u blizini
- Osnovna škola (Osnovna škola Desanka Maksimović)3 min
- Srednja škola (Ekonomsko-trgovinska škola Zaječar)4 min
- Vrtić (Dečiji vrtić Zdravac)6 min
- Fakultet (Megatrend Univerzitet Fakultet za menadžment)7 min

- Bolnica (Opšta bolnica Zaječar)6 min
- Klinika (Poliklinika Paunković)4 min
- Teretana (Teretana Gym Xtreme)13 min
- Prodavnica (Tis market 11)4 min
- Restoran (Restoran Lunch express)6 min
- Kafana (Irish pub Rivendell)3 min
- Taksi stajalište (Taxi stanica)22 min
- Autobuska stanica5 min
- Banka (OTP banka)4 min
- Pošta (Pošta Zaječar 4)11 min
Kontakt oglašivača

Stambeni krediti

- Period otplate od
96 -360 meseca
- NKS 4.75%
EKS 5.74%
Fiksna kamatna stopa
- Bez troškova obrade kredita
stranici kreditnih kalkulatora
Keš krediti
Period otplate
13 meseci