1-etažna kuća na prodaju, Njegoševa 32, 23.000€, 111m²


















































23.000 €
207 € / m2
- Samostalna kuća
- Etaž: 1
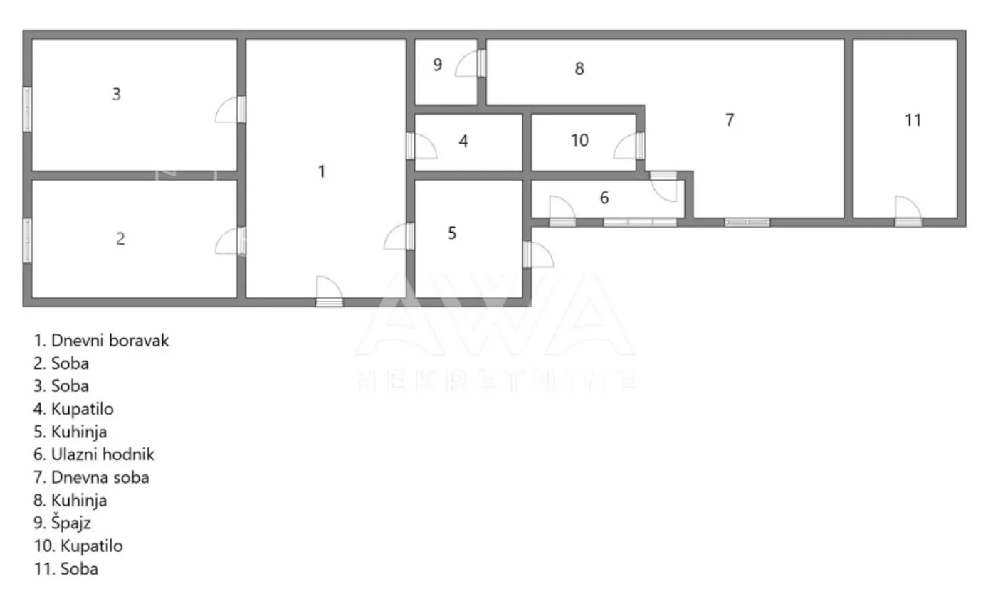
- Površina: 111 m²
- Površina placa: 3a
- Potrebno renoviranje
- Prostorije: kupatila (2), kuhinja, ostava
- Materijal gradnje: cigla
- Uknjiženo
- Kupovina direktno od vlasnika
- Materijal gradnje: cigla
- Vodovod: gradska voda
- Objekat poseduje: dvorište, tavan
Opis oglasa
U Apatinu, širem centru grada, na odličnoj lokaciji na 200m od Dunava (reke i šetališta) i centra (10 min hoda) prodaje se kuća bez struje (potrebno uključenje samo) sa 2 stana za adaptaciju i renoviranje na placu od 285m2, građena od čvrstog materijala, gde je stambeni objekat 111m2. Prvi stan se sastoji od dve spavaće sobe, dnevnog boravka, kuhinje i kupatila. U prvom objektu je bio manji požar (izgoreo je samo krevet - tinjao), pa su zidovi crni u dnevnom boravku. Važno je napomenuti da zidovi i krov nisu goreli i da je potrebno samo sastrugati fasadu do cigle i ponovo okrečiti. U produžetku kuće se nalazi jednosoban stan sa kuhinjom, kupatilom, dnevnim boravkom i mogućnošću proširenja za jednu manju spavaću sobu (mogućnost probijanja zida i dobitka još jedne sobe). Krov je u dobrom stanju na kući, na drugom stanu je potrebno popraviti. Pomoćni objekti u dvorištu u vidu 3 šupe od čega su 2 natkrivene, a pored njih je i omanja zemlja pogodna za baštu. Uredni papiri, vlasnik 1/1.
*Sačuvaj oglas uz belešku i primaj obaveštenja o njihovom pojeftinjenju ili pojavljivanju sličnih
Prikaz kuće na mapi
Obeležja kulture u blizini
- Grašalkovićeva palata27 min
- Spomen-bista Veljku Petroviću27 min
- Spomen-bista Lazi Kostiću27 min

Škole/Fakulteti/Vrtići u blizini
- Osnovna škola (Osnovna škola Žarko Zrenjanin)5 min
- Srednja škola (Srednja građevinska škola)5 min
- Vrtić (Dečiji vrtić Maslačak)25 min
- Fakultet (Univerzitet u Novom Sadu Pedagoški fakultet u Somboru)28 min

- Bolnica (Opšta bolnica Dr Radivoj Simonović Sombor)29 min
- Klinika (Ordinacija Virt)26 min
- Teretana (Fitness centar PS)26 min
- Prodavnica (IDEA Super)10 min
- Restoran (Čarda Zlatna kruna)8 min
- Kafana (Pivnica Na ćošku)12 min
- Autobuska stanica16 min
- Banka (Banca Intesa)4 min
- Pošta (Pošta Apatin)5 min
Kontakt oglašivača

Krediti OTP banke
Saznaj više
Prikazana rata odnosi se na maksimalni period otplate. Kalkulator je informativnog karaktera.
* Nakon isteka 5 godina, prelazi se na varijabilnu kamatnu stopu

