2-etažna kuća na prodaju, Oslobođenja 64, 75.000€, 120m²
























75.000 €
625 € / m2
- Samostalna kuća
- Etaž: 2
- Površina: 120 m²
- Površina placa: 4a
- Grejanje na struju
- Uobičajeno stanje
- Prostorije: kupatilo, toalet, kuhinja, ostava, terasa
- Pogled na: ulicu, dvorište
- Materijal gradnje: cigla
- Uknjiženo
- Kupovina direktno od vlasnika
- Garaža u sklopu zgrade
- 1 parking mesto
- Materijal gradnje: cigla
- Vodovod: gradska voda
- Godina izgradnje: 2020.
- Objekat poseduje: dvorište, tavan
- Autobuske linije: 56
Opis oglasa
Prodajem kuću sa potkrovljem dimenzija 16.4x7.3m ukupne kvadrature 120m2 + potkrovlje iste kvadrature.
Pravljena je 2020. godine, ima priključak za struju, vodu, kanalizaciju, i uknjižena je na 38m2, ali postoji laka mogućnost prijave dozidanih kvadrata i legalizacije ostatka kvadrature
Nalazi kraj asfaltiranog puta, uz mogućnost priključka na gas.
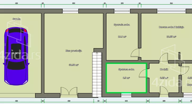
Kuća od prostorija sadrži: predsoblje, 2 spavaće sobe, dnevnu sobu sa kuhinjom, kupatilo, veliku nus prostoriju, kao i garažu.
Potkrovlje kuće nije izređeno i jedna je velika prostorija.
Na poslednjoj slici možete videti plan kuće sa tačnim dimenzijama svih prostorija.
Nalazi se na placu od 810m2 zajedno sa drugom kućom (pretposlednja slika) koju možete pogledati na sledećem linku:
https://www.4zida.rs/prodaja-kuca/begec-okolne-lokacije-novi-sad/dvoetazna/69761996b10295e9820abc1b
Postoji mogućnost kupovine samo ove kuće, gde bi površina placa koji joj pripada bio 360m2, a takođe postoji mogućnost prodaje obe kuće i celokupnog placa, uz mogućnost dogovora oko cene.
Postoji mogućnost zamene u obzir dolaze sledeći gradovi: Smederevska Palanka i okolina, Brčko, Bjeljina.
Za više informacija oko same nekretnine, potencijalnih zamena i slično kontaktirajte me na broj.
*Sačuvaj oglas uz belešku i primaj obaveštenja o njihovom pojeftinjenju ili pojavljivanju sličnih
Prikaz kuće na mapi
Obeležja kulture u blizini
- Dvorac Hadik-Kotek10 min
- Dvorac porodice Dunđerski - Bezeredi22 min
- Stara kuća u Bačkom Petrovcu22 min

Škole/Fakulteti/Vrtići u blizini
- Osnovna škola (Osnovna škola Veljko Petrović)11 min
- Srednja škola (Poljoprivredna škola Futog)10 min
- Vrtić (Dečiji vrtić Pinokio)5 min
- Fakultet (Protestantski teološki fakultet)31 min

- Bolnica (Opšta bolnica New Hospital)30 min
- Klinika (Poliklinika Zdravlje)25 min
- Teretana (Fitness studio Top Form)27 min
- Prodavnica (Mikromarket)10 min
- Autobuska stanica (Begeč - Kralja Petra I - Obradovića)8 min
- Banka (Poštanska štedionica)6 min
- Pošta (Pošta Begeč)11 min
Kontakt oglašivača
Krediti OTP banke
Saznaj više
Prikazana rata odnosi se na maksimalni period otplate. Kalkulator je informativnog karaktera.
* Nakon isteka 5 godina, prelazi se na varijabilnu kamatnu stopu

