Parking na prodaju, Somborska, 8.000€, 15m²








8.000 €
533 € / m2
Opis oglasa
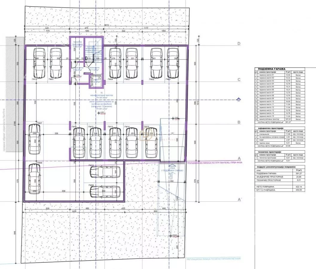
U ponudi BOX nekretnina, parkirno mesto u podzemnoj garaži stambenog objekta, na samom bulevaru Sv. Pantelejmona, nedaleko od novog Lidla. Nalazi se na etaži -1 i na prikazu osnove je označeno brojem 6.
Agencija BOX nekretnine je upisana u Registru posrednika pod brojem: 1557.
Pre razgledanja nepokretnosti u obavezi smo da od klijenta pribavimo fotokopiju lične karte, u skladu sa Zakonom o spečavanju pranja novca i finansiranju terorizma - Član 7. i Član 17. st. 6. Molimo klijente za razumevanje u tom pogledu imajući u vidu da ukoliko ne utvrdimo identitet klijenta možemo da snosimo Zakonske posledice od strane tržišne inspekcije. Takođe, po Zakonu o posredovanju u obavezi smo na zaključenje Ugovora o posredovanju sa klijentima.
*Sačuvaj oglas uz belešku i primaj obaveštenja o njihovom pojeftinjenju ili pojavljivanju sličnih
Prikaz garaže ili parkinga na mapi
Parkovi u blizini
- Park Svetog Save27 min
- Park složnih komšija28 min
- Park heroja NOB-a36 min

Obeležja kulture u blizini
- Ranohrišćanska grobnica5 min
- Ranohrišćanska bazilika7 min
- Zgrada Oficirskog doma10 min

Škole/Fakulteti/Vrtići u blizini
- Osnovna škola (Osnovna škola Čegar)5 min
- Srednja škola (Gimnazija 9. maj)9 min
- Vrtić (Dečiji vrtić Mazza)6 min
- Fakultet (Fakultet za pravne i poslovne studije Dr Lazar Vrkatić)9 min

- Bolnica (Bolnica Đorić)5 min
- Klinika (Family Medica poliklinika)1 min
- Teretana (Teretana Šuki)4 min
- Prodavnica (Maxi Supermarket)1 min
- Restoran (Restoran President Lux)2 min
- Kafana (Kafana Stari ambar)12 min
- Taksi stajalište (Duga taksi)25 min
- Autobuska stanica (Studenička)1 min
- Banka (Poštanska štedionica)4 min
- Pošta (Pošta Niš 3)4 min
Kontakt oglašivača
Keš krediti
Period otplate
13 meseci



















