Garaža na prodaju, Nikanora Grujića 46ž, 33.600€, 24m²






33.600 €
1.400 € / m2
- Arhitektura: garaža u sklopu objekta
- Tip gradnje: Zidana
- Infrastruktura: struja
- Broj mesta: 1
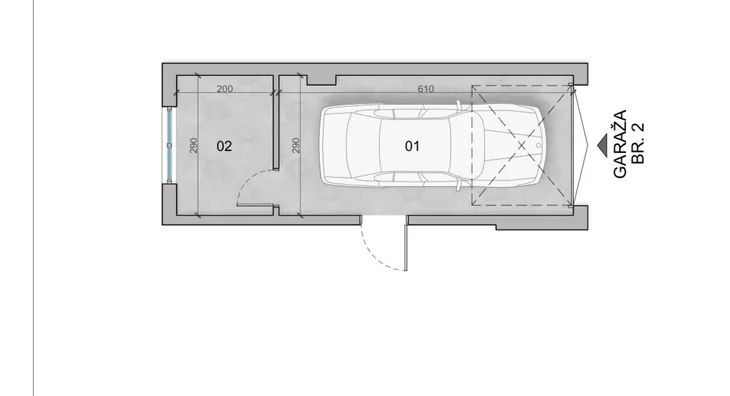
Opis oglasa
Prodaje se garaza kvadrature 24m2, u sivoj fazi( urađena košuljica, malterisani zidovi i izvedene instalacije). Planirani rok za završetak radova je 02.07.2026.
Cena garaže iznosi 1400 eura po m2 sa pdv
Adresa:
Nikanora Grujića 46 ž
Ulica Nikanora Grujića se nalazi na kraju ulice Živojina Ćuluma. U budućnosti je u neposrednoj blizini predviđen kružni tok ka kaćkom putu.
Prodavac:
Erker Gradnja Invest
063... (prikaži broj telefona) Goran Ðurić
*Sačuvaj oglas uz belešku i primaj obaveštenja o njihovom pojeftinjenju ili pojavljivanju sličnih
Prikaz garaže ili parkinga na mapi
Parkovi u blizini
- Železnički park48 min
- Park srpsko-azerbejdžanskog prijateljstva50 min

Obeležja kulture u blizini
- Spomen ploča Albertu Ajnštajnu i Milevi Marić10 min
- Spomenik Kralju Petru I Karađorđeviću10 min
- Katolička plebanija11 min

Škole/Fakulteti/Vrtići u blizini
- Osnovna škola (Osnovna škola Dušan Radović)5 min
- Srednja škola (Privatna srednja škola Sveti Nikola)5 min
- Vrtić (Dečiji vrtić Vidovdanski zvončić)4 min
- Fakultet (Fakultet za pravne i poslovne studije Dr Lazar Vrkatić)12 min

- Bolnica (Specijalna bolnica za bolesti zavisnosti Dr Boro Lazić)8 min
- Klinika (Poliklinika Pekić)10 min
- Teretana (Fitness centar Mega Gym Novi Sad)6 min
- Prodavnica (Mikromarket)7 min
- Restoran (Restoran Surabaya)14 min
- Kafana (Kafanica Dobro mesto)12 min
- Taksi stajalište (Novus taxi)22 min
- Autobuska stanica (Temerinska - Najlon pijaca)9 min
- Banka (Poštanska štedionica)12 min
- Pošta (Pošta Novi Sad 21138)4 min
Kontakt oglašivača
Krediti OTP banke
Saznaj više
Prikazana rata odnosi se na maksimalni period otplate. Kalkulator je informativnog karaktera.
* Nakon isteka 5 godina, prelazi se na varijabilnu kamatnu stopu