Trosoban stan za izdavanje, Preševska, 800€, 61m²
OBIĐI 3D TURU




















































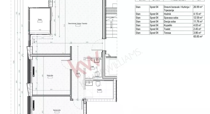
- Kvadratura: 61m²
- Na 4. spratu od ukupno 5 spratova
- Prostorije: kupatilo, toalet, terasa
- Oglas oglašava agencija pod reg. brojem 1219
- 1 garažno mesto
- 1 lift
Opis oglasa
Na odlično pozicioniranoj lokaciji između Đeram pijace i Liona, u srcu opštine Zvezdara i na svega nekoliko minuta hoda od Bulevara kralja Aleksandra, nalazi se moderna zgrada vrhunske gradnje koja nudi sve ono što je potrebno za udoban i kvalitetan život u gradu.
Ova mirna, lepo uređena ulica obezbeđuje savršen balans između dinamičnosti urbanog života i mira koji tražimo u svom domu. U blizini se nalaze škole, vrtići, prodavnice, restorani, pijaca, a javni prevoz omogućava izuzetnu povezanost sa svim delovima grada – od Vračara i centra, pa sve do Autokomande i Zvezdarske šume.
O zgradi
Objekat je nov, sa uredno održavanim ulazom, liftom, interfonom, video nadzorom, fan coil sistemom grejanja i hlađenja. Kvalitet gradnje i opreme je izuzetno visok, a celokupan enterijer pažljivo projektovan i izveden sa stilom.
O stanu
Trosoban stan površine 61,99m2 na četvrtom spratu, odiše komforom i modernim dizajnom. Lep dnevni boravak je odlično organizovan, orijentisan ka mirnom prostoru između zgrada, i izuzetno osvetljen zahvaljujući orijentaciji i velikim staklenim površinama, sa izlaskom na prijatnu terasu.
Unjegovom produžetku nalazi se moderna kuhinja, pravljena i opremljena po meri.
Dve spavaće sobe čine ovaj prostor pordičnim domom, a tu su i dva mokra čvora (kupatilo i toalet). Stan je kompletno namešten novim nameštajem, a kuhinja je opremljena celokupnom belom tehnikom i neophodnim kihinjskim aparatima.
Zašto je ovo ponuda koju ne treba propustiti?
- Kompletno namešten i opremljen (sve je u stanu novo)
- Odlična lokacija i organizacija prostorija
- Pripadajuće garažno mesto (može se zakupiti po ceni 100€ mesečno)
- Niski mesečni računi + kontrola utroška energije
Dobrodošli u svoj novi, elegantni životni prostor!
*Sačuvaj oglas uz belešku i primaj obaveštenja o njihovom pojeftinjenju ili pojavljivanju sličnih
Prikaz stana na mapi
Parkovi u blizini
- Park Slavujev potok6 min
- Zvezdarska šuma12 min
- Park Urbani džep20 min

Obeležja kulture u blizini
- Spomenik Ćirilu i Metodiju10 min
- Pašina česma10 min
- Trećepozivačka česma3 min

Škole/Fakulteti/Vrtići u blizini
- Osnovna škola (Osnovna škola Veljko Dugošević)7 min
- Srednja škola (Geodetska tehnička škola)9 min
- Vrtić (Dečiji vrtić Zvezdara)5 min
- Fakultet (Visoka građevinsko-geodetska škola Beograd)7 min

- Bolnica (Kliničko bolnički centar Zvezdara)6 min
- Klinika (Poliklinika i laboratorija LaboMedica)5 min
- Teretana (Teretana Braća Ribać)10 min
- Prodavnica (Aman market)4 min
- Restoran (Restoran Zvezdara Teatar)7 min
- Kafana (Pivnica Paulaner)9 min
- Taksi stajalište (Taxi stanica)11 min
- Autobuska stanica (OŠ Veljko Dugošević)5 min
- Tramvajska stanica (Pijaca Zvezdara)12 min
- Trolejbuska stanica (Miloša Jankovića)3 min
- Banka (OTP banka)9 min
- Pošta (Pošta Beograd 57)9 min
Kontakt oglašivača
Keš krediti
Period otplate
13 meseci