Dvoiposoban stan za izdavanje, Telep, 400€, 55m²






















- Stan u zgradi
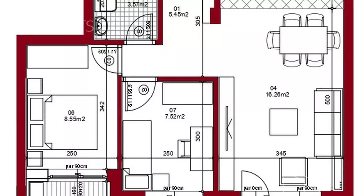
- Kvadratura: 55m²
- 2. sprat
- Uobičajeno stanje
- Prostorije: terasa
- Oglas oglašava agencija pod reg. brojem 802
- 1 lift
Opis oglasa
Agencijska oznaka nekretnine je 9100621. Novi Sad, Telep. Ulica Ćirila i Metodija kod restorana Romanov. Novogradnja, neuseljavan. II sprat, lift, etažno grejanje. Dvoiposoban stan – od 15.12.2025. stan se izdaje opremljen kompletnom kuhinjom, elementi+aparati, klimom i veš mašinom. Ako nešto od navedenog nije potrebno – biće izneto. Mogućnost iznajmljivanja parking ili garažnog mesta u okviru zgrade. ključ nekretnine se nalazi u agenciji. Kontakt osoba Saša 062... (prikaži broj telefona) . Kalidas 021, Novi Sad Reg. br. posrednika: 802, web-sajt: http://www.kalidas-nekretnine.com
*Sačuvaj oglas uz belešku i primaj obaveštenja o njihovom pojeftinjenju ili pojavljivanju sličnih
Prikaz stana na mapi
Parkovi u blizini
- Park Bistrica28 min
- Futoški park33 min
- Limanski park36 min

Obeležja kulture u blizini
- Jodna Banja12 min
- Dvorac Eđšeg13 min
- Kuća iz 1797. godine18 min

Škole/Fakulteti/Vrtići u blizini
- Osnovna škola (Osnovna škola Jožef Atila)11 min
- Srednja škola (Gimnazija Laza Kostić)5 min
- Vrtić (Dečiji vrtić Zemlja čuda)6 min
- Fakultet (Protestantski teološki fakultet)7 min

- Bolnica (Ginekološka bolnica Ferona)2 min
- Klinika (Poliklinika Consilium)12 min
- Teretana (EMS Studio Maxifit)5 min
- Prodavnica (Supermarket Univerexport)6 min
- Restoran (Caffe restoran Rosetto)7 min
- Kafana (Atos pub)5 min
- Taksi stajalište (Taxi prevoz Novi Sad)20 min
- Autobuska stanica (Feješ Klare - Pravoslavna crkva)3 min
- Banka (Erste Bank Ekspres ekspozitura)6 min
- Pošta (Pošta Novi Sad 21124)7 min
Kontakt oglašivača
Krediti OTP banke
Period otplate
13 mesecimesečno
Period otplate 13 - 71 mesec
Saznaj više

