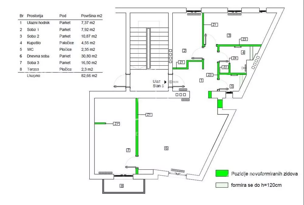
Četvorosoban stan za izdavanje, Vase Pelagića, 1.200€, 83m²





































- Kvadratura: 83m²
- Na 2. spratu od ukupno 3 sprata
- Novo
- Prostorije: kupatila (2), terasa
- Opremljenost: Namešteno - internet, interfon, klima
- Oglas oglašava agencija pod reg. brojem 339
- 1 telefonska linija
Opis oglasa
Kompletno renoviran stan u centralnoj, urbanoj zoni Senjaka, sa tri spavaće sobe i dva mokra čvora, kupatilom i toaletom. Stan se sastoji o ulaznog hodnika sa velikim ugradnim plakarom, dnevno trpezarisjkog dela otvorenog koncepta, kuhinje, kupatila i toaleta kao i tri spavaće sobe. Master soba sa velikim garderoberom, kao i dve odvojene spavaće sobe koje će biti opremljene po želji zakupca. Stan, iako u urabanoj zoni, odiše mirom i tišinom, 8 min. peške od obale Save, 15 min od BW Galerije komercijalnog centra. Blizina Nemačke i Francuske internacionalne škole. Parking je plava zona, u popodnevnim satima puno slobodnih mesta. Kućni ljubimci nisu dozvoljeni. Completely renovated apartment in the central, urban area of Senjak, with three bedrooms, bathroom and toilet. The apartment consists of an entrance hall with a large built-in closet, an open-concept dining area, kitchen, bathroom and toilet. Master room with a large wardrobe, as well as two separate bedrooms that will be furnished according to the wishes of the tenant. The apartment, although in a busy area, results peace and quiet, 8 minutes walk from the bank of Sava river, 15 minutes from commercial center Gallery BW. Close to German and French international schools. The parking lot is a blue zone, in the afternoon there are a lot of free places. No pet friendly. Agencijska provizija 50% vrednosti jedne mesečne zakupnine Agent: Maja Vodovar, br. licence:3684 “Art nekretnine“ d.o.o. Beograd Reg. br.339 011... (prikaži broj telefona) MV04 .
*Sačuvaj oglas uz belešku i primaj obaveštenja o njihovom pojeftinjenju ili pojavljivanju sličnih
Prikaz stana na mapi
Parkovi u blizini
- Hajd park11 min
- Park Lepi izgled15 min
- Topčiderski park18 min

Obeležja kulture u blizini
- Spomenik Vojvodi Radomiru Putniku5 min
- Miloševa česma6 min
- Skulptura Žetelica7 min

Škole/Fakulteti/Vrtići u blizini
- Osnovna škola (Osnovna škola Stefan Nemanja)2 min
- Srednja škola (Vojna gimnazija)8 min
- Vrtić (Dečiji vrtić Pčelica)6 min
- Fakultet (Fakultet za inženjerski menadžment)5 min

- Bolnica (Poliklinika Anlave)10 min
- Klinika (Poliklinika Alexander Clinic)3 min
- Teretana (Mia Fit Gym)7 min
- Prodavnica (Monolog market)5 min
- Restoran (Restoran Chin Chin Quan Ju De)2 min
- Kafana (Princip Pub)9 min
- Taksi stajalište (Alfa Bell Taxi)5 min
- Autobuska stanica (Vojislava Vučkovića)1 min
- Tramvajska stanica (Savski Trg)30 min
- Trolejbuska stanica (Ortopedski Zavod)9 min
- Banka (Banca Intesa)6 min
- Pošta (Pošta Beograd 13)6 min
Kontakt oglašivača
Keš krediti
Period otplate
13 meseci




















