Garsonjera za izdavanje, Novi Sad - Centar, 300€, 25m²












- Stan u zgradi
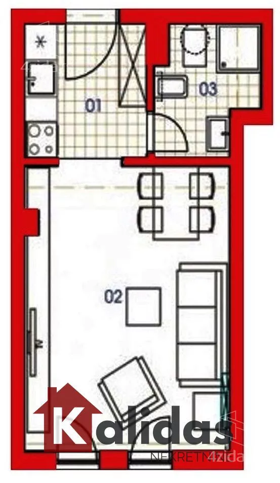
- Kvadratura: 25m²
- 5. sprat
- Uobičajeno stanje
- Oglas oglašava agencija pod reg. brojem 802
- 1 lift
Opis oglasa
Izdaje se kompletno opremljena garsonjera na jednoj od najtraženijih lokacija u Novom Sadu – potez Riblja pijaca, ulica Kosovska (ugao sa Đorđa Rajkovića), u neposrednoj blizini Dunava i samog centra grada.
Stan se nalazi na V spratu (nije poslednji), u kvalitetnoj, energetski efikasnoj zgradi sa liftom. Orijentisan je ka sunčanoj strani, što mu daje izuzetnu svetlost i prijatan ambijent, uz lep otvoren pogled.
Enterijer je moderno i pažljivo uređen, bez izgubljenog prostora. Korišćeni su materijali visokog kvaliteta: italijanska granitna keramika prve klase, hrastov parket, kao i vrhunska spoljna stolarija nemačkog proizvođača. Grejanje je rešeno aluminijumskim radijatorima sa termostatima, što omogućava individualnu kontrolu temperature i dodatnu energetsku efikasnost.
Stan je noviji, kompletno namešten i opremljen – kuhinja sa svim uređajima, komforan dnevni prostor, TV, klima uređaj, kao i dovoljno prostora za odlaganje. Kupatilo je moderno, sa tuš kabinom i veš mašinom. Pametna organizacija prostora obuhvata dnevni boravak sa kuhinjom i izlaz na francuski balkon koji dodatno doprinosi osećaju svetlosti i otvorenosti prostora.
Agencijska oznaka: 9100677
Useljiv od: 01.05.2026.
Kontakt: Saša Kragulj –
062... (prikaži broj telefona)
Kalidas 021 – Nekretnine Novi Sad
Reg. br. posrednika: 802
http://www.kalidas-nekretnine.com
*Sačuvaj oglas uz belešku i primaj obaveštenja o njihovom pojeftinjenju ili pojavljivanju sličnih
Prikaz stana na mapi
Parkovi u blizini
- Dunavski park10 min
- Park srpsko-azerbejdžanskog prijateljstva18 min
- Limanski park20 min

Obeležja kulture u blizini
- Spomenik Svetozaru Miletiću5 min
- Matičarsko zdanje7 min
- Galerija Matice srpske2 min

Škole/Fakulteti/Vrtići u blizini
- Osnovna škola (Privatna osnovna škola Tvrđava)6 min
- Srednja škola (Gimnazija Isidora Sekulić)5 min
- Vrtić (Dečiji vrtić Vila)3 min
- Fakultet (Univerzitet u Novom Sadu Fakultet sporta i fizičkog vaspitanja)5 min

- Bolnica (Hirurška ordinacija Aesculap)4 min
- Klinika (Poliklinika Nada Diva)4 min
- Teretana (Fitness centar World Class Bazaar)4 min
- Prodavnica (Supermarket Univerexport)4 min
- Restoran (Macchiato Kuća eat & dream)4 min
- Kafana (Invicta Pub)3 min
- Taksi stajalište (Zeleni Eko Taxi)16 min
- Autobuska stanica (Žarka Zrenjanina - Opština)4 min
- Banka (Narodna banka Srbije)3 min
- Pošta (Pošta Novi Sad 21108)7 min
Kontakt oglašivača
Krediti OTP banke
Period otplate
13 mesecimesečno
Period otplate 13 - 71 mesec
Saznaj više

