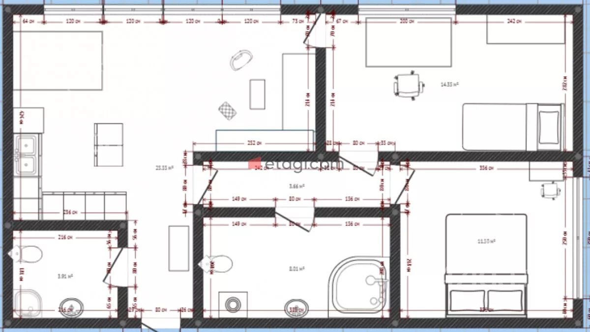
Trosoban stan za izdavanje, Medijana, 900€, 72m²






















































- Stan u zgradi
- Kvadratura: 72m²
- Na 3. spratu od ukupno 6 spratova
- Novo
- Prostorije: kuhinja, terasa
- Opremljenost: Namešteno - internet, interfon, TV, klima, veš mašina, sudo mašina, frižider, rerna, ležaj, plakar, kanalizacija
- Oglas oglašava agencija pod reg. brojem 2068
- 1 garažno mesto
- 1 lift
- Kanalizacija
- Zgrada poseduje: podrum
- Kablovska
Opis oglasa
Izdaje se visokostandardni stambeni prostor, pažljivo osmišljen i kompletno opremljen za zakupce koji očekuju više od proseka. Stan je projektovan kao celina, sa jasno razdvojenim zonama za boravak i odmor.
Centralni deo čini velika dnevna soba povezana sa trpezarijom i kuhinjom organizovana u otvorenom koneptu koji pruža osečaj prostranosti i prirodan tok kretanja. Jedan zid je u potpunosti izveden u staklu, što prostoru obezbeđuje obilje prirodne svetlosti tokom celog dana, kao i otvoren pogled koji dodatno naglašava osećaj širine i privatnosti. Uprkos tome, stan je izuzetno tih i izolovan od gradske buke pružajući mir kakav se retko nalazi u urbanom okruženju.
Iz dnevne sobe se ulazi u degažman koji vodi ka noćnom delu stana, obezbeđujući dodatni nivo privatnosti. Stan raspolaže sa dva kupatila, što omogućava komfor i funkcionalnost, kao i balkon sa lepim pogledom.
Noćni deo čine dve spavaće sobe od kojih glavna spavaća soba ima jedan zid u potpunosti izveden u staklu, čime se obezbeđuje obilje orirodne svetlosti tokom celog dana uz zadržan mir i privatnost.
Enterijer je u potpunosti namešten, sa kvalitetnim komadima nameštaja i tehnikom biranim tako da prostor ostane miran, pregledan i praktičan za svakodnevnu upotrebu. Sve prostorije imaju jasnu namenu i dobru povezanost, bez suvišnih prolaza i gubitka kvadrature.
Stan je prilagođen savremenom načinu života , nudi visok nivo privatnosti i komfora, bez potrebe za dodatnim prilagođavanjem.
U cenu zakupnine je zaračunato garažno mesto u podzemnoj garaži do koje vodi lift.
Više informacija o ovoj ponudi možete dobiti pozivom na broj
061... (prikaži broj telefona)
i
018... (prikaži broj telefona)
.
Agencija ETAGI NEKRETNINE DOO je upisana u registar posrednika pod rednim brojem 2068.
Agencija naplaćuje 50% ukupne zakupnine.
*Sačuvaj oglas uz belešku i primaj obaveštenja o njihovom pojeftinjenju ili pojavljivanju sličnih
Prikaz stana na mapi
Parkovi u blizini
- Park Svetog Save4 min
- Park složnih komšija7 min
- Park Čair19 min

Obeležja kulture u blizini
- Ranohrišćanska grobnica7 min
- Ranohrišćanska bazilika7 min
- Spomenik oslobodiocima Niša8 min

Škole/Fakulteti/Vrtići u blizini
- Osnovna škola (Osnovna škola Sveti Sava)5 min
- Srednja škola (Gimnazija Bora Stanković)7 min
- Vrtić (Dečiji vrtić Cvrčak)5 min
- Fakultet (Fakultet za pravne i poslovne studije Dr Lazar Vrkatić)5 min

- Bolnica (Urgentni centar Niš)9 min
- Klinika (Poliklinika Kardio Medika)5 min
- Teretana (Gym Town 2)6 min
- Prodavnica (Super DIS Market)4 min
- Restoran (Etno restoran Čardak)7 min
- Kafana (Kafana Stari ambar)18 min
- Taksi stajalište (Duga taksi)5 min
- Autobuska stanica (Krive Livade)manje od 1 min
- Banka (AIK Banka)3 min
- Pošta (Pošta Niš 13)4 min
Kontakt oglašivača
Krediti OTP banke
Period otplate
13 mesecimesečno
Period otplate 13 - 71 mesec
Saznaj više





















