Trosoban stan za izdavanje, Gundulićev Venac, 900€, 89m²








































- Kvadratura: 89m²
- Na 4. spratu od ukupno 6 spratova
- Uobičajeno stanje
- Prostorije: terasa
- Opremljenost: Namešteno - internet, klima
- Oglas oglašava agencija pod reg. brojem 1834
- 1 garažno mesto
- 1 lift
- Kablovska
- 1 telefonska linija
Opis oglasa
Stan se nalazi u mirnom kraju u neposrednoj blizini Botaničke bašte, udaljen 1Km od Trga Republike.
Dobro je povezan linijama javnog prevoza sa centrom i periferijom. Kompletno renoviran stan u praktično novoj zgradi, useljenoj 2017. godine.
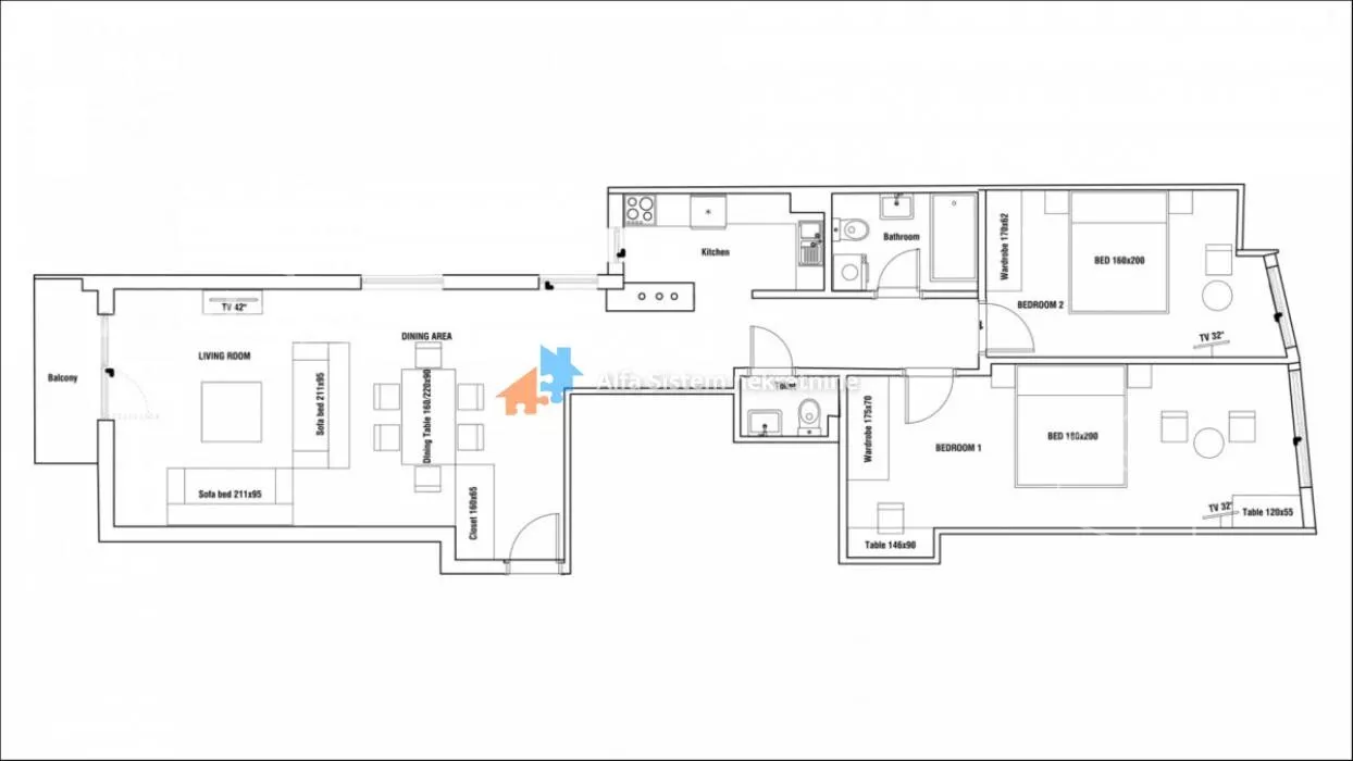
Dnevna soba, trpezarija, kuhinja, kupatilo, dodatni toalet, dve spavaće sobe, terasa. U svim sobama postoji klima uređaj.
Grejanje je daljinsko, iznos računa prema merenju kalorimetra. Topla voda u kupatilu neograničena, dobija se preko protočnog bojlera.
Izdaje se kompletno namešten, kao na slikama. Izuzev troseda u dnevnoj sobi koji će biti nabavljeni u dogovoru sa zakupcem.
Postoji mogućnost zakupa parking mesta u garaži u podrumu iste zgrade. Zakup parking mesta nije uključen u cenu.
Za više informacija ili zakazivanje razgledanja, kontaktirajte nas.
Agencijska provizija iznosi 50% od prve zakupnine.
ID oglasa: 41693
*Sačuvaj oglas uz belešku i primaj obaveštenja o njihovom pojeftinjenju ili pojavljivanju sličnih
Prikaz stana na mapi
Kontakt oglašivača
Krediti OTP banke
Period otplate
13 mesecimesečno
Period otplate 13 - 71 mesec
Saznaj više

