Dvosoban stan za izdavanje, Bulevar Evrope, 450€, 41m²
































- Stan u zgradi
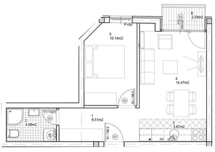
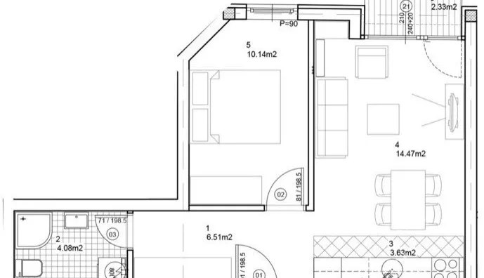
- Kvadratura: 41m²
- 1. sprat
- Uobičajeno stanje
- Prostorije: terasa
- Oglas oglašava agencija pod reg. brojem 1497
- 1 lift
Opis oglasa
Novi Sad, NOV, stan na Bulevaru Evrope (Nova Detelinara).
Stan je slobodan i useljiv od 01.12.!!!
Nalazi se na prvoj stambenoj etaži iznad galerije lokala.
Sastoji se od hodnika sa mestom za plakar, dnevnog boravka sa radnim delom kuhinje, spavaće sobe, kupatila i terase.
Može za stanovanje, kao i za poslovni prostor.
Stan se izdaje prazan, opremljen samo kuhinjskim delom (elementi sa tehnikom).
Odlična gradnja i dobra oprema.Topla protočna voda, gradsko grejanje sa kalorimetrima, klima, roletne sa elektro podizačima.
Depozit obavezan.
Zakupac plaća agencijsku proviziju.
Kontakt
063... (prikaži broj telefona)
*Sačuvaj oglas uz belešku i primaj obaveštenja o njihovom pojeftinjenju ili pojavljivanju sličnih
Prikaz stana na mapi
Parkovi u blizini
- Park Bistrica10 min
- Železnički park25 min
- Futoški park30 min

Obeležja kulture u blizini
- Jodna Banja13 min
- Dvorac Eđšeg16 min
- Spomen ploča Albertu Ajnštajnu i Milevi Marić16 min

Škole/Fakulteti/Vrtići u blizini
- Osnovna škola (Osnovna škola Prva vojvođanska brigada)8 min
- Srednja škola (Sportska gimnazija E-Gimnazija)7 min
- Vrtić (Dečiji vrtić i centar Žil Vern)4 min
- Fakultet (Protestantski teološki fakultet)9 min

- Bolnica (Specijalna bolnica za hemodijalizu Fresenius Medical Care FMC)8 min
- Klinika (Poliklinika Consilium)8 min
- Teretana (Body building i fitness klub Ahilej)2 min
- Prodavnica (Supermarket Univerexport)1 min
- Restoran (Park Novi Restaurants)2 min
- Kafana (Nova pivnica Novi Sad)2 min
- Taksi stajalište (Crveni Taxi)24 min
- Autobuska stanica (Autobusko stajalište)4 min
- Banka (Poštanska štedionica)7 min
- Pošta (Pošta Novi Sad 21137)4 min
Kontakt oglašivača
Keš krediti
Period otplate
13 meseci

