Dvoiposoban stan za izdavanje, Đorđa Andrejevića Kuna, 550€, 60m²


























- Kvadratura: 60m²
- Visoko prizemlje od ukupno 4 sprata
- Renovirano
- Prostorije: kupatilo
- Opremljenost: Namešteno - interfon, klima
- Oglas oglašava agencija pod reg. brojem 339
- 1 telefonska linija
Opis oglasa
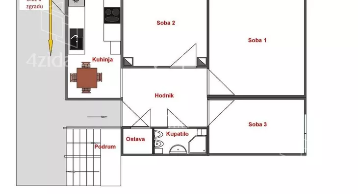
Namešten, 2.5, eg, vpr/4, ostava.
Kompletno namešten stan u blizini TC Stadion u dobro održavanoj zgradi, koja se nalazi u mirnom i zelenilom okruženom delu naselja sa odličnom infrastrukturom.
U neposrednoj blizini su škola, vrtić, marketi, pijaca i linije gradskog prevoza.
Stan je svetao i prostran, idealan za porodice koje traže udoban dom.
Prostorije: hodnik, dnevni boravak, kuhinja sa trpezarijom, dve spavaće sobe, kupatilo, ostava. Brzo useljiv.
Agencijska provizija 50% vrednosti jedne mesečne rente
Agent: Dragana Stoiljković br. licence 919
“Art nekretnine“ d.o.o. Beograd.Reg. br. 339.
011... (prikaži broj telefona)
.
*Sačuvaj oglas uz belešku i primaj obaveštenja o njihovom pojeftinjenju ili pojavljivanju sličnih
Prikaz stana na mapi
Parkovi u blizini
- Park Jove Ilića19 min
- Banjička šuma23 min
- Bajronov park29 min

Obeležja kulture u blizini
- Spomenik Franše Depereu12 min
- Kuća Flašar13 min
- Spomenik oslobodilaca Beograda 1806. godine13 min

Škole/Fakulteti/Vrtići u blizini
- Osnovna škola (Osnovna škola Đura Daničić)4 min
- Srednja škola (Srednja škola Vasa Stajić)9 min
- Vrtić (Dečiji vrtić Zvončica)3 min
- Fakultet (Univerzitet u Beogradu Saobraćajni fakultet)7 min

- Bolnica (Opšta bolnica St Medica)6 min
- Klinika (Poliklinika Voždmedik)7 min
- Teretana (Maximum Effect Fitness & Gym)8 min
- Prodavnica (TSV Diskont)4 min
- Restoran (Druga mama - domaća kuvana jela)2 min
- Kafana (Pinta Pub)6 min
- Taksi stajalište (Taxi stanica)6 min
- Autobuska stanica (Centralno Groblje)6 min
- Tramvajska stanica (Visoka Škola elektrotehnike)17 min
- Trolejbuska stanica (Svetozara Radojčića)18 min
- Banka (Addiko Bank)8 min
- Pošta (Pošta Beograd 24)5 min
Kontakt oglašivača
Krediti OTP banke
Period otplate
13 mesecimesečno
Period otplate 13 - 71 mesec
Saznaj više





















