Dvosoban stan za izdavanje, Petra Martinovića 4, 670€, 43m²














































670 €
mesečno
- Useljiv od 1. 4. 2026.
- Pogodno za: Porodice, Studente
- Dozvoljeno pušenje
- Nisu dozvoljeni kućni ljubimci
- Režije: od 14000 RSD do 20000 RSD
- Stan u zgradi
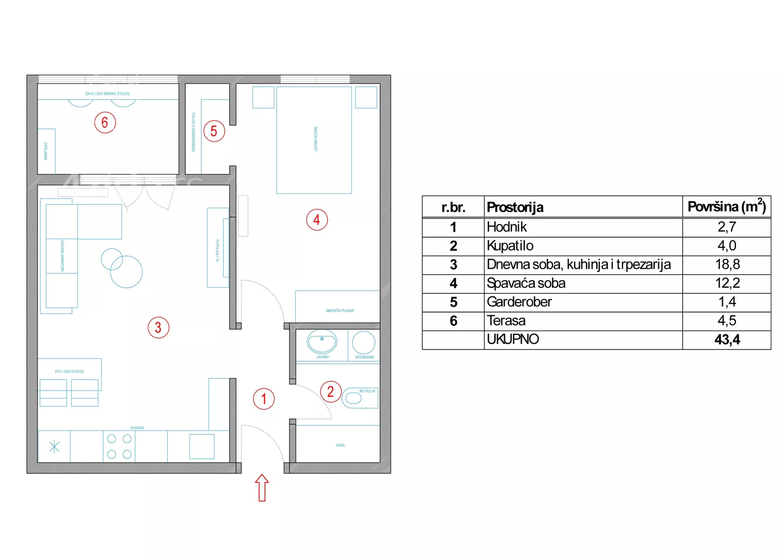
- Kvadratura: 43m²
- Na 3. spratu od ukupno 4 sprata
- Renovirano
- Prostorije: kupatilo
- Opremljenost: Namešteno - internet, TV, klima, veš mašina, kuhinjski elementi, sudo mašina, frižider, zamrzivač, šporet, rerna, ležaj, plakar, ugradni plakar
- Orijentacija ka: jug
- Pogled na: ulicu
- Izdavanje direktno od vlasnika
- 1 parking mesto, javni parking van zone
- Godina izgradnje: 1980.
- Zgrada poseduje: lođa
- Tip interneta: kablovska
- Kablovska
- Autobuske linije: 57
Opis oglasa
Izdaje se potpuno renoviran i moderno opremljen dvosoban stan površine 43 m², u jednom od najlepših i najmirnijih delova Beograda – Golf naselju u Košutnjaku, u ulici Petra Martinovića 4, na Banovom brdu.
Stan je nedavno kompletno renoviran i opremljen novim, modernim nameštajem i uređajima, što ga čini izuzetno prijatnim za život. Funkcionalan raspored i kvalitetna oprema omogućavaju maksimalan komfor na manjoj kvadraturi.
Lokacija je jedna od najvećih prednosti ovog stana. Nalazi se na samom rubu Košutnjaka i u neposrednoj blizini Ade Ciganlije, okružen zelenilom, stazama za šetnju i rekreaciju, a istovremeno odlično povezan sa svim delovima grada. Požeška ulica, kao glavna saobraćajna arterija Banovog brda, nalazi se na svega nekoliko minuta, sa velikim brojem linija gradskog prevoza.
U neposrednoj blizini se nalaze:
- Šumarski fakultet
- DIF
- Ski staza - Aleksandar klub
- Trim staza Košutnjak
- Ada Mall
- Dom zdravlja Simo Milošević
- škola Ruđer Bošković
- vrtići i osnovne škole (Banović Strahinja)
- prodavnice, marketi, kafići i svi sadržaji potrebni za svakodnevni život.
Stan je posebno pogodan i za ljude koji rade na Novom Beogradu, jer je preko Mosta na Adi odlično povezan sa poslovnim zonama na NBG.
Parking je uvek dostupan ispred zgrade, što je velika prednost u ovom delu grada.
Stan se izdaje na duži period i dostupan je od 1. aprila.
*Sačuvaj oglas uz belešku i primaj obaveštenja o njihovom pojeftinjenju ili pojavljivanju sličnih
Prikaz stana na mapi
Parkovi u blizini
- Park Banovo Brdo6 min
- Dečje igralište23 min
- Topčiderski park24 min

Obeležja kulture u blizini
- Hajdučka česma9 min
- Skulptura Žetelica10 min
- Spomenik srpskim ratnicima3 min

Škole/Fakulteti/Vrtići u blizini
- Osnovna škola (Osnovna škola Banović Strahinja)6 min
- Srednja škola (Gimnazija Ruđer Bošković)4 min
- Vrtić (Dečiji vrtić Pametnica Vila Košutica)4 min
- Fakultet (Visoka hotelijerska škola strukovnih studija)10 min

- Bolnica (Bolnica za plastičnu i rekonstruktivnu hirurgiju Mens Sana)1 min
- Klinika (Bel Medic Poliklinika)11 min
- Teretana (Fitness klub LifeSport)6 min
- Prodavnica (Aman market)3 min
- Restoran (Restoran Kamp Košutnjak)4 min
- Kafana (Pivnica Friends)10 min
- Taksi stajalište (Plavi taxi)9 min
- Autobuska stanica (Naselje Golf)3 min
- Tramvajska stanica (Dom Zdravlja)9 min
- Trolejbuska stanica (Bolnica Dragiša Mišović)41 min
- Banka (UniCredit Bank)8 min
- Pošta (Pošta Beograd 103)7 min
Kontakt oglašivača

Krediti OTP banke
Period otplate
13 mesecimesečno
Period otplate 13 - 71 mesec
Saznaj više
