Poslovni prostor za izdavanje, Brankova, 1.600€, 120m²














































1.600 €
mesečno
- Na 2. spratu od ukupno 3 sprata
- Luksuzno
- Prostorije: toaleti (2), kuhinja, terasa
- Opremljenost: Namešteno - internet
- Pogled na: ulicu, dvorište
- Izdavanje direktno od vlasnika
- Objekat poseduje: lođa
- Tip interneta: optički
- Kablovska
- 1 telefonska linija
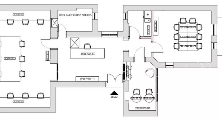
Opis oglasa
Izdajem ekskluzivan poslovni prostor od 120m², kompletno adaptiran i dizajniran s fokusom na potrebe IT firmi, kreativnih agencija, startapa, dizajn studio, i srodnih delatnosti. Nalazi se na jednoj od najtraženijih lokacija u Beogradu – Brankovoj ulici, u samom srcu grada.
Prostor je spreman za momentalno useljenje, bez potrebe za dodatnim ulaganjima.
OPREMLJENOST PROSTORA:
✅ Kapacitet: 14 kompletno opremljenih radnih mesta
✅ Recepcija i ulaz: kontrola pristupa, interfon, inverter WiFi klima uređaj
✅ Pametna infrastruktura: utičnice i mrežni priključci kod svakog radnog mesta, gigabitni switch, optika + dual WiFi
✅ Radni prostor: LED rasveta iznad svakog radnog mesta, multifunkcionalni ormarići za zaposlene
✅ Konferencijska sala: kapacitet 10 ljudi, LCD TV, zid - tabla, inverter WiFi klima
✅ Lounge zona: prostor za odmor i ručavanje, nova garnitura za sedenje, barski stolovi (moguća dodatna radna mesta)
✅ Čajna kuhinja: ugradna sudo-mašina, indukciona ploča, Saeco espresso aparat
✅ Sanitarni čvor: moderno opremljen, dve odvojene kabine
✅ Terasa: natkriven prostor za pušače
TEHNIČKA OPREMLJENOST:
🚀 Optički internet 600/600 Mbps
📡 Rack orman sa gigabitnim switchom, patch panelom, 3 telefonske linije
🔐 Najsavremeniji sistem kontrole pristupa i video nadzor (5 kamera + NVR snimač)
LOKACIJA – NAJSTROŽI CENTAR BEOGRADA
📍 Brankova ulica, neposredna blizina APR-a, Zeleni venac i ključnih poslovnih zona
🚶 Peške do: Knez Mihailove, Zelenog venca, Kosančićevog venca i Karađorđeve ulice – sve unutar 3 min
🚌 Javni prevoz: autobuska stanica ispred objekta sa 26 linija gradskog prevoza
🅿 Parking: besplatan parking na novobeogradskoj strani (5 min šetnje preko mosta), u blizini 4 javne garaže
FOOD AREA – IDEALNO ZA PAUZE
🍽 Brojni restorani i kafići u blizini – savršeno za doručak, ručak i neformalne sastanke
🔹 Idealan za: IT firme, dizajn studio, kontakt centar, ordinacije i druge srodne delatnosti.
📞 Kontaktirajte me odmah i obezbedite svom timu radno okruženje koje spaja luksuz, funkcionalnost i vrhunsku lokaciju!
*Sačuvaj oglas uz belešku i primaj obaveštenja o njihovom pojeftinjenju ili pojavljivanju sličnih
Prikaz poslovnog prostora na mapi
Parkovi u blizini
- Park nesvrstanih zemalja5 min
- Terazijska terasa6 min
- Park Luke Ćelovića6 min

Obeležja kulture u blizini
- Stara Narodna biblioteka Srbije10 min
- Manakova kuća4 min
- Krst sa Male pijace8 min

Škole/Fakulteti/Vrtići u blizini
- Osnovna škola (Osnovna škola Isidora Sekulić)7 min
- Srednja škola (Tehnička škola za dizajn kože)4 min
- Vrtić (Dečiji vrtić Princeza Olivera)9 min
- Fakultet (Fakultet za diplomatiju i bezbednost)7 min

- Bolnica (Specijalna bolnica Sveti Sava)6 min
- Klinika (Poliklinika Tesla Medical group)5 min
- Teretana (Sportski klub Athletic Body Response)6 min
- Prodavnica (Grčki ukusi i mirisi - grčki proizvodi)3 min
- Restoran (Kineska hrana Yxlanzh)2 min
- Kafana (Bridge pub)2 min
- Taksi stajalište (Taxi stanica)6 min
- Autobuska stanica (Zeleni venac)2 min
- Tramvajska stanica (Ekonomski Fakultet)10 min
- Trolejbuska stanica (Terazije)7 min
- Banka (NLB Komercijalna banka)10 min
- Pošta (Pošta Beograd 44)6 min
Kontakt oglašivača
Krediti OTP banke
Period otplate
13 mesecimesečno
Period otplate 13 - 71 mesec
Saznaj više