Proizvodni pogon za izdavanje, Zemunska 15, 1.000€, 200m²
Beograd, Zemun opština, Ugrinovci
Prikaži mapuOglas ažuriran: pre 9 dana






1.000 €
mesečno
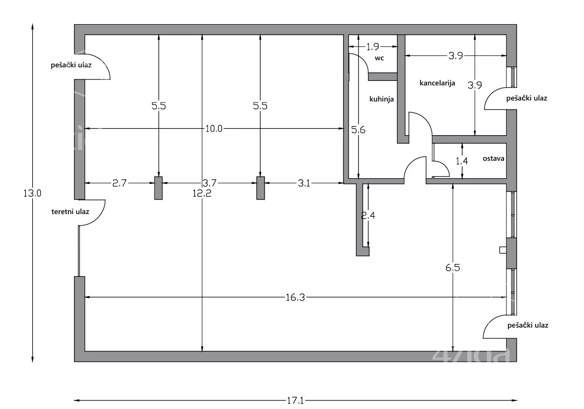
Proizvodni pogon
200 m²
Prazno
- Obavezan depozit 2.000 €
- Useljiv od 29. 10. 2025.
- Uobičajeno stanje
- Izdavanje direktno od vlasnika
- 2 parking mesta, parking u dvorištu zgrade
Opis oglasa
Magacinsko-proizvodni prostor.
Objekat ima dva strujna brojila.
Izadaje se od strane pravnog lica, naznačena cena je cena bez pdv-a
*Sačuvaj oglas uz belešku i primaj obaveštenja o njihovom pojeftinjenju ili pojavljivanju sličnih
Prikaz poslovnog prostora na mapi
Obeležja kulture u blizini
- Spomenik Nikoli Tesli17 min
- Spomenik palim borcima24 min
- Hangar Starog aerodroma na Novom Beogradu26 min

Škole/Fakulteti/Vrtići u blizini
- Osnovna škola (Osnovna škola Stanko Marić)5 min
- Srednja škola (Srednja politehnička škola Politehnika)22 min
- Vrtić (Dečiji vrtić Roda)4 min
- Fakultet (SMATSA školski centar)15 min

Zdravlje
- Bolnica (Klinika za lečenje bolesti zavisnosti MedTim)23 min
- Klinika (Poliklinika Holimed)13 min
- Teretana (Teretana B Gym)14 min
Hrana i piće
- Prodavnica (PerSu market)4 min
- Restoran (Restoran i dečija igraonica Moj kafe)5 min
Prevoz
- Autobuska stanica (Ugrinovci /Ulaz/)4 min
Ostale ustanove
- Banka (OTP banka)13 min
- Pošta (Pošta Ugrinovci)4 min
Kontakt oglašivača
ALEKSANDAR RAJNOVIC

▾Reklama▾
Keš krediti
RSDIznos kredita
Period otplate
13 meseci