Kancelarija za izdavanje, Ilije Garašanina 20, 1.700€, 135m²
Beograd, Palilula opština, Tašmajdan
Prikaži mapuOglas ažuriran: pre 1 dan


































1.700 €
mesečno
Kancelarija
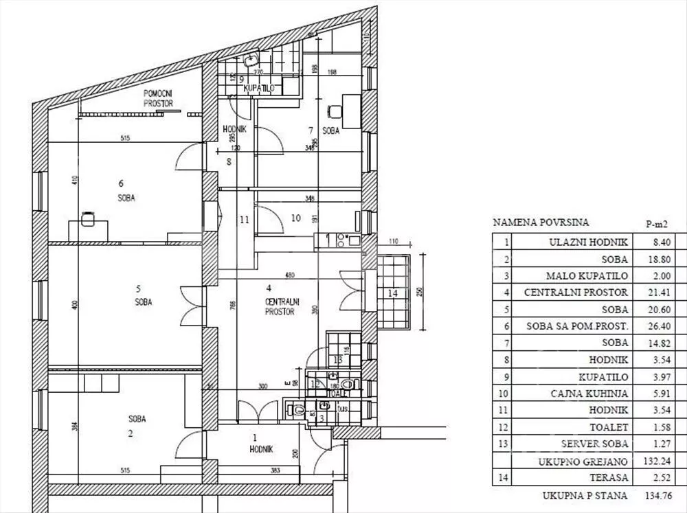
135 m²
Prazno
- Obavezan depozit 1.700 €
- Useljiv od 1. 1. 2026.
- Nije dozvoljeno pušenje
- Režije: od 9000 RSD do 11000 RSD
- Na 3. spratu od ukupno 5 spratova
- Renovirano
- Prostorije: kupatila (2), toaleti (2), kuhinja, ostava, terasa
- Opremljenost: Prazno - internet
- Orijentacija ka: jugoistok, severoistok
- Pogled na: dvorište, ulicu
- Izdavanje direktno od vlasnika
- Godina izgradnje: 1927.
- Tip interneta: optički
- Kablovska
- Autobuske linije: 23, 65, 77, 79
- Trolejbuske linije: 28, 40, 41
- Tramvajske linije: 2, 5, 6, 7, 10
Opis oglasa
Salonski stan kompletno renoviran 2019. Visina plafona 3m. Pet velikih prostorija. Idealno za poslovni prostor. Etažno grejanje na kotao na struju. Po svim sobama su u zidu priključci za internet i TV Zajedničke prostorije u zgradi redovno održavane i čiste.
*Sačuvaj oglas uz belešku i primaj obaveštenja o njihovom pojeftinjenju ili pojavljivanju sličnih
Prikaz poslovnog prostora na mapi
Parkovi u blizini
- Tašmajdan5 min
- Park Mali Tašmajdan7 min
- Pionirski park10 min

Obeležja kulture u blizini
- Spomenik Zašto3 min
- Spomenik Raši Popovu6 min
- Spomen kuća Uroša Predića7 min

Škole/Fakulteti/Vrtići u blizini
- Osnovna škola (Osnovna škola Vuk Karadžić)5 min
- Srednja škola (Peta beogradska gimnazija)2 min
- Vrtić (Dečiji vrtić Poletarac)5 min
- Fakultet (Univerzitet u Beogradu Rudarsko-geološki fakultet)5 min

Zdravlje
- Bolnica (Belloko centar za oftalmologiju i estetiku)4 min
- Klinika (Poliklinika Argirović)5 min
- Teretana (Teretana Srpski Spartanci)6 min
Hrana i piće
- Prodavnica (Palilulino - delicije malih manufaktura)manje od 1 min
- Restoran (Etno bistro Ćevaplija)2 min
- Kafana (Pab Dablin)5 min
Prevoz
- Taksi stajalište (Taxi stanica)3 min
- Autobuska stanica (Park „Tašmajdan“)6 min
- Tramvajska stanica (Palilulska Pijaca)5 min
- Trolejbuska stanica (27. Marta)5 min
Ostale ustanove
- Banka (Eurobank Direktna)4 min
- Pošta (Pošta Beograd 35)4 min
Kontakt oglašivača
Zdenko
▾Reklama▾
Keš krediti
RSDIznos kredita
Period otplate
13 meseci