Poslovna zgrada za izdavanje, Ribarski Put, 1.100€, 334m²


































1.100 €
- Uobičajeno stanje
- Prostorije: ostava
- Opremljenost: Polunamešteno - klima, kanalizacija
- Oglas oglašava agencija pod reg. brojem 22
- 1 garažno mesto
- 1 parking mesto
- Kanalizacija
Opis oglasa
- Objekat ima razvijenu delatnost -proizvodnja kablova .
- Nalazi se na gradskoj lokaciji ns početku industrijske zone izmedju firme Feman i restorana SV. Đorđe
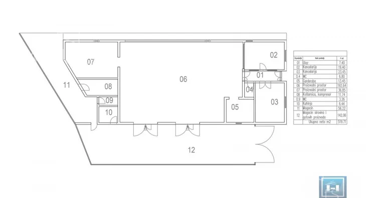
- Poslovni prostor u osnovi ima 334 m2, opremljen je za proizvodnju i poslovanje, i nadogradjenog dodatnog prostora , ukupna korisna povrina celog objekta je 519m2
- U poslovnom delu poseduje radionice za proizvodnju , kompresor od 500 litara,poseduje sopstvenu trafo stanicu, sopstvena struja za proizvodnju ,ventilaciju ,klimu , uređen mokri čvor, ,dosta kancelarijskog prostora,grejanje na gas ,dličan prilaz firmi asfaltnim putem.
- Struktura: prizemni objekat , ima magacinski prostor za robu i parkin prostor.
Poslovna zgrada se može i iznajmiti po ceni od 1100 eur, ili kupiti po ceni 250 eur m2
*Sačuvaj oglas uz belešku i primaj obaveštenja o njihovom pojeftinjenju ili pojavljivanju sličnih
Prikaz poslovnog prostora na mapi
Obeležja kulture u blizini
- Spomenik Jovanči Miciću9 min
- Spomenik Despotu Stefanu38 min
- Crkva Svete Bogorodice41 min

Škole/Fakulteti/Vrtići u blizini
- Osnovna škola (Osnovna škola Milan Mijalković)9 min
- Srednja škola (Prva tehnička škola Jagodina)9 min
- Vrtić (Dečiji vrtić Sunce)8 min
- Fakultet (Univerzitet u Kragujevcu Fakultet pedagoških nauka u Jagodini)11 min

- Bolnica (Sanitas Klinik)10 min
- Klinika (Poliklinika CT05)10 min
- Teretana (Cafe bar & gym Mr. Hill)31 min
- Prodavnica (Aman market)12 min
- Restoran (Restoran Lav)34 min
- Kafana (Irish pub Jagodina)34 min
- Taksi stajalište (Maxi Taxi)49 min
- Banka (Poštanska štedionica)9 min
- Pošta (Pošta Rakitovo)6 min
Kontakt oglašivača

Krediti OTP banke
Period otplate
13 mesecimesečno
Period otplate 13 - 71 mesec
Saznaj više















