Kancelarija za izdavanje, Ilije Garašanina, 1.700€, 135m²
Beograd, Palilula opština, Palilulska Pijaca
Prikaži mapuOglas ažuriran: pre 11 sati




































1.700 €
mesečno
Kancelarija
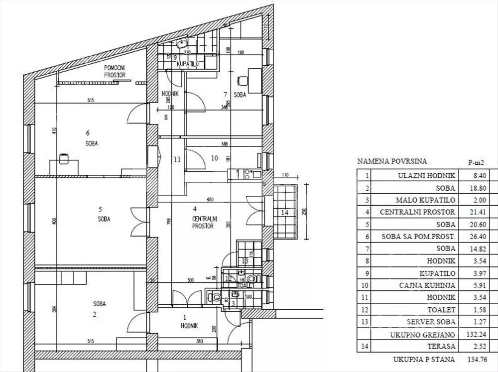
135 m²
Polunamešteno
- Obavezan depozit 1.700 €
- Režije: od 10000 RSD do 12000 RSD
- Na 3. spratu od ukupno 5 spratova
- Renovirano
- Prostorije: kupatila (2), toaleti (2), ostava, terasa
- Opremljenost: Polunamešteno - internet, klima, kuhinjski elementi, sudo mašina, frižider, šporet
- Orijentacija ka: severoistok, jugoistok
- Pogled na: ulicu, dvorište
- Izdavanje direktno od vlasnika
- Javni parking u zoni
- Godina izgradnje: 1927.
- Tip interneta: optički
- Kablovska
- Autobuske linije: 23, 65, 77, 79
- Trolejbuske linije: 28, 40, 41
- Tramvajske linije: 2, 5, 6, 7, 10
Opis oglasa
Salonski stan kompletno renoviran 2019. Visina plafona 3m. Pet velikih prostorija. Idealno za poslovni prostor. Etažno grejanje na kotao na struju- manje košta od daljinskog grejanja. Po svim sobama su u zidu priključci za internet i TV Zajedničke prostorije u zgradi redovno održavane i čiste.
*Sačuvaj oglas uz belešku i primaj obaveštenja o njihovom pojeftinjenju ili pojavljivanju sličnih
Prikaz poslovnog prostora na mapi
Parkovi u blizini
- Park Mali Tašmajdan2 min
- Park Mike Oklopa5 min
- Tašmajdan6 min

Obeležja kulture u blizini
- Spomenik Miloradu Paviću4 min
- Spomenik Raši Popovu5 min
- Spomenik Hejdaru Alijevu5 min

Škole/Fakulteti/Vrtići u blizini
- Osnovna škola (Osnovna škola Starina Novak)7 min
- Srednja škola (Peta beogradska gimnazija)5 min
- Vrtić (Dečiji vrtić Happy Kids)manje od 1 min
- Fakultet (Univerzitet u Beogradu Tehnološko-metalurški fakultet)4 min

Zdravlje
- Bolnica (Oftalmološka bolnica Revida)5 min
- Klinika (Poliklinika Prva poliklinika)4 min
- Teretana (City Fitness Club)2 min
Hrana i piće
- Prodavnica (Shop&Go)3 min
- Restoran (Restoran #Seoul)3 min
- Kafana (Pab Dablin)2 min
Prevoz
- Taksi stajalište (Taxi stanica)5 min
- Autobuska stanica (27. Marta)3 min
- Tramvajska stanica (Mašinski Fakultet)3 min
- Trolejbuska stanica (Zdravka Čelara)8 min
Ostale ustanove
- Banka (OTP banka)3 min
- Pošta (Pošta Beograd 35)2 min
Kontakt oglašivača
Zdenko
▾Reklama▾
Keš krediti
RSDIznos kredita
Period otplate
13 meseci