Poslovni prostor za izdavanje, Novo Naselje, 10.000€, 1050m²


















10.000 €
mesečno
- Opremljenost: Namešteno - internet, klima, kuhinjski elementi, frižider, kancelarijski nameštaj
- Oglas oglašava agencija pod reg. brojem 1708
- 30 parking mesta
- Godina izgradnje: 2010.
- Tip interneta: optički
- Kablovska
- 1 telefonska linija
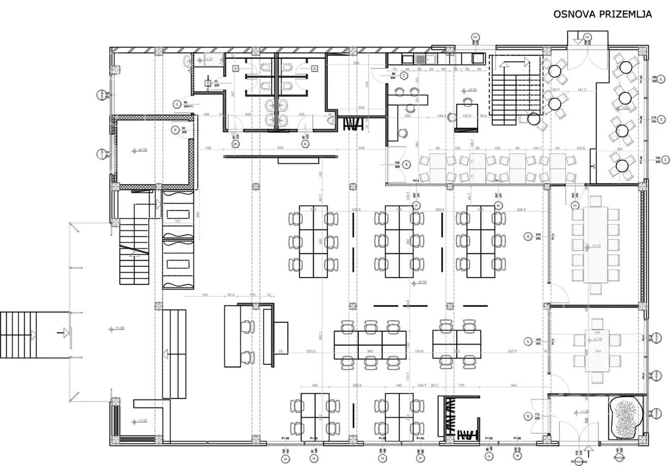
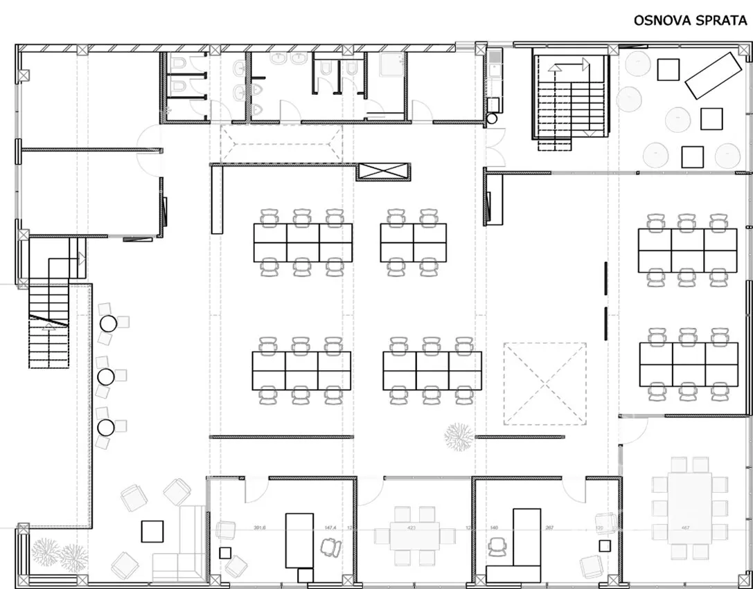
Opis oglasa
Izdaje se namenski projektovana EXECOM poslovna zgrada na Novom Naselju, idealna za IT i inženjerske kompanije koje traže funkcionalan, savremen i reprezentativan prostor.
Lokacija: tehnološka zona Novog Sada – 7 min do centra, 3 min do autoputa, u blizini restorana, banaka, prodavnica i gradskog prevoza.
Površina: 1.050 m² na dve etaže
Prostor: open-space zone + privatne kancelarije
Sadržaj:
4 sale za sastanke
3 kancelarije
multimedijalna bina, kolaboracioni prostori
kuhinja i kantina
gaming/relax soba
server soba, magacin i tehnički prostor
Infrastruktura i pogodnosti:
2 privatna parkinga + 30+ mesta
biciklarnica, dvorišna terasa, košarkaški teren
optički internet, industrijski Wi-Fi
centralna klimatizacija i ventilacija
LED rasveta, zvučno izolovani podovi
pametni bezbednosni sistem i video nadzor
100 kW elektroinstalacija
Zgrada je moderna, svetla, energetski efikasna i odmah spremna za useljenje.
Idealna za kompanije koje žele profesionalno, stabilno i motivišuće radno okruženje.
Za više informacija pozvati: 063... (prikaži broj telefona)
Potreban depozit u visini zakupnine
Agencijska provizija 50% od prve zakupnine jednokratno
*Sačuvaj oglas uz belešku i primaj obaveštenja o njihovom pojeftinjenju ili pojavljivanju sličnih
Prikaz poslovnog prostora na mapi
Parkovi u blizini
- Park Bistrica8 min
- Železnički park31 min
- Futoški park38 min

Obeležja kulture u blizini
- Jodna Banja13 min
- Spomen ploča Albertu Ajnštajnu i Milevi Marić15 min
- Dvorac Eđšeg15 min

Škole/Fakulteti/Vrtići u blizini
- Osnovna škola (Osnovna škola Prva vojvođanska brigada)6 min
- Srednja škola (Sportska gimnazija E-Gimnazija)4 min
- Vrtić (Dečiji vrtić i centar Žil Vern)8 min
- Fakultet (Protestantski teološki fakultet)7 min

- Bolnica (Specijalna bolnica za hemodijalizu Fresenius Medical Care FMC)6 min
- Klinika (Poliklinika Consilium)6 min
- Teretana (Body building i fitness klub Ahilej)9 min
- Prodavnica (IDEA Super)5 min
- Restoran (Restoran Quattro Stagione)9 min
- Kafana (Pivoteka 77)9 min
- Taksi stajalište (Crveni Taxi)33 min
- Autobuska stanica (Bul. S. Jovanovića - Bul. vojvode Stepe)3 min
- Banka (Poštanska štedionica)7 min
- Pošta (Pošta Novi Sad 21137)8 min
Kontakt oglašivača
Keš krediti
Period otplate
13 meseci