Poslovni prostor za izdavanje, Novi Sad - Centar, 7.900€, 407m²
Novi Sad, Gradske lokacije, Stari Grad, Novi Sad - Centar
Prikaži mapuŠifra oglasa: 4zida-9117060Oglas ažuriran: pre 23 sati


























7.900 €
Poslovni prostor
407 m²
- 3. sprat
- Uobičajeno stanje
- Prostorije: terasa
- Oglas oglašava agencija pod reg. brojem 269
- 1 lift
Opis oglasa
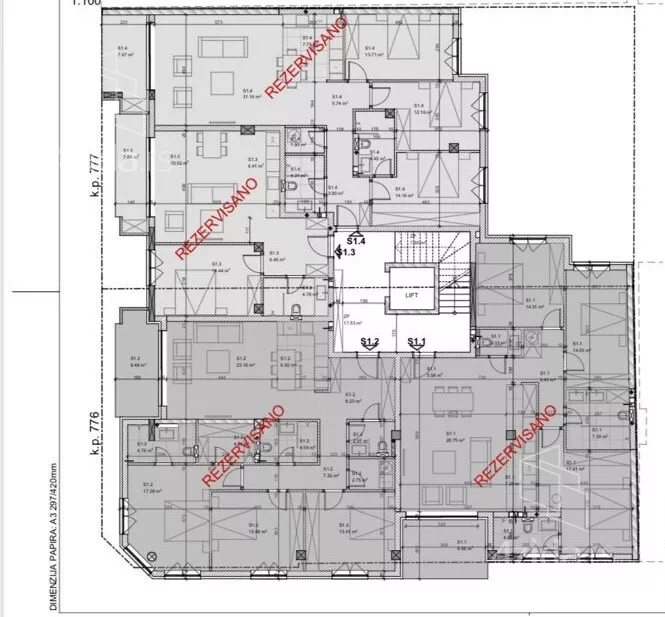
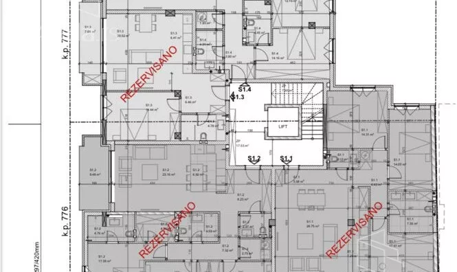
Poslovni prostor ukupne površine 407m², nalazi se na III spratu stambeno-poslovnog objekta. S obzirom da obuhvata celokupni prostor III sprata, trostrane je orijentacije. Izdaje se na duži vremenski period.
4 pripadajuća garažna mesta.
Depozit obavezan u iznosu jedne zakupnine. Posrednička naknada 100% od jedne zakupnine za pravna lica, jednokratno. Za više informacija pozovite
063... (prikaži broj telefona)
*Sačuvaj oglas uz belešku i primaj obaveštenja o njihovom pojeftinjenju ili pojavljivanju sličnih
Prikaz poslovnog prostora na mapi
Parkovi u blizini
- Dunavski park12 min
- Park srpsko-azerbejdžanskog prijateljstva19 min
- Limanski park21 min

Obeležja kulture u blizini
- Spomenik Svetozaru Miletiću5 min
- Matičarsko zdanje7 min
- Galerija Matice srpske2 min

Škole/Fakulteti/Vrtići u blizini
- Osnovna škola (Privatna osnovna škola Tvrđava)6 min
- Srednja škola (Gimnazija Isidora Sekulić)5 min
- Vrtić (Dečiji vrtić Vila)4 min
- Fakultet (Univerzitet u Novom Sadu Fakultet sporta i fizičkog vaspitanja)5 min

Zdravlje
- Bolnica (Hirurška ordinacija Aesculap)4 min
- Klinika (Poliklinika Nada Diva)4 min
- Teretana (Fitness centar World Class Bazaar)4 min
Hrana i piće
- Prodavnica (Mikromarket)4 min
- Restoran (Macchiato Kuća eat & dream)4 min
- Kafana (Pivnica Brauhaus)3 min
Prevoz
- Taksi stajalište (Zeleni Eko Taxi)18 min
- Autobuska stanica (Bul. Mihajla Pupina - Pothodnik)4 min
Ostale ustanove
- Banka (Narodna banka Srbije)3 min
- Pošta (Pošta Novi Sad 21108)8 min
Kontakt oglašivača
▾Reklama▾
Keš krediti
RSDIznos kredita
Period otplate
13 meseci
