Poslovni prostor za izdavanje, Smiljanićeva, 2.300€, 125m²




































2.300 €
mesečno
- Visoko prizemlje od ukupno 1 sprat
- Luksuzno
- Prostorije: kupatilo, toalet, ostava, terasa
- Opremljenost: Polunamešteno - kuhinjski elementi, sudo mašina, frižider, zamrzivač, šporet
- Pogled na: ulicu, dvorište
- Oglas oglašava agencija pod reg. brojem 1563
- 2 parking mesta
Opis oglasa
IZDAVANJE – LUKSUZNO RENOVIRAN POSLOVNI PROSTOR, VRAČAR
Jedinstvena prilika – veoma retko u ponudi!
Izdaje se salonski poslovni prostor na jednoj od najtraženijih lokacija na Vračaru. Prostor se nalazi u kvalitetnoj zgradi, sa visokim plafonima, kompletno luksuzno renoviran, idealan za tihu delatnost, advokatsku kancelariju, IT firmu, arhitektonski biro i slično.
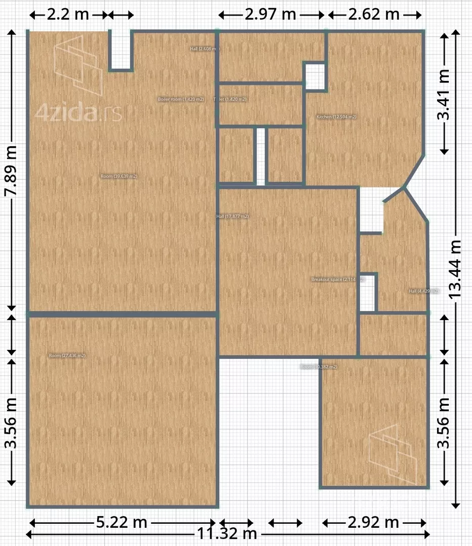
Struktura prostora:
Prostran ulazni deo iz kog se ulazi u sve prostorije
Dve velike međusobno povezane prostorije
Jedna manja prostorija
Moderna, potpuno opremljena kuhinja
Kupatilo, toalet i ostava (odvojeni u posebnom bloku)
Dodatne prednosti su dva ulaza.
Mogućnost zakupa magacinskog prostora ispod.
Mogućnost rentiranja dva parking mesta u ulici.
Prostor je izuzetno svetao, funkcionalan i odmah useljiv. U neposrednoj blizini se nalaze sve ključne gradske tačke – javni prevoz, restorani, banke, pošta...
Ne propustite priliku – ovakvi prostori su izuzetno retki na tržištu!
*Sačuvaj oglas uz belešku i primaj obaveštenja o njihovom pojeftinjenju ili pojavljivanju sličnih
Prikaz poslovnog prostora na mapi
Parkovi u blizini
- Park Mike Oklopa4 min
- Park vojvode Petra Bojovića6 min
- Park Mitićeva rupa8 min

Obeležja kulture u blizini
- Genčićeva kuća3 min
- Kuća pukovnika Elezovića6 min
- Spomenik Svetozaru Markoviću4 min

Škole/Fakulteti/Vrtići u blizini
- Osnovna škola (Osnovna škola Sveti Sava)5 min
- Srednja škola (Četrnaesta beogradska gimnazija)5 min
- Vrtić (Dečiji vrtić Nada Purić)1 min
- Fakultet (Centar Osteopatija)4 min

- Bolnica (Neurološka bolnica Affidea)8 min
- Klinika (Poliklinika Millenium Medic)6 min
- Teretana (Fitness centar Tonus Fit)manje od 1 min
- Prodavnica (Aman market)3 min
- Restoran (Restoran Berliner)1 min
- Kafana (Kafana Melem za dušu)4 min
- Taksi stajalište (Taxi stanica)5 min
- Autobuska stanica (Smiljanićeva)4 min
- Tramvajska stanica (Pravni fakultet)8 min
- Trolejbuska stanica (Trg Slavija)8 min
- Banka (Eurobank Direktna)5 min
- Pošta (Pošta Beograd 17)4 min
Kontakt oglašivača
Keš krediti
Period otplate
13 meseci
