Poslovni prostor za izdavanje, Niška 63, 500€, 108m²






















500 €
mesečno
- Nije dozvoljeno pušenje
- Suteren
- Potrebno renoviranje
- Prostorije: toaleti (2)
- Pogled na: ulicu
- Izdavanje direktno od vlasnika
- 5 parking mesta, javni parking van zone
Opis oglasa
Prostor se nalazi u sklopu prorodične kuće, neposredno uz veoma frekventnu saobraćajnicu, sa odličnom vidljivošću, prostorom za reklamu i direktnim pristupom za vozila. Nalazi se blago ispod nivoa ulice, sa odličnim prilazom kao i sa prostorom za parking ispred samog poslovnog prostora. Trenutno je u sivoj fazi, što znači da su završni radovi i uređenje prostora prepušteni zakupcu u skladu sa potrebama. Postoji mogućnost dogovora oko adaptacije a samim tim i kirije. Prostor je legalizovan kao poslovni prostor, što omogućava nesmetano poslovanje i jednostavno ugovaranje zakupa. Vlasnik objekta je fizičko lice.
Lokacija: Leskovac, Niška 63
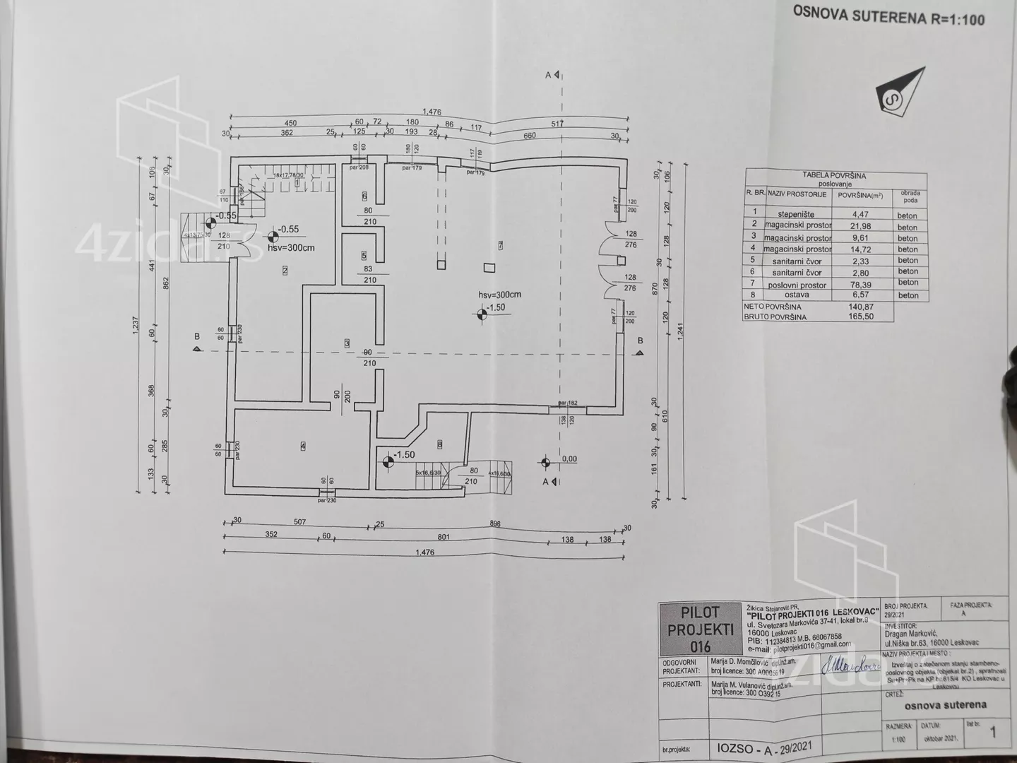
Površina: 107.85 m² neto (prostorije 3,4,5,6 i 7 prema crtezu), poseduje 2 mokra cvora
Pogodan za: apoteku, laboratoriju, ordinaciju, ostale usluzne delatnosti
Ulaz: Samostalan, direktan prilaz sa puta
Parking: Da (3-4 parking mesta ispred, preko puta dodatno)
Infrastruktura: Struja i voda su trenutno na zajedničkom brojilu - moguće je odvajanje instalacija
Status: Legalizovan kao poslovni prostor
Stanje: Siva faza – prostor spreman za prilagođavanje zakupčevim zahtevima
Napomena: Prostor se nalazi blago ispod nivoa ulice, što omogućava manju izloženost spoljnim uslovima i stabilnu temperaturu tokom cele godine.
*Sačuvaj oglas uz belešku i primaj obaveštenja o njihovom pojeftinjenju ili pojavljivanju sličnih
Prikaz poslovnog prostora na mapi
Parkovi u blizini
- Park Devet Jugovića24 min
- Gradski park Leskovac26 min
- Park Hisar38 min

Obeležja kulture u blizini
- Spomenik Tomi Zdravkoviću5 min
- Kuća Šop Đokića8 min
- Spomen kuća Koste Stamenkovića8 min

Škole/Fakulteti/Vrtići u blizini
- Osnovna škola (Osnovna škola Vasa Pelagić)18 min
- Srednja škola (Poljoprivredna škola Leskovac)15 min
- Vrtić (Dečiji vrtić Ciciban)4 min
- Fakultet (Visoka poslovna škola strukovnih studija Leskovac)6 min

- Bolnica (Opšta bolnica Leskovac)5 min
- Klinika (Poliklinika za laboratorijsku dijagnostiku Neolab)23 min
- Teretana (Fitness club XL)20 min
- Prodavnica (Zlatan Trag supermarket)1 min
- Restoran (Etno restoran Groš)12 min
- Kafana (Pab Harmony)24 min
- Taksi stajalište (Taxi stanica)23 min
- Autobuska stanica17 min
- Banka (Raiffeisen Bank)5 min
- Pošta (Pošta Leskovac 5)17 min
Kontakt oglašivača
Keš krediti
Period otplate
13 meseci- Period otplate od 13 -71 mesec
- NKS 10.55%
- EKS od 10.87%
- Za klijente banke
mesečno