Poslovni prostor za izdavanje, Šekspirova, 900€, 70m²
Beograd, Savski Venac, Dedinje
Prikaži mapuŠifra oglasa: 4zida-639Oglas ažuriran: pre 2 dana
























900 €
Poslovni prostor
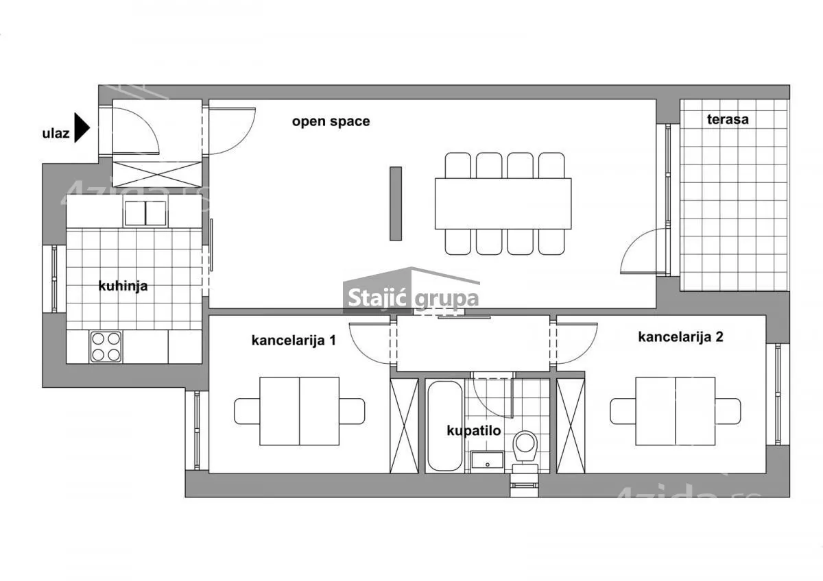
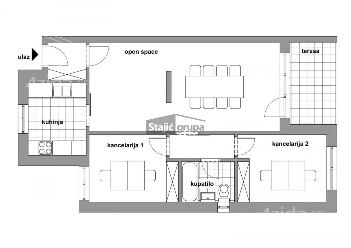
70 m²
Polunamešteno
- Na 1. spratu od ukupno 3 sprata
- Novo
- Opremljenost: Polunamešteno - internet
- Oglas oglašava agencija pod reg. brojem 1984
- 1 parking mesto
- Objekat poseduje: lođa
Opis oglasa
Odličan 3.0 stan na prestižnoj lokaciji, u najlepšem delu Dedinja. Pogodan za razne delatnosti, slobodna parking zona. Za svaku preporuku! Obavezan depozit u visini jedne kirije.
Prostorije: predsoblje, open space, kuhinnja, dve kancelarije, kupatilo, lođa.
Agencijska provizija se plaća u iznosu 50% + pdv od dogovorene jednomesečne zakupnine.
*Sačuvaj oglas uz belešku i primaj obaveštenja o njihovom pojeftinjenju ili pojavljivanju sličnih
Prikaz poslovnog prostora na mapi
Parkovi u blizini
- Park Rozali Morton5 min
- Bajronov park18 min
- Hajd park21 min

Obeležja kulture u blizini
- Spomenik Franše Depereu6 min
- Miloševa česma7 min
- Spomenik heroju Milanu Tepiću4 min

Škole/Fakulteti/Vrtići u blizini
- Osnovna škola (Osnovna škola Kreativno pero)5 min
- Srednja škola (Chartwell International School)7 min
- Vrtić (Play Learn Grow International Preschool Belgrade)6 min
- Fakultet (Univerzitet u Beogradu Učiteljski fakultet)2 min

Zdravlje
- Bolnica (Bolnica za ORL - KBC Dr Dragiša Mišović)3 min
- Klinika (Poliklinika Protekal)2 min
- Teretana (Fitness club M)5 min
Hrana i piće
- Prodavnica (Maxi Supermarket)7 min
- Restoran (Restoran Avalica)6 min
- Kafana (Pivnica Contra Pub)13 min
Prevoz
- Taksi stajalište (Taxi stanica)5 min
- Autobuska stanica (Šekspirova)1 min
- Tramvajska stanica (Trg Oslobođenja)14 min
- Trolejbuska stanica (Pedagoška Akademija)3 min
Ostale ustanove
- Banka (OTP banka)5 min
- Pošta (Pošta Beograd 33)8 min
Kontakt oglašivača
▾Reklama▾
Keš krediti
RSDIznos kredita
Period otplate
13 meseci