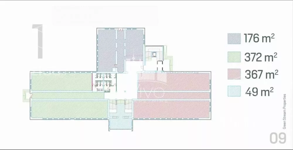
Poslovni prostor za izdavanje, Oslobođenja, 2.750€, 367m²












2.750 €
- Prizemlje od ukupno 2 sprata
- Novo
- Opremljenost: Prazno - internet
- Oglas oglašava agencija pod reg. brojem 1137
- 1 parking mesto
- 1 lift
- 1 telefonska linija
Opis oglasa
U mirnom delu Rakovice, nova poslovna zgrada okružena zelenilom. Budući zakupci imaju mogućnost da zakupe potrebnu kvadraturu a enterijer se uređuje po njihovoj želji i potrebama delatnosti.
Buduće zakupce očekuje nov prostor sa svim tehničkim pogodnostima, IT mreža, optika, recepcija, lift, obezbeđenje, klimatizacija, parking prostor. Prostor je pogodan za kancelarije, ugostiteljske objekte, dečije igraonice, obdanište, objekte zdravstvene zaštite, klinike i bolnice i više drugih delatnosti.
Dobra povezanost sa svim delovima grada, blizina auto-puta, železničke stanice u Rakovici, 250m od Shoping centra BIG Rakovica.
Za zainteresovane zakupce predviđen je sastanak sa zakupodavcem, tokom kojeg će se definisati svi uslovi i detalji pregrađivanja i uređenja prostora.
PP površine 367m2 može da se uzme u zakup na PR i prvom spratu
Agencijska provizija 50%
*Sačuvaj oglas uz belešku i primaj obaveštenja o njihovom pojeftinjenju ili pojavljivanju sličnih
Prikaz poslovnog prostora na mapi
Parkovi u blizini
- Miljakovačka šuma29 min
- Park Bele vode45 min
- Košutnjak49 min

Obeležja kulture u blizini
- Hajdučka česma16 min
- Spomen park Jajinci16 min
- Mesto pogibije kneza Mihaila Obrenovića17 min

Škole/Fakulteti/Vrtići u blizini
- Osnovna škola (Osnovna škola Vladimir Rolović)11 min
- Srednja škola (Mašinska škola Radoje Dakić)12 min
- Vrtić (Dečiji vrtić Čarobna šuma)11 min
- Fakultet (Univerzitet u Beogradu Fakultet sporta i fizičkog vaspitanja)20 min

- Bolnica (Specijalna bolnica za internu medicinu Nova Vita)11 min
- Klinika (Poliklinika Paster Vidikovac)16 min
- Teretana (Fitness klub Bojana)11 min
- Prodavnica (DIS Market)10 min
- Restoran (Restoran Lunch Express)11 min
- Kafana (Restoran Familija Drvce)7 min
- Taksi stajalište (Taxi stanica)20 min
- Autobuska stanica (Ulica Oslobođenja)7 min
- Banka (Raiffeisen Bank)8 min
- Pošta (Pošta Beograd 50)10 min
Kontakt oglašivača
Krediti OTP banke
Period otplate
13 mesecimesečno
Period otplate 13 - 71 mesec
Saznaj više
